1.0 项目背景
接受委托时听闻是个厂房改造项目,脑海中立刻闪现出很多固有的印象。后至现场感觉与我想象中似乎有点不一样。厂房前身为村办企业桐乡易峰机械厂热处理中心,现在作为退散进集后保留的工业存量厂房。总建筑约900平方米,单层排架房屋,钢结构屋顶。勘察场地时仍然有部分工人在厂房里作业。厂房建设时间约为90年代末,但是没有原始图纸资料也无从考证。从表面材质与构造来看,具有一些特定的年代感,但是是离我们当下很近的时代感。这跟我最初想象中的具有历史感和时间感的空间相差甚远。除了临河有一排长势茂盛的香樟树外,不够旧也没那么新的场地与空间,打破了我所想象的很多设想,竟有点无从下手的感觉……

▲项目区位 © y.ad studio

▲场地区位 © y.ad studio

▲改造前鸟瞰 © y.ad studio

▲场地原始状况 © y.ad studio
项目所在地河山镇东浜头村曾是产业大村,自改革开放以来,陆续创建五金标准件厂、易锋机械厂、东宝丝绸印染厂等,后期又打造了一批具有自主品牌、高附加值的高新技术企业。这次随着画圣浜理想村的进驻,促使东浜头村的乡村服务模式、产业结构发生改变,从原来较多依靠传统工业集体经济,朝着以未来乡村社区为方向、产业与文化并重的转型之路前行。本次改造将村办企业旧厂房改造为双创中心,让它成为村民集会与文化活动的重要场所。投入运营后将成为集展览、文创、休闲、餐厅、办公于一体的综合功能空间,进一步推动乡贤返乡、创客下乡、游客恋乡,促进乡村复兴及发展。
2.0 功能与动线
在对现有建筑结构重新进行鉴定后,我们拆除了场地中结构安全等级较低的建筑,保留了满足安全使用的建筑体来进行加固及改造。根据需求重新进行功能分配,在存留空间的基础上进行部分新建来满足空间使用需求,并通过连廊来串联各个功能空间,形成不同的进入动线的同时也让其产生新旧并置、相互交融的状态。通过围合让前区的场地形成一个公共的活动广场空间服务于村民,在临河的空间则设置滨水户外休闲区。

▲拆除与新建分析图 © y.ad studio

▲功能重新分布图 © y.ad studio

▲动线分析图 © y.ad studio
3.0 新旧叠加与重组
拆除后存留的建筑高低不一很难形成一个整体,经过分析后,决定将主体厂房采用叠加的形式,用聚碳酸酯板墙体进行围合来拔高整体高度,以此来平衡与后面建筑屋顶的高度。同时将后面新建公共厕所与原有厨房、餐厅咖啡厅用一个连续坡屋顶整体覆盖形成一个整体。而场外新建游客中心与停车区则延续三角形坡屋顶元素,进行演变与延伸来呼应旧建筑体,形成一个新与旧的对话与统一关系。
拆除原有老化屋面后结合升高聚碳酸酯板墙体,将两侧进行抬高并在墙体交汇处开启天窗的形式导入自然光。中间原通风屋顶在拆除屋面后也更换成玻璃天窗,更大限度地导入自然光线。
厂房区域两侧墙体植入两道折型墙体,以此来增加未来作为展厅的墙面展出空间。

▲概念发展轴测 © y.ad studio

▲建筑剖面图 © y.ad studio

▲剖面动态演示 © y.ad studio

▲剖面动态演示 © y.ad studio

▲项目全景 © 严旸

▲项目南立面全景 © 严旸

▲新旧叠加后的南立面全景 © Peter Dixie / Lotan Architectural Photography

▲新旧叠加后的南立面 © Peter Dixie / Lotan Architectural Photography

▲活动广场 © Peter Dixie / Lotan Architectural Photography

▲双创中心入口 © Peter Dixie / Lotan Architectural Photography

▲双创中心入口 © 严旸

▲双创入口门厅 © 严旸

▲双创多功能展示厅 © Peter Dixie / Lotan Architectural Photography

▲双创多功能展示厅 © Peter Dixie / Lotan Architectural Photography

▲双创多功能展示厅 © Peter Dixie / Lotan Architectural Photography

▲双创多功能展示厅 © Peter Dixie / Lotan Architectural Photography

▲折型展示墙 © 严旸

▲咖啡厅&简餐厅北立面 © Peter Dixie / Lotan Architectural Photography

▲咖啡厅户外休闲区 © 严旸

▲改造后的咖啡&简餐厅 © Peter Dixie / Lotan Architectural Photography

▲改造后的咖啡&简餐厅 © Peter Dixie / Lotan Architectural Photography

▲改造后的咖啡&简餐厅 © Peter Dixie / Lotan Architectural Photography

▲新建游客中心南立面 © Peter Dixie / Lotan Architectural Photography

▲新建游客中心南立面 © Peter Dixie / Lotan Architectural Photography

▲新建游客中心南立面 © Peter Dixie / Lotan Architectural Photography

▲新建游客中心东立面 © Peter Dixie / Lotan Architectural Photography

▲新建游客中心北立面 © Peter Dixie / Lotan Architectural Photography

▲新建游客中心北立面 © Peter Dixie / Lotan Architectural Photography

▲新建游客中心楼梯间 © Peter Dixie / Lotan Architectural Photography

▲新建游客中心挑空区 © Peter Dixie / Lotan Architectural Photography

▲新建游客中心挑空区 © Peter Dixie / Lotan Architectural Photography

▲新建游客中心挑空区 © Peter Dixie / Lotan Architectural Photography

▲新建游客中心2F休闲区 © Peter Dixie / Lotan Architectural Photography

▲新建游客中心2F挑空区 © 严旸

▲新建卫生间 © Peter Dixie / Lotan Architectural Photography

▲新建卫生间室内 © 严旸

▲新建户外回廊 © Peter Dixie / Lotan Architectural Photography

▲新建户外回廊 © 严旸

▲新建停车场区域 © Peter Dixie / Lotan Architectural Photography

▲新建停车场区域 © 严旸
4.0 材质印象与时间记忆
保留旧的叠加新的,我们希望走入场所的人仍然可以感受到这个建筑的曾经与记忆。90年代盛行的绿色油漆、蓝色马赛克甚至原本车间的铁轨都具备很强的特定时代记忆感。在进行修补与新建的时候我们也同步将这些元素进行了留存。为了更好融合场地与环境,保留原场地临河的香樟树外,在新建回廊及窗框材质的选择上使用了大量的具有斑驳感的耐候钢材质。

▲元素分析 © y.ad studio

▲保留的铁轨 © Peter Dixie / Lotan Architectural Photography

▲保留的绿色油漆 © Peter Dixie / Lotan Architectural Photography

▲保留的蓝色马赛克 © 严旸

▲保留的河岸香樟树 © 严旸
5.0 建造过程
旧建筑的结构加固
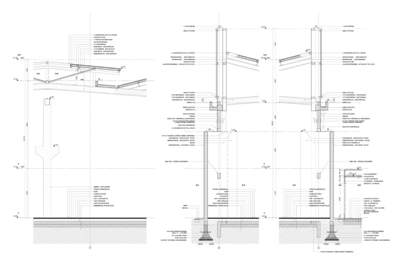
对于旧建筑改建,由于墙体老化及原本结构的不规范,有时候面临最多的就是结构安全问题,尤其在进行局部加建与墙体交接的部分,比起新建一个建筑要繁杂很多,花费的精力与成本也会增加很多。主体厂房区域简单的聚碳酸酯板墙体加高处理,也造成了不少问题。在进行拆除与实际勘测后,发现原有建筑墙体地基仅50厘米深,且无混泥土地梁结构,从风荷载及墙体承载上均无法承受屋顶加设钢结构,钢柱直接落地又无法避开现有墙体去做独立基础。经过讨论决定在不动及原有结构前提下,用最经济的方式来进行柱体升高,因为原有墙体沉降已经成型,我们在原有砖质柱体上进行植筋与浇灌混泥土,让它与旧墙体形成一个整体混泥土柱,以此来进行升高,达到我们设想的框架。

▲柱体升高加固演变图 © y.ad studio

▲升高后墙体与折型展示墙 © Peter Dixie / Lotan Architectural Photography
旧材料的保留与审美
也许是过去我们都一直处于一个新建的爆发时代,工人或普通人们的习惯与审美也大多如此。我们大多数的人都觉得既然要翻新或改造,固有思维想到的肯定都是全新的材料与场景、精致的装饰工艺。如果说保留一片斑驳的墙面材质,或是这里不用做得很精致、保留一些粗糙的质感,施工工人会觉得无从下手。他会反问这样可以吗?这像没有完工。原本一直想保留折型墙体上面很破旧的墙面材质,让它与新建折型展墙形成一个强烈的对比。最终还是在各方要求下被刷成了肌理漆。习惯了过去很长时间对于装饰与精致的观感,审美和思维的固化让人一时很难欣然接受新旧并存的状态。其实保留一些旧建筑肌理,我们更多的是想通过保留与叠加、新与旧对比的方式让空间产生延续感、记忆感甚至残缺美。
项目图纸

▲建筑模型 © y.ad studio

▲建筑模型 © y.ad studio

▲总平面图 © y.ad studio

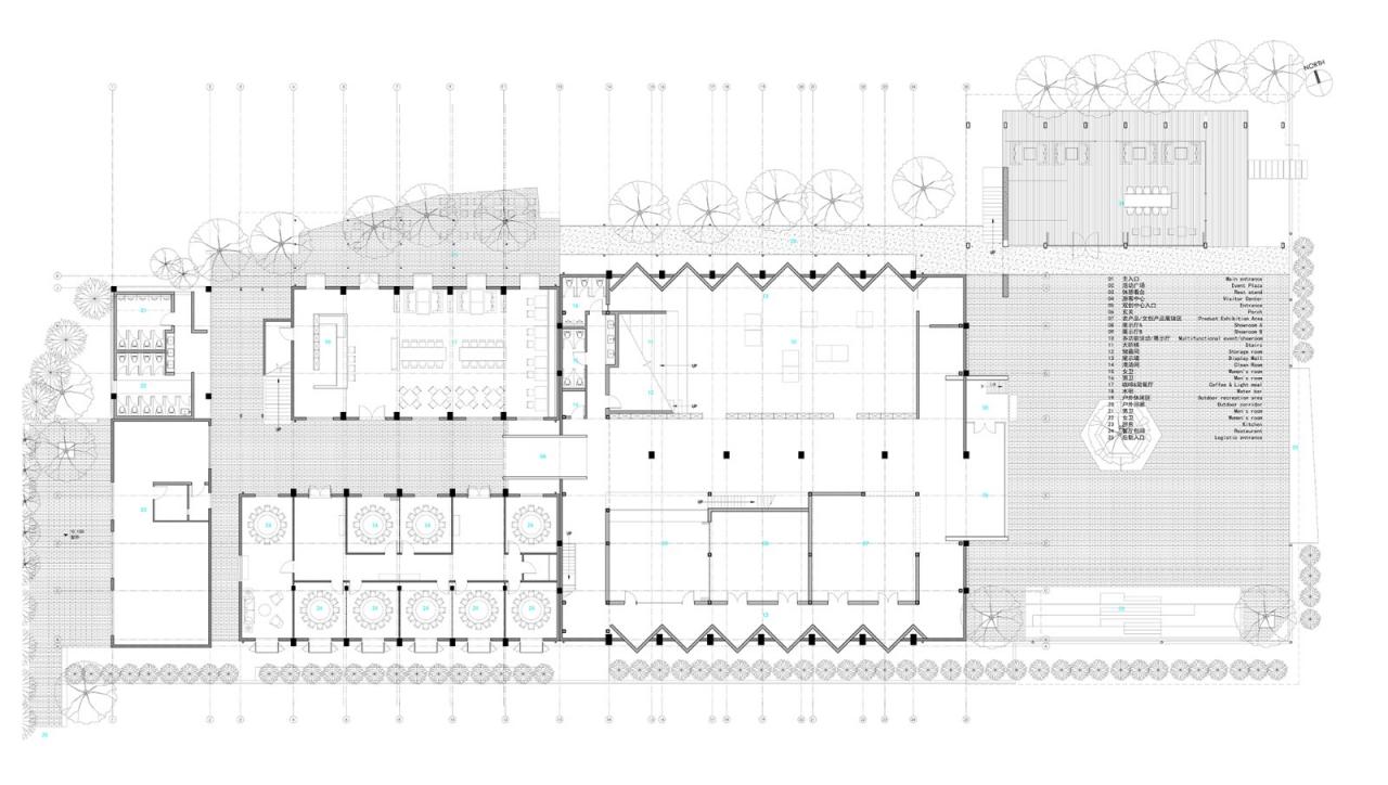
▲1F平面图 © y.ad studio

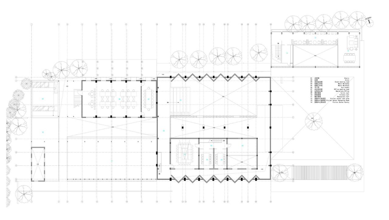
▲2F平面图 © y.ad studio

▲屋顶平面图 © y.ad studio

▲建筑立面图 © y.ad studio

▲建筑立面图 © y.ad studio

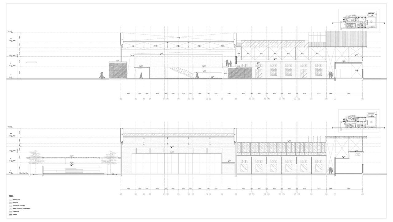
▲建筑剖面图 © y.ad studio

▲建筑剖面图 © y.ad studio

▲建筑剖面图 © y.ad studio

▲建筑剖面图 © y.ad studio

▲建筑剖面图 © y.ad studio
项目信息
项目名称:嘉兴·桐乡东浜头村双创客厅改造
建设单位:桐乡市河山镇东浜头股份经济合作社
设计委托:朱胜萱(上海)建筑景观设计有限公司
设计单位:y.ad studio | 上海严旸建筑设计工作室(www.sh-yad.com)
建筑设计院:上海时代建筑设计院
结构设计:霍振忠
施工单位:上海景域园林建设发展有限公司
项目团队:严旸、严昱
建筑面积:2,405.5平方米
主要材质:耐候钢、松木板、聚碳酸酯板、U型玻璃、青砖、玻璃砖、外墙涂料
设计时间:2019/10-2020/03
建造时间:2019/12-2021/05
摄影版权:Peter Dixie(英) / 洛唐建筑摄影、严旸

BIM建筑网





评论前必须登录!
注册