
先锋汤山矿坑书店位于南京汤山矿坑公园内。矿坑公园是近年来南京乃至国内城市双修的重要典范,这里曾是汤山最大的废弃矿坑龙泉采石场的所在地,经过整体的生态修复和景观重塑,现已重生为集观览体验与休闲游乐为一体的开放性主题公园。

项目缘起于矿坑公园入口处靠山而建的一座废弃多年的20米高双筒砖窑,在公园后期的规划建设过程中,先锋汤山矿坑书店确定落户于此。先锋书店是南京乃至全国的一张重要的文化名片。如何在结合场地特色、尊重遗址风貌的前提下,在新旧之间创造和谐交融的共生状态,并为已确定的书店业态创造具有商业适应性的文化体验空间,是该项目创作的动力和挑战。

砖窑位于园区入口附近,毗邻游客服务中心和生态停车场,在整个公园中位置显要。为了应对复杂的场地现状,设计的总体策略是在提取砖窑双筒原型的基础上,把竖向的垂直形态转化为水平形态,将筒转化为拱。拱不仅在形态上与砖窑形成呼应,且其形式的古典性和精神性恰与先锋书店的内在气质相匹配。进而依据书店的基本功能对水平双拱进行拉伸、分离、切割、旋转等操作,来设计和布局相应的平面。


首先,我们对场地中的山体坡面进行了开挖和修补。场地的高差丰富了建筑竖向上的空间层次。一层的局部屋顶将前广场、北面的草坡,以及后面的山体草坪联系成一个整体,建筑、景观和山体得以彼此融合。

高约20米的废弃砖窑在竖向上已经形成了视觉上的制高点,新建筑便以水平方式介入,利用“拱”的形态与原本孤立的废弃砖窑建立起某种类型学的联系,并过设计元素的同构将新旧建筑完好拼贴成富有层次的整体,从而形成平衡且完整的视觉构图。

原有砖窑呈现出一种“废墟”的美感,在设计中试图用“红砖+混凝土”的组合强化这种美学倾向。新建筑的墙身和场地的景观片墙采用红砖为主要的建筑材料来延续砖窑的质感,而拱则用混凝土浇筑而成,与矿坑公园山体上裸露的采石宕口相呼应。

在设计中,我们试图弱化书籍的物质性和装饰性,而强调其真实性和主体性,由此“塑造具有先锋精神向度的诗意阅读空间”。书店总体由三个拱形筒体构成,它们在一层相互连通。一层高的筒体作为入口灰空间以及新书展销、书店收银和文创产品展销的场地,其跨度为8米。两层高的两个筒体,其一用于展览、演讲厅和书籍销售,其二用作咖啡厅,二者的跨度均为10米。

在空间的处理上,书店将文化空间(阅览空间)和精神空间相结合。一方面,依据人体尺度将“文化空间”内部的书架均设置为触手可及,为读者的选取和阅读提供便利。另一方面,在竖向上以大面积的混凝土拱及天窗塑造高大震撼的“精神空间”,超越单一的功能性,在物质和精神之间试图创造均衡和共振。

书店的室内墙体没有额外装饰,凸显了材质的自身色彩。双层墙体不仅节能,且很好的隐藏了设备管道和雨水管。书店的吊顶和走廊栏板部分都采用了黑色的拉丝网板制作,大台阶栏板及咖啡厅吧台和相应的楼梯栏板采用黑色的烤漆钢板进行形态的一体化处理。黑色钢材、素混凝土及红砖的搭配使整个空间深沉而又极具冲击力。


基于采光和排烟的要求,设计中在混凝土拱上开了若干的天窗,室内光影因此随时间变化而斑驳、交错、重叠。回眸间,阅读、空间和光线的感动交织在一起,文化空间获得了精神的重塑,这或许正是先锋品牌追求精神崇高之美的建筑外化。






项目图纸

△模型图

△模型图

△总平面图

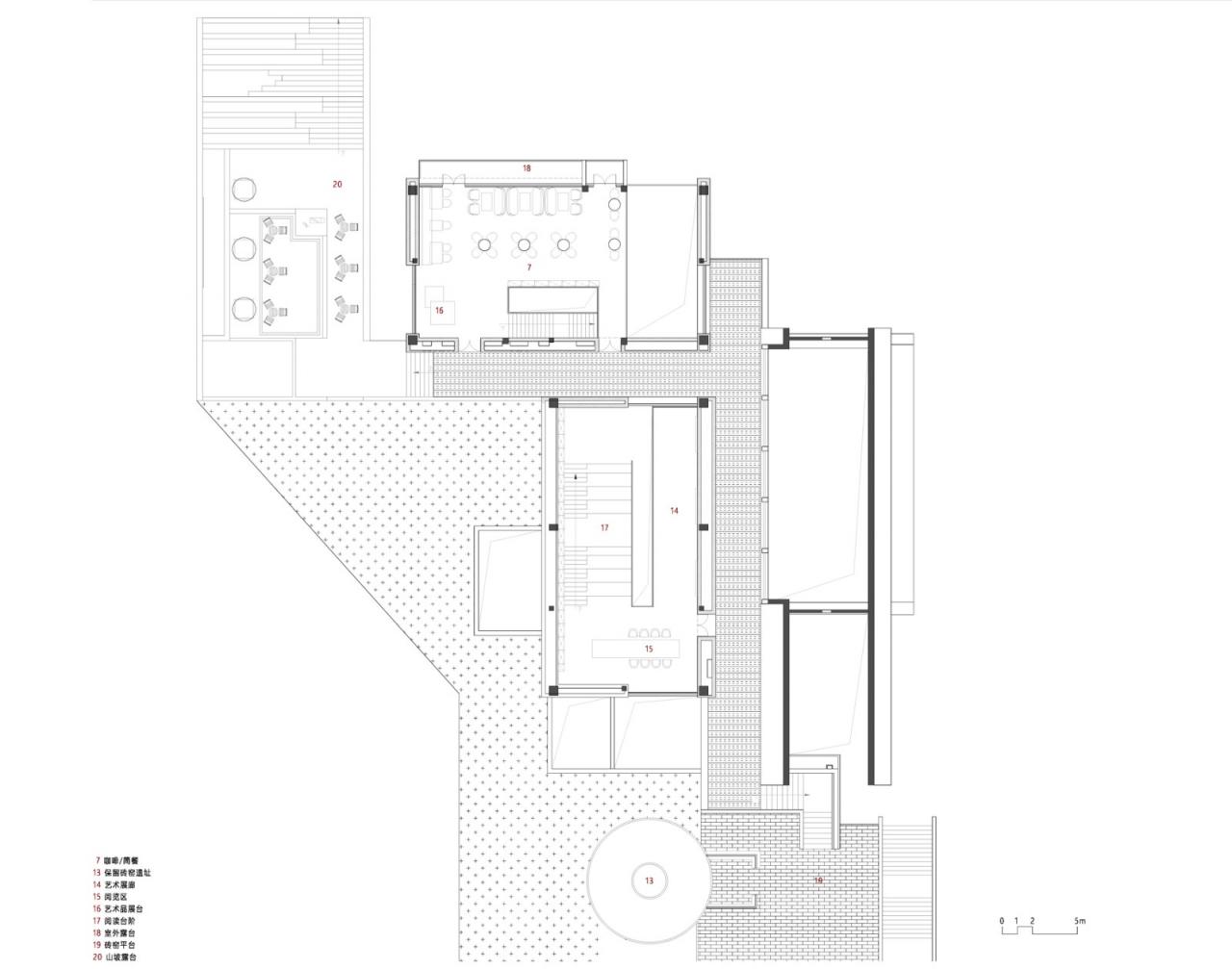
△一层平面图

△二层平面图

△立面图

△剖面图

△剖透视

△轴侧分析图

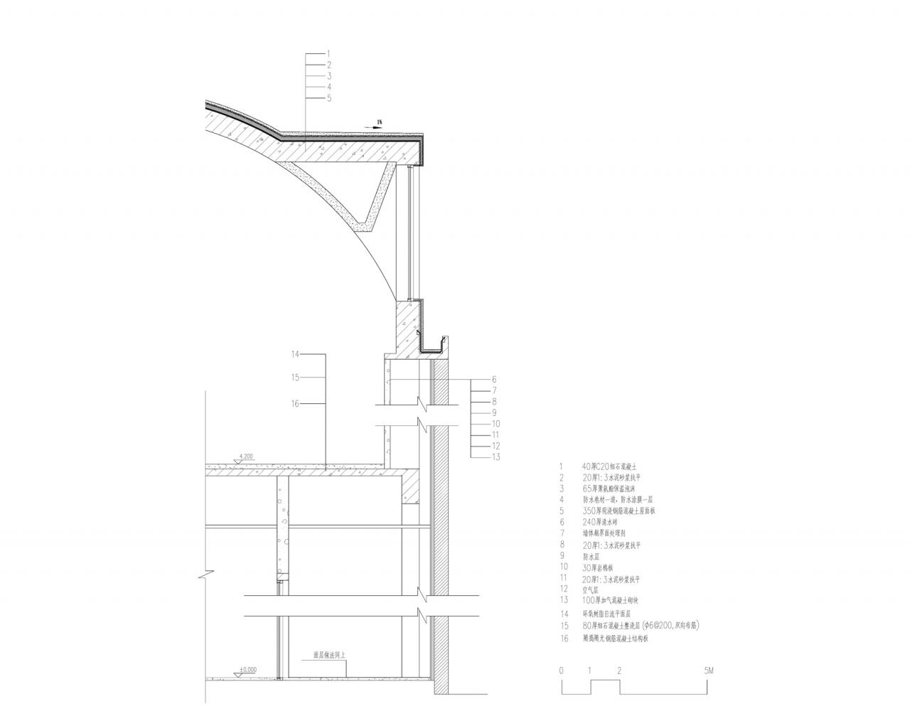
△墙身大样图
项目信息
建筑设计:SEU-ARCH, 艺合境建筑
面积:1318 m²
项目年份:2021
摄影师:Timeraw Studio
主创建筑师:杨志疆、周妍琳
设计团队:袁佩桦、陈顶
结构设计:彭翥
景观设计:叶麟、路苏荣、周意
委托方:先锋书店
地点:中国,南京

BIM建筑网





评论前必须登录!
注册