
位于上海奉贤区的中粮南桥半岛文体中心与医疗服务站,旨在成为“社会凝聚器”,连着沿河的浦南运河围合成一个周围新住宅社区交流聚集所需的公共场所与公园。尽管邻近密集的住宅大楼,该建筑富有的空间活力和开放性,吸引邻里社区来到此处休闲、参与文化活动,而医疗站则服务社区人们的健康需求。

斯蒂文·霍尔表示,“在当前此刻,我们仍感受到新冠疫情对全球的影响,致力于文化和健康事业的建筑是一种社会责任。”

此项目符合斯蒂文霍尔事务所对后疫情时代的建筑策略,包含了大量的绿化空间,最大地利用自然光线与空气对流,并以开放的流线和社交空间为特色。景观及两栋公共建筑融合了“云与时间”的概念,此概念来自哲学家卡尔·波普尔(Karl Popper) 1965年的著名演讲。如时钟样式的圆形景观步道围合形成中央公共空间;如云状的建筑体开口向公众传递开放邀请。



文化中心建筑采用灰白色多孔混凝土外墙,悬置于透明玻璃基座上,玻璃基座内设有咖啡馆、娱乐游戏室。弯曲坡道景观延续至二层空间为公众提供俯瞰体验。景观步道围合形成的医疗服务站同样采用灰白色多孔混凝土外墙,整体景观设计与云状建筑部分紧密相连。于邻近住宅高层俯瞰时,两栋建筑均种植景天植物的屋顶绿化与景观融为一体。



该项目的可持续策略主要包括增加的绿化与开放空间,采用30%的可再生材料,集中供暖和制冷系统,二氧化碳监测,热存储以及灰水/雨水采集与再利用等等。








项目图纸

△总平面图

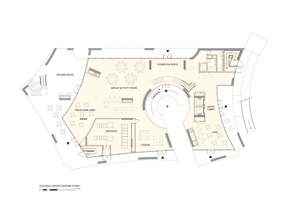
△文化中心一层平面图

△文化中心二层平面图

△文化中心三层平面图

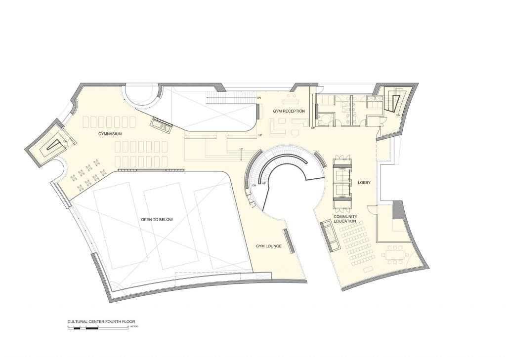
△文化中心四层平面图

△医疗中心一层平面图

△医疗中心二层平面图

△医疗中心三层平面图

△文化中心剖面图

△文化中心剖面图

△文化中心剖面图

△医疗中心剖面图

△医疗中心剖面图

△整体剖面图

△手绘设计图

△手绘设计图

△手绘设计图

△手绘设计图
项目信息
建筑设计: 斯蒂文·霍尔建筑事务所
面积: 7520 m²
项目年份: 2021
摄影师:Aogvision 奥观建筑视觉

BIM建筑网





评论前必须登录!
注册