
人民美术出版社是具有悠久历史传统和人文精神的国家美术出版权威机构。其办公新址坐落于繁华的东三环双井,地块周边是林立的商业与居住建筑。项目从城市的角度着力解决具有文艺属性的办公建筑与城市的商业、居住环境的积极对话与融合;在较为局促的用地上提高利用效率并保证交通的顺畅;满足周边建筑的日照和视线要求。

©郭淼

©郭淼
针对不同的城市界面,设计采取了相应的对策:为了降低对用地西侧住宅的日照及视线遮挡,建筑在西侧以退台的方式形成具有韵律感的体块,从而营造出丰富的轮廓线,也为出版社办公人员提供了更多的室外休憩与交流空间;在东侧面向三环路的立面,考虑到快速干道城市界面的特点,造型简洁、方正,加强了出版社的主入口提示性;

©郭淼

©郭淼
为了更好地应对气候,立面设计积极考虑被动优先的原则,建筑南侧采用了横向机翼形遮阳板,北侧采用与之呼应的横向构图,降低了其北向酒店及住宅的视线干扰,而东西侧则以有较大进深的竖向窄窗和竖向遮阳板提高遮阳效果。

©ACF域图视觉

©ACF域图视觉
在首层南侧面向街道的区域,设置了独立小型美术馆入口,入口附近设置了公共性较强的空间,在条件成熟时结合美术馆纳入展览、书店、咖啡等更具有城市融合性的功能。鉴于用地紧张,小型美术馆设在地下一层,设计通过下沉庭院和通透的直跑楼梯,将地下与首层贯通融合,同时也将自然光线和参观者顺利引入美术馆。

©ACF域图视觉

©郭淼
建筑立面采用环保的并富有肌理的再造石作为主墙材料,竖向窄窗的构图借鉴了篆刻图案特征,以上下随机错落的方式形成既厚重又生动的表情,体现出中国传统美术与现代技艺的巧妙结合以及新时代的人文精神。厚重的暗红色再造石以其竖向构图和肌理与轻盈的深灰色金属遮阳和玻璃分格,形成明快的虚实对比,呈现出温润儒雅的气质,成为该街区既有特色又有融入感的地标。

©郭淼

©郭淼

©ACF域图视觉

©郭淼
项目图纸

△环境分析图

△方案生成分析图

△总平面图

△首层平面图

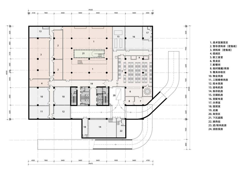
△地下一层平面图

△立面图

△立面图

△剖面图

△剖面图
项目信息
建筑设计:China Academy of Building Research
面积:14000 m²
项目年份:2018
摄影师:Miao Guo, ACF
主创建筑师:薛明,王军
设计团队:路莹莹、刘艺、张格明、杨忠凯、刘亮、王晓静、金海升、姜新超、李翠玲
甲方建筑师:邢玉昆、邱高
Client:Beijing, China Resources Land Limited
结构设计:中国建筑科学研究院有限公司
施工方:中国建筑第六工程局有限公司
地点:中国,北京

BIM建筑网





评论前必须登录!
注册