
基地位于曼谷东侧一小时车程处的彩琼骚府(Chachoengsao),这里的郊区生活风貌和城市相近,有许多工厂和大海(泰国湾),所以也就不可避免的造成了土壤盐分过高的情况。项目所在的基址是一块带有人工池塘的平坦土地。


人工池塘最初的修建是为了供水,同时给人以视觉上的氛围感和舒适感。但随着盐渍土的累积,池塘中的水质逐渐呈现微咸化,使得其无法再被日常使用,也无法用于农田浇灌。所以为了将这片低生物多样性的水塘变为可用的淡水资源,雨水对其所产生的稀释作用就显得尤为重要。


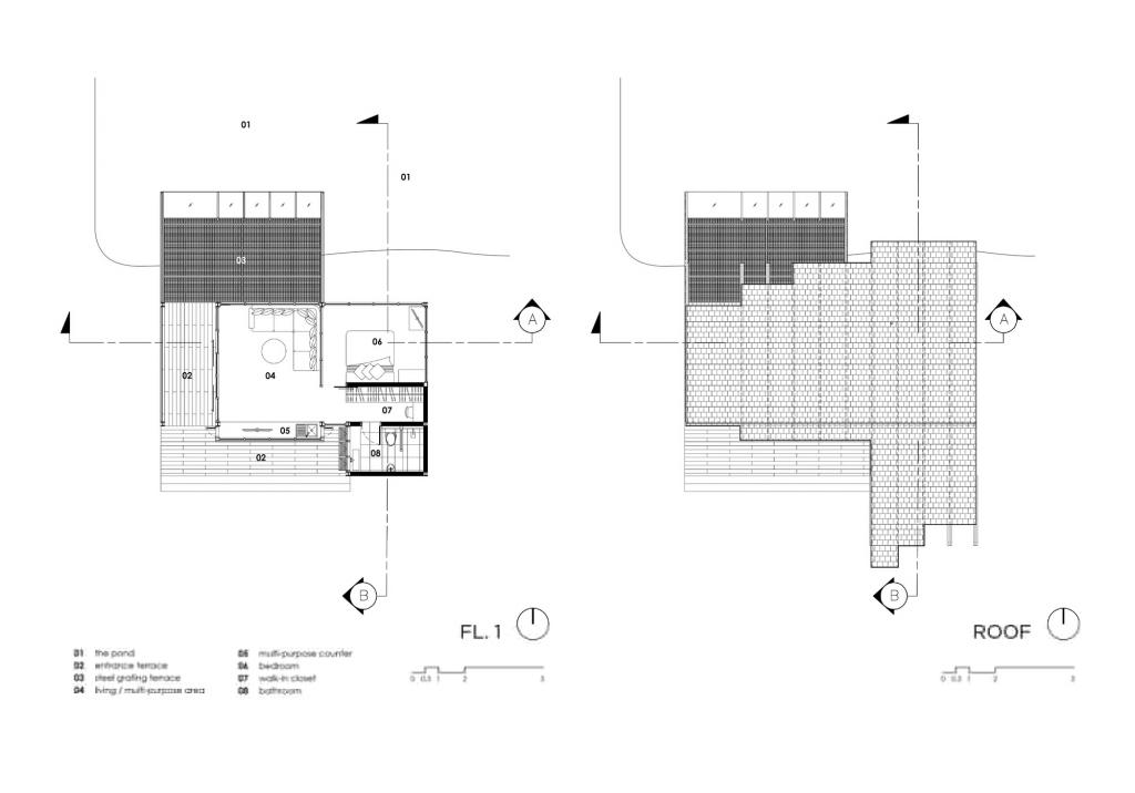
私宅被设定为水处理环节的一部分,并在造型和建造手段上都有着特定的考量。方案源自一个简单的立方体,沿着对角被切成两半,以提供最大的倾斜悬挑屋面用于排水。此外,建筑师还为这栋小房子配备了单户住宅所需的所有功能,将其打造成一个小型且经济适用的实用小宅,并兼顾可持续性。



开放平面的起居空间可适应多需求的空间场景,诸如家庭聚会、餐饮、额外的睡眠休息区等,与私密和半公共空间都紧密相连。临水侧设有一间卧室和户外露台,屋顶渐次退进,作为建筑遮阳元素,呈现出层次分明的开放性。



入口平台享有整个私宅最高的开放性,可望见周围的绝佳景致;而起居室和卧室则可以让使用者享有在坐下,甚至平躺时观赏全景视野的可能。


使用耐用铝制格架的墙体是另一处隔热遮阳措施。带有沥青瓦屋顶的钢结构可实现快速简便的安装,并具有轻便耐用的排水功能。 悬臂式户外露台采用钢格板,以让雨水直接落入池塘,并通过水汽蒸发的方式冷却地板上方的空气。此外,铝制格架不仅耐用、维护成本低且使用时间长,其还因采用的夹锁安装方式,可轻松地重新应用于其他建筑物的建造情景。







项目图纸

△平面图

△立面图

△剖面图

△剖透视

△分析图

△分析图

△分析图

△分析图
项目信息
建筑设计:TOUCH Architect
面积:90 m²
项目年份:2021
摄影师:Anan Naruphantawat
厂家:Alumet, COTTO, ID ROOF, Rococo, T-Rex Steel, Tree Concept
主创建筑师:Setthakarn Yangderm, Parpis Leelaniramol
设计团队:Pitchaya Tiyapitsanupaisan , Tanita Panjawongroj
结构土木工程师:Chittinat Wongmaneeprateep
地点:泰国,曼谷

BIM建筑网





评论前必须登录!
注册