
△©张晓明
聚焦乡村振兴中陕西关中地区量大面广民居的更新问题,咸阳·莪子村红砖房依托陕西重点产业创新链(群)重点研发计划项目,”乡村既有民居建筑绿色宜居功能品质提升关键技术与应用“、十三五重点研发计划合作单位项目,“产业发展互促视角下的特色村镇功能提升技术”;植根乡村禀赋与特色,借鉴当地传统民居窄厅方屋的空间模式与”闷顶“、共墙、硬山排水等技术原型;融入阳光间、采光通风井、墙体内保温、太阳能光伏发电、三格式化粪池的现代通用技术;利用当地匠人、传统材料与工艺,建造低成本符合本土文化并适应现代居住需求的关中新民居。
”十四五规划”明确提出:要把乡村建设摆在社会主义现代化建设的重要位置,完善乡村基础设施,提升农房建设质量,改善农村人居环境。咸阳·莪子村红砖房的设计与建造,就当前现代村镇民居盲目照搬城市住宅建造体系忽略地方特色,缺乏专业设计导致室内物理环境差、居室功能性差等问题,运用当地红砖材料、传统工艺,结合现代居住需求,将居所的环境、功能与绿色性能有机融合,既是对陕西关中传统民居空间原型与技术原型的一次创新性传承,亦是民居绿色宜居性能提升方面的有益实践。

△夜景鸟瞰©张晓明

△全景鸟瞰©张晓明

△夜景透视©张晓明
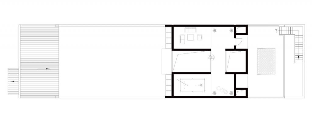
项目位于陕西省咸阳市莪子村,地势平坦,宅基地南北长35.1m,东西宽9m,南侧紧邻村道与大片农田,东西北侧均为既有民居与待建宅基地。红砖房延续当地传统民居窄厅方屋的空间型制和坡屋顶形式,以传统建筑文化重塑地域自豪感,建立乡愁情感的共鸣。宅门置于基地东南角,结合现代居住模式,门房为一层,设卫生间、储物区等辅助功能;正房为两层,一脊两坡,采用集中对称三开间的纵轴布局,中间为入户门,南侧两边设置阳光间,毗邻室内设有卧室、起居厅等主要居住功能,厨房、餐厅、卫生间等服务功能居中布置,正中窄厅空间整体通高,内设空中连廊,二层北面设置露台,营造出多层次的空间体验;正房与门房之间形成完整的院落空间,满足晾晒小麦、玉米与日常活动需求,正房北面为后院,设有直跑楼梯,与二层露台相连。

△门房空间©张晓明

△宅院空间©张晓明

△室内窄厅空间©张晓明

△餐厅空间©张晓明

△北向露台空间©张晓明
生态、环境与住户的生活品质息息相关,项目注重现代乡村民居绿色宜居品质提升技术的研究与应用,着重考虑当地风、光、水等自然因素对民居的影响,应对四季气候的变化,运用通风、采光、保温、隔热、雨污分离等被动式设计策略,提升室内环境的舒适性。
通风:窄厅南北贯通,利于形成风压通风;平面居中的厨房、窄厅、卫生间上空设置三组通高空间利于形成热压通风,加强空气流通,改善大进深民居室内空气质量。
采光:正房南向设置大面积开窗和高侧窗,结合屋面挑檐,增加采光面积、提高室内照度同时可避免夏季的太阳辐射;居中的厨房、窄厅、卫生间上空设置的三组通高空间,可利用天窗自然采光,改善了传统民居此类服务功能黑空间的问题。
保温与隔热:延续传统民居二层阁楼(闷顶)的空间形式,四季可做储藏和自由空间,冬夏两季可做气候缓冲层,对一层卧室、起居厅等主要生活活动空间起到保温隔热作用;一层南向被动式阳光间对毗邻卧室、起居厅的温度变化亦起到缓冲作用;同时,房屋外墙均采用内保温技术,保温隔热同时,实现了室外清水砖墙的工艺效果。
雨污分离:实验性将卫生间分解成两个功能单元;小便功能单元居室内,大便功能单元置门房西侧,两个功能单元之间通过排污管道相连,排泄物就近排入入口院墙外的地下三格式化粪池,并定期清理;厨房、淋浴间等生活污水则就近排入后院三格式污水处理池,经人工湿地排入渗井;前后院各设集水坑,并通过雨水管道相连,前后院雨水经集水坑、雨水管道一同排放至路面雨水收集系统,分级解决雨污排放问题。

△起居厅南向采光©张晓明

△起居厅南向采光©张晓明

△厨房顶部采光通风井光©张晓明
乡土社会有着细密的社会交往网络和自治传统,其民居设计不受商业操纵和消费主义利用,低成本建造同样需要细节上的周到和精致。项目利用当地匠人、材料与传统工艺,从红砖的十字形砌筑、“梅花桩”砌筑到人字形砌筑,院落铺装的条形密铺与灌沙法、湿接缝法等均能凸显红砖材料工艺的功能性与艺术性;房屋木屋架采用旧屋老木料搭建,材料性能稳定,结构外露,与红砖组合,相得益彰。同时,为防止红砖饰面雨水侵蚀与反碱现象,施工增加清水砖墙面层涂刷真石漆面漆工艺;为防止冬季雨雪冻融导致红砖开裂破损,砖砌院墙、屋脊顶部增加涂抹水泥砂浆面层工艺,弥补了传统材料与工艺的缺陷。
居住品质的提升源自对生活的细致品味,关中传统民居门户空间作为日常非正式交流的重要节点,项目通过主入口外倚墙砌筑红砖长凳,供左邻右舍日常休闲交流;宅院内部院落在满足农忙时节晾晒农作物主要功能时,利用一侧的树下空间形成对内的休憩场所;厨房采用砖砌炉灶与整体式橱柜,既能满足当前传统烧柴烹饪供暖的需求,亦能实现未来天然气引入后的升级换代。

△宅门细部©张晓明

△露台栏杆人字形砌筑工艺©张晓明

△连廊栏杆人字形砌筑工艺©张晓明

△砖墙十字形砌筑工艺©张晓明

△木屋架©张晓明

△门户休闲交流场所©张晓明

△内部宅院空间©张晓明
乡土建筑只有在地域内部得以连续发展,维持自身个性和辨识度,才能在地域之间形成多样性。咸阳·莪子村红砖房采用手工、半机械化为主的“乡村基建队”建设模式,工匠组织施工,工程总造价(不含家具、卫生器具等购置费)约31.2万元,每平方造价约1296.8元。其不再追逐落伍的时髦、乡气的都市化,拒绝对资源贪婪的消费,聚焦“文化与绿色”一体协同的营建模式,找回设计中最基本最切实际的目标,构建适宜本地区的民居营建体系,为同类型民居的新建、改扩建提供参考借鉴。
项目图纸

△总平面图

△一层平面图

△二层平面图

△剖面图

△剖面图

△通风原理图

△采光原理图

△冬季保温原理图

△夏季隔热原理图

△雨水排放管线图

△污水处理管线图
项目信息
项目名称:关中砖瓦房的再生:咸阳·莪子村红砖房
设计方:西安建筑科技大学设计研究总院
项目设计&完成年份:2021年2月-4月& 2021年7月
主创及设计团队:高博&高博、李志民、贾库、王晓静、尚路轩、许懿、孟庆民、徐方圆、郑一凡、杨赞、杨润鹏、毕新雅、贺思静、翟欣、杨梦娇、石楚凡、王雨萌、徐菁华、王筱婕、王子纶
项目地址:陕西咸阳·莪子村
建筑面积:240.6m²
摄影版权:张晓明
品牌:宜家家居、龙焱能源科技(杭州)有限公司、陕西西旺铝业有限公司

BIM建筑网





评论前必须登录!
注册