
为巴西规模最大之一的摄影藏品设计一座新家是一个挑战:直至此时它一直远离公众的认知,接受挑战就意味着怀抱责任心地去展示这段历史记录。这套艺术收藏由包括了历史上名人史蒂夫·麦库里(Steve McCurry),亨利·卡地亚·布列松(Henri Cartier-Bresson)和马塞尔·古特罗(Marcel Gautherot)作品的超过2,000件作品组成,与当代生产中的其他领先艺术家分享空间,其中就有安德烈·里奥恩(André Liohn),克劳迪亚·安杜哈尔(Claudia Andujar),罗森·拉诺(Rosângela Rennó)等人。


工程的主体是一座位于巴西塞阿腊州首府福塔雷萨Varjota街区的占地约2,000平方米的现存建筑。这片街区社会生活十分活跃,被视为一支美食标杆,同时也是城市中一部分公众的重要聚会点。这座建筑的前身是英语学校巴西美国学会(IBEU)的总部。其原本结构跨度不均,天花板较低,开窗大小不足,出入便利性差,以及立面缺乏与街道的互动。因此在翻新的第一阶段,建筑就被拆得只剩结构框架和外墙了。


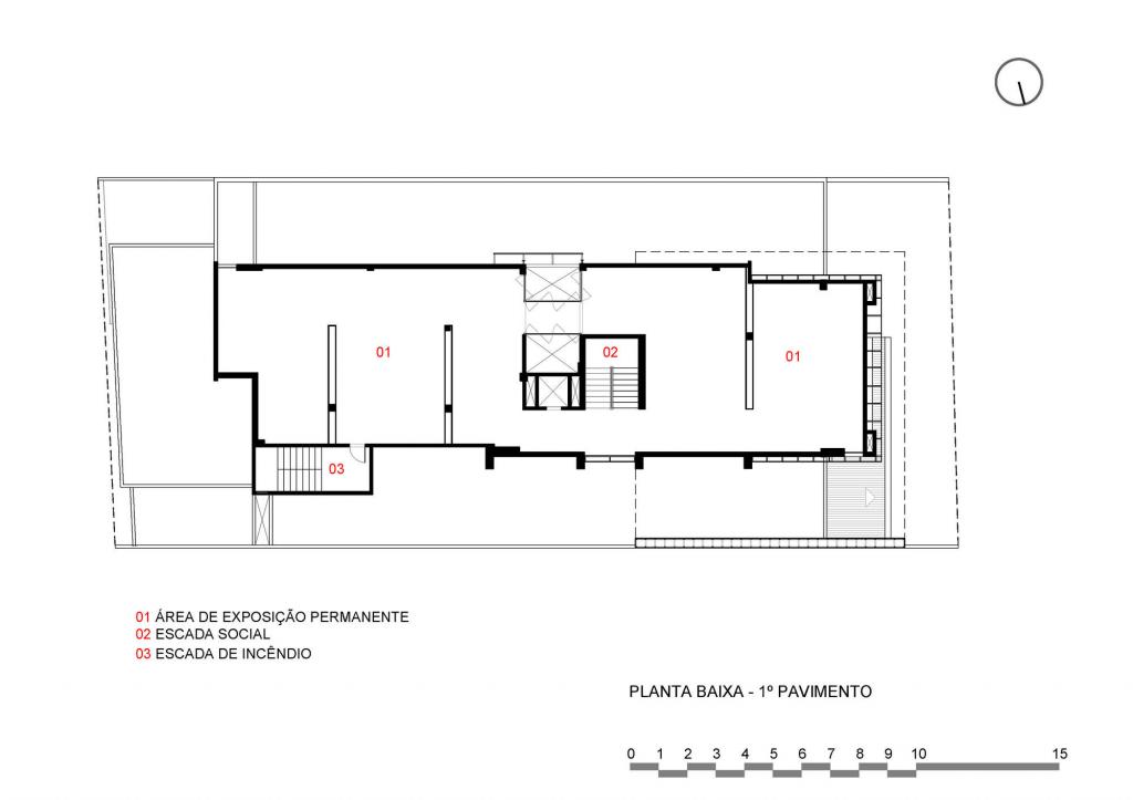
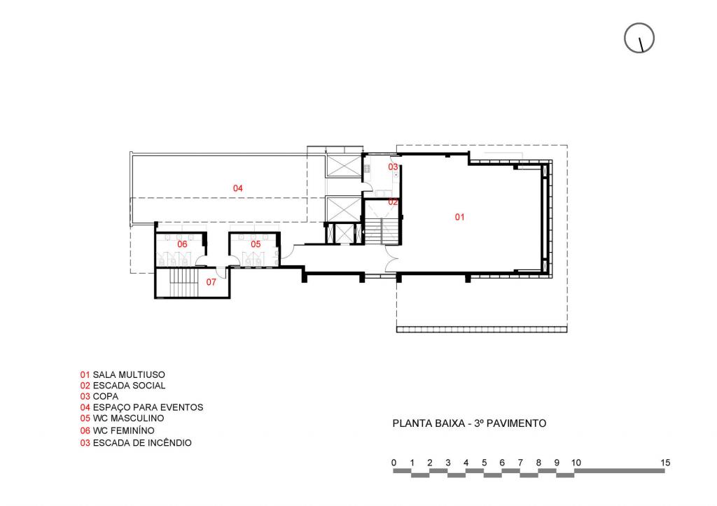
建筑有一共五层。主入口处一把雅致的楼梯标记了博物馆的入口轴线。它边上的一条无障碍坡道以雕塑的手法与外墙构图相匹配,被作为小广场的空白空间凸显出来。广场内栽有东北半干旱地区的典型树木,为严肃的建筑体量带去地区元素。地面层包含了大厅,整合咖啡厅、图书馆、商店与卫生间的混合区域和临时展览区。永久性的展览位于一楼和二楼,拥有一模一样的平面。展览区的空间是完全严肃的,但在走道区域有舒适的垂直花园,它代表了一种展览之间的过渡,好比视觉上的休息。在第三层有一个半露天的平台用作远眺城市,还有一个为事件、研习会和讲座准备的多功能室。所有的后勤和支持都位于地下室,包括了一个收纳藏品用的技术间。



一些对指标的考量是为了控制建筑内的自然光,这对展品的保存和博物馆空间的品质维持来说至关重要。大部分旧建筑的开窗都被封上,唯独中庭得以保留。在此之上建造了走道,既增添了视觉互动,又为原有有限的线性步道补足了回路。石膏天花板被完全移除以换取更大的高度。现有梁的无序网络与显露的电缆托盘协调一致,可以容纳所有类型的设备:照明,气候控制和电气管道都安装在这个空间。



建筑门面的改造是这个项目中最激动人心的变动之一。原有的建筑虽然已经仔细考虑过用一个悬挑的体块来表现较高楼层,但它在构成上的展示依然欠佳。此外,少数视觉上的障碍影响了从人行道上完整地观察建筑。转变的想法是将悬挑的体块视作外墙的主要元素,匹配金属结构的通风立面和多孔铝合物板(A.C.M.)的镀层,一来从旁减轻福塔雷萨下午日照带来的强烈热负荷,再来通过穿孔大小的变化为纯粹的体块带来动感,制造出镶嵌画的效果。墙面的压顶石用了两块华盖。较小的一块为主入口遮阴,也为立面上借玻璃来消解其他材料的不透明性提供了可能性。较大的“L”形的一块轻盈地落在建筑之上,为整体的构图生成了一个理想的比例。


这个项目的主要目的是通过体量分析打造一座传达形态和材料的永恒与肃穆的当代建筑。外立面比例划分的非凡特性令人难忘,任何见过它的人都会轻易被其同化。







项目图纸

△一层平面图

△二层平面图

△三层平面图

△四层平面图

△五层平面图

△立面图

△剖面图

△剖面图
项目信息
建筑设计:Marcus Novais Arquitetura
面积:1940 m²
项目年份:2017
摄影师:Celso Oliveira, Igor Ribeiro
厂家:Esquadrias de alumínio, Estrutura Metálica, Fachada ACM, Mobiliário especial, Móveis Planejados
发起人:Marcus Novais, Lucas Novais
主创建筑师:Yuri Praça, Thiago Baêtas
项目团队:Fernando Araújo, Daphny Xavier, Renato Oliveira, Andrinne Araújo, Marcela Craveiro
监管者:Ivo Mesquita
设备安装:Prediais UTP engenharia
空调:Pedro Cumaru
照明:Studio IX
承包商:Simpex
地点:巴西,Varjota

BIM建筑网





评论前必须登录!
注册