
徐渭艺术馆及青藤广场,是我们在绍兴古城实践项目里非常重要的一环,也是“又见青藤”城市更新计划中的关键行动,它作为“徐渭诞辰500周年暨徐渭故里开放仪式”举办的主要场馆,于2021年五月正式投入使用。
事实上,艺术馆的概念方案在首次场地踏勘中已初步成型,方案吸取青藤书屋建屋造园之精髓,并对当下古城更新中的地标式公共文化建筑提出思考:我们尝试建立一种新的空间表达,以此联结以传统民居小尺度为主的周边建成环境,同时满足当代艺术展览对大空间的需求;并借此探讨“历史语境中的现代性”话题。

△设计草稿图

△ 徐渭故居青藤书屋,不大不小、精致优雅、不羁构图、文气十足©ACRC

△ 俯瞰徐渭艺术馆,可清晰感知周边小尺度传统民居的建筑肌理©雷坛坛
纵向五进与开口造园徐渭艺术馆选址于昔日的绍兴机床厂旧址,场地位于徐渭故居——青藤书屋以北、后观巷中部。首先,我们从老机床厂的大空间组合中得到启发,设计采用“纵向五进、横向三折的不等边人字坡造型”的建构逻辑。东西两侧五进两层,作为主要展陈空间;中间一跨两层,打通纵向五进格局:底层为南北贯通的门厅,共享大厅兼小型临时报告厅则位于二层,上下两层共享空间同时承担两侧展厅间转换枢纽的功能。

△ 站在大乘弄北端,由青藤书屋方向注视徐渭艺术馆©贾方

△ 横向三折的不等边人字坡造型缓和大尺度空间自身的疏离感©章晨帆
我们在东西两侧的不同平层中各设置一个内部庭院,它们合理分隔了展厅的空间体量,增强室内通透性的同时,山石水瀑在绿意笼罩中的造园设计,也为游客提供了参展之外更多观赏与休闲的可能性。

△ 通透的底层贯穿空间,串联两侧展厅与辅助功能,同时连接南北广场©雷坛坛

△ 二层中庭提供休憩、集会、观赏、拍照等多重使用场景©雷坛坛

△ 一层西向主景庭院以观赏为主©雷坛坛

△ 二层东侧庭院为报告厅提供室外休闲场所©雷坛坛

△ 平日里的报告厅也是参观者的空间取景器©贾方
乌片如墨与顶地同泼除了空间处理手段,绍兴传统风貌的当代意向表达也体现在对材料的精细选择上:黑色金属肌理自屋顶沿人字坡屋展开,至东西两侧二层结束,南北向二层以上选取白色花岗岩实墙面;一层四面内凹做横向人字坡单元化肌理重复铺贴,局部按功能和统一模数做幕墙处理,并以灰色统一花岗岩和幕墙材质。建筑整体呈现绍兴典型的黑白灰色调,局部留白加之正向三折人字坡轮廓线,共同营造当代山水意向。

△ 黑白灰色调让徐渭艺术馆巧妙融入周边建成环境之中©雷坛坛

△ 建筑南北向二层体量,采用接近白色的带山水隐喻肌理的花岗岩实墙面处理©雷坛坛
我们特意保留机床厂东、北两端老墙面,对比艺术馆中全透明的玻璃幕墙和白色石质板材,让时间得以在空间场景中形成张力。

△ 被保留的机床厂老墙(施工中拍摄)©ACRC

△ 老墙与民居的对景中,可以看到下沉的青藤广场(游客中心)©雷坛坛
位于场馆南侧的青藤广场,连接北侧艺术馆与南侧青藤书屋,铺垫前场氛围,同时作为游客中心承载人群的集散功能。广场延续艺术馆的建构逻辑,在东西两侧分别“掀起”一大一小两处人字坡地景:西侧微隆用以围合广场,东侧略高,借助局部下沉,巧妙地将游客中心的体量躲在人字坡地景之下。

△ 在广场的东西两侧分别“掀起”一大一小两处人字坡地景©雷坛坛

△ 游客中心躲在人字坡地景之下©雷坛坛

△ 徐渭像伫立在艺术馆西南侧©雷坛坛
整个广场采用深色石质铺装,西侧借助坡起营造流水景象,同时,一尊原创“徐渭像”伫立在艺术馆西南侧,坡起的东北侧,使之成为整个广场的视觉焦点和艺术馆的前景;东侧坡起处的台阶式设置,则作为观众席为集散聚会提供恰当的场所。

△ 起翘的缓坡搭建起城市的戏剧舞台©雷坛坛
与此同时,借助“视点转换”的空间营造手法,让“连续铺垫”成形于不断移动变换的视点转移中,为建筑与景观在视觉与心理上的融合构筑起完整统一的空间体验与印象烘托——即所谓:源自江南的山水精神。

△ 黄昏中的徐渭艺术馆©雷坛坛
社区里的公共艺术空间
当城市更新与古城保护日渐成为人们茶余饭后的闲谈话题,我们希望通过设计呈现思考:当代公共艺术空间如何介入古城文化脉络,融入并影响市民生活进而完成对“未来传统社区”的初期重构与展望,提升片区生活空间质量并赋予其新的活力,掀角屋顶,又见青藤。

△ 二层南北向幕墙设计连通古城肌理,让变化中的城市面貌成为新的展陈内容©蒋兰兰

△徐渭艺术馆正在逐渐融入当地的社区生活之中©雷坛坛
徐渭先生,疯癫泼墨,有意无意已然天成;我等所为,无非:将墨掀起,筑一疯癫可纳、凡人可入可游、可思可想的、虚为场所实为建筑的——广义山水而已。

△ 参观者排队进入徐渭艺术馆©雷坛坛

△ 青藤广场上的水景观©雷坛坛

△青藤广场建成后的使用情况©雷坛坛

△ 夜色中的徐渭艺术馆©雷坛坛
项目图纸

△区位示意图

△区位图

△总平面图

△一层平面图

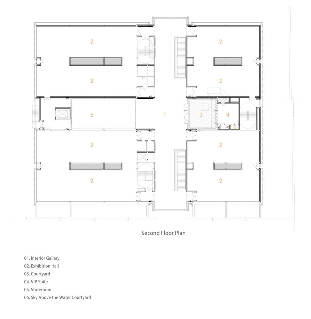
△二层平面图

△地下一层图

△分析图

△分析图

△分析图

△分析图

△分析图

△剖面图

△剖面图

△剖面图
项目信息
建筑设计:UAD – ACRC
面积:8504 m²
项目年份:2021
摄影师:雷坛坛, Fang Jia, Lanlan Jiang, Chenfan Zhang
主创建筑师:胡慧峰
设计团队:胡慧峰、蒋兰兰、章晨帆、韩立帆、朱金运、李鹏飞
结构设计:张杰、陈旭、吕君锋、丁子文、沈泽平、陈晓东
给排水设计:易家松、邵煜然
暖通设计:潘大红、李咏梅
电气设计:张薇、俞良、杜枝枝
电气/弱电设计:林华、叶敏捷、杨国忠
景观设计:吴维凌、王洁涛、吴敌、朱靖、敖丹丹、何颖、林腾
室内设计:楚冉、刘婉琳、汪军政、梅文斌
展览设计:赵同庆、梁爽、陈伟、黄世琰、 孙小童
照明设计:王小冬、赵艳秋、傅东明、冯百乐、吴旭辉
幕墙设计:史炯炯、王皆能、段羽壮、张杰
基坑围护设计:徐铨彪、曾凯
BIM设计:张顺进、任伟、严宜涛、王启波
委员会:房朝君、王青、苗赛、贝思伽、李延琦、李晨施工方
委托方:绍兴市文化旅游集团
施工方:浙江勤业建工集团有限公司
合作方:浙江星睿幕墙装饰工程有限公司、故宫出版社和广东集美设计工程有限公司联合体
地点:中国,绍兴

BIM建筑网





评论前必须登录!
注册