室内、室外交替使用的栖居空间
漫田画乡·画圣浜理想村项目位于河山镇东浜头村,核心区位于画圣桥、南圣浜两个自然组。河山政府引入乡伴文旅集团,依托丰子恺陵园、逃难码头等文化元素和画圣桥自然村落、退散进集后保留的工业厂房、农业产业基地等资源,规划建设一个集精品滨水民宿、艺术餐厅、画圣学院、乡村艺术馆、滨水茶吧等建筑群的理想村。融合周边水系、农田等自然环境要素,通过完善基础设施,提升沿线环境,打造具有示范性和影响力的美丽乡村田园综合体。河山镇以打造画圣浜理想村项目为契机,积极探索农业与旅游、农业与文化的融合发展,把美丽乡村转化成美丽产业、美丽经济、美丽生活,打造嘉兴市的乡村未来社区。本次原舍·河洲的建设作为第一批建设投入启动的项目先行。
△项目视频 © y.ad studio
项目区域位置
东浜头村位于桐乡市河山镇,毗邻上海、杭州、苏州、宁波等大城市,距离上海市约两小时车程,距离杭州市约四十分钟车程,区域交通十分便捷。

△区域区位 © y.ad studio

△项目区域© y.ad studio
从地域、文化元素开始
项目所在地离乌镇、南浔等江南水乡古镇均不远。
桐乡在我脑海中的印象总是关联着水乡古镇,也许是乌镇知名度太高的原因。提起桐乡就能想到古镇,埠头,小桥流水和狭小的街巷空间……但是除此之外木心和丰子恺漫画也是我可以立马想到的元素。
而本次项目所在地不仅在桐乡,而且东浜头村与丰子恺先生又有着千丝万缕的关系。这里作为丰子恺先生出生与晚年生活的地方,有画圣桥、有1934年抗日战争爆发后丰子恺先生乘船逃离故乡的逃难码头和丰子恺先生的陵墓。

△地域特征、文化元素分析与启发 © y.ad studio(图中引用图片来源于网络)

△项目所在村庄原始肌理 © y.ad studio

△场地现况© y.ad studio
从理想的栖居空间展开
设计之初运营方提出几个要求:面积要小、密度要低、使用空间要大、要独立、而且得有别墅的感觉。所以在户型设计上一直围着面积、密度、舒适、功能多而全还能类别墅的居住场所的方向进行。经过推敲和讨论我们设定了几个原则,使之成为一个有别于常规住宅的居住使用体验空间。
a、类独栋空间,控制在80-100平左右的空间面积,具有上下层空间。
b、室内外空间交替使用。
c、在居住体验中注入诗情画意,融入自然,“可观可行、可游可居”。

△构思草图© y.ad studio

△建筑单体分析图© y.ad studio

△建筑模型© y.ad studio

△建筑模型 © y.ad studio

△民宿建筑外立面 © Peter Dixie / Lotan Architectural Photography

△民宿外立面© Peter Dixie / Lotan Architectural Photography

△民宿阳光房外立面 © 严旸

△民宿外立面 © 严旸

△民宿外立面© Peter Dixie / Lotan Architectural Photography

△民宿内庭院 © 严旸

△民宿内庭院 © 严旸

△民宿1F室内空间© Peter Dixie / Lotan Architectural Photography

△民宿1F室内餐厅© Peter Dixie / Lotan Architectural Photography

△民宿楼梯© Peter Dixie / Lotan Architectural Photography

△民宿楼梯 © 严旸

△民宿2F楼梯间 © 严旸


△公区建筑外立面© Peter Dixie / Lotan Architectural Photography

△公区建筑外立面© Peter Dixie / Lotan Architectural Photography

△公区内廊道 © Peter Dixie / Lotan Architectural Photography

△公区接待台© Peter Dixie / Lotan Architectural Photography

△公区门厅© Peter Dixie / Lotan Architectural Photography

△公区门厅 © 严旸

△公区卫生间过道 © 严旸

△公区洗手间© Peter Dixie / Lotan Architectural Photography

△公区咖啡区&水吧© Peter Dixie / Lotan Architectural Photography
符合当代生活与审美的方式诠释江南水乡民居
在设计策略上主要从以下几个方面进行设计:
1、保持临水而居的水乡特色
首先在场地设计上,将场地重新进行了调整。项目北面与东面均为河道,而南面则有一片水塘,但是彼此之间不能连通。我们将原水塘与河道之间进行串联形成三面环水的半岛式地形,并保留了原有场地大树。
然后将功能建筑避开大树、环河而建,尽量保持自然原始植被环境。同时分不同区域植入三个公共亲水、皮划艇平台,让其形成一个类似江南水乡公共埠头的亲水平台空间。

△场地整理分析图 © y.ad studio

△公共埠头亲水平台分布图© y.ad studio

△功能分布分析图 © y.ad studio

△剖面分析图© y.ad studio

△夜间鸟瞰 © 严旸

△建全区南外立面 © Peter Dixie / Lotan Architectural Photography

△全区南外立面 © Peter Dixie / Lotan Architectural Photography

△傍晚全区南外立面 © Peter Dixie / Lotan Architectural Photography

△公共亲水平台 © 严旸

△独享亲水平台 © 严旸
其次制造一条游走的动线来串联各个空间,用行走的方式感受场所的变化,增强体验感与仪式感。
通过曲折的廊桥和缩小尺寸的通道,植入犹如园林及街巷的人行尺度感与视觉观感。
场地原入口处大水杉树在保留的同时,让架空廊桥穿行其中形成一个钻入树林感觉的入口空间。制造行走体验和新奇感的同时也让其具有整理思绪的仪式感,暗示着走过这段后将进入到另一个完全不一样的环境。

△游走动线分析图 © y.ad studio

△曲折廊桥夜景 © 严旸

△曲折廊桥夜景 © 严旸

△曲折廊桥© Peter Dixie / Lotan Architectural Photography

△内部巷道© Peter Dixie / Lotan Architectural Photography

△内部巷道 © 严旸
2、从漫画中来
由于场地原因,景观以一种什么样的方式介入一直都是困扰我们的一个问题。最初设想的以园林的方式介入,觉得场地太过于局限无法展开,而且感觉偏沉重和拥挤,刻意的人工植栽与造景也容易造成日后维护成本增加或是形成消极空间。索性以“留白空间、减少投入、回归纯粹、回归日常、植入艺术”的方式来塑造。用单纯的设计手法及普通、自然的材料、野趣的植栽来大面积展开。并将前区道路也纳入景观范围,加强场地整体感的同时,形成外部与内部两个呼应空间。在注入艺术主题后,形成两个艺术活动广场。并以此为基底在场地中植入丰子恺先生的画中元素,通过提炼与演变植入到场地景观、艺术装置与室内空间中。

△广场分布图 © y.ad studio

△艺术装置分布图© y.ad studio

△整体空间生成分析图© y.ad studio

△分析图© y.ad studio

△艺术泳池 © 严旸
项目图纸

△总平图 © y.ad studio

△竖向平面图© y.ad studio


△节点详图© y.ad studio

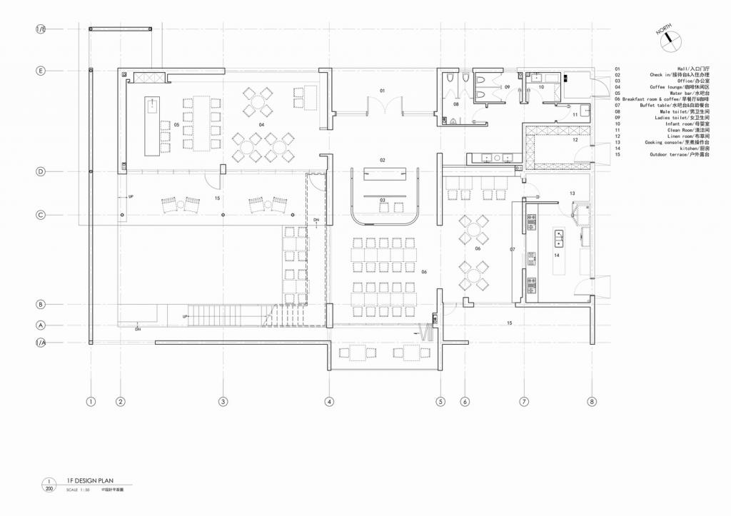
△公区一层平面图© y.ad studio

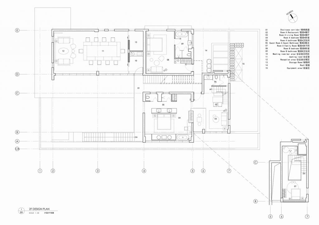
△公区二层平面图© y.ad studio

△民宿一层平面图 © y.ad studio

△民宿二层平面图© y.ad studio
项目信息
项目名称:桐乡漫田画乡·理想村原舍·河洲
建设单位:桐乡市河山镇东浜头股份经济合作社
设计委托:乡伴文旅
建筑、景观、室内设计:y.ad studio | 上海严旸建筑设计工作室(www.sh-yad.com)
结构设计:霍振忠
建筑设计院:上海时代建筑设计院
施工单位:上海景域园林建设发展有限公司
项目团队:严旸、吴可嘉、严昱、胡红梅
建筑面积:1901.68平方米
主要材质:水洗石、外墙涂料、竹钢、水泥肌理漆、马赛克、水磨石砖、木饰面
设计时间:2019.12-2020.10
建造时间:2020.10-2021.08
摄影版权:Peter Dixie(英) /洛唐建筑摄影、严旸
视频拍摄:上海严旸建筑设计工作室
y.ad studio
上海严旸建筑设计工作室于2017年成立,设计实践与研究着重于城市更新、商业体改造、文旅地产、综合性园区、餐饮酒店、乡村建设等方面。在设计实践、探索中不断自我学习、教育、反省、突破。从室内到建筑、建筑到景观、规划及产品。由内而外、从形体到体验,通过不断的尝试、越界与挑战,来突破边界与标签。通过更多积极介入的方式让设计、想法与空间衔接更完整。让建造、环境与人之间有更好的融合和可持续性。

BIM建筑网





评论前必须登录!
注册