
这所学校很适合“地区中心”这一略显平凡的注解。它作为下妻市中心学校,亦是许多担负该市建设人们的母校。学校与下妻市特色景观砂沼相邻,可在其前方眺望到紫峰、筑波山的两座山峰。

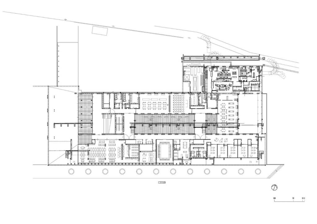
教学楼为3层直线型建筑,楼体全长超过100m。1层设有排列着间隔为1.8m的细水泥柱构成的假想界面,3层则是分成三段的混凝土结构的块状凸起。



通过2层部分的凹进,我们打造出了一条强调正门-砂沼-筑波山呈直线分布的轴线。

我们于面向正门道路的教学楼西侧的山墙面设置了出入口,并在出入口前方架设有一面折板状的大型屋顶。它既起到了每天早晨迎接学生上学的目的,同时还实现了与现存体育馆的一体化效果。


就目前而言,这个大屋顶仍隐藏在体育馆的阴影处,而它的真正价值将会在拆除旧体育馆后体现出来。









项目图纸

△一层平面图

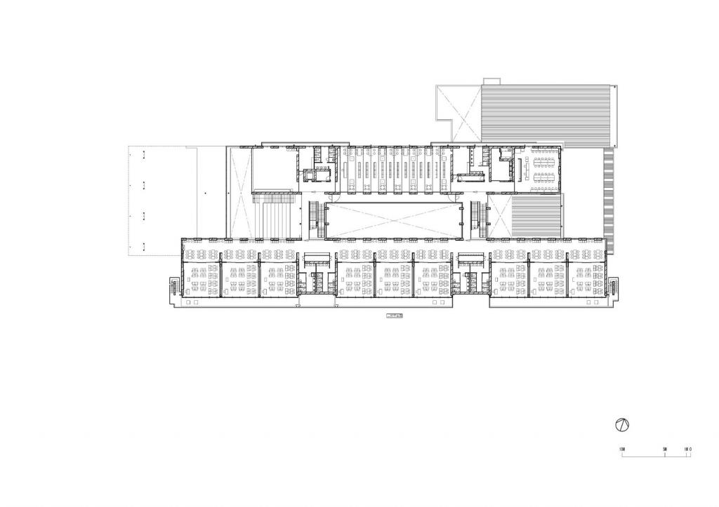
△二层平面图

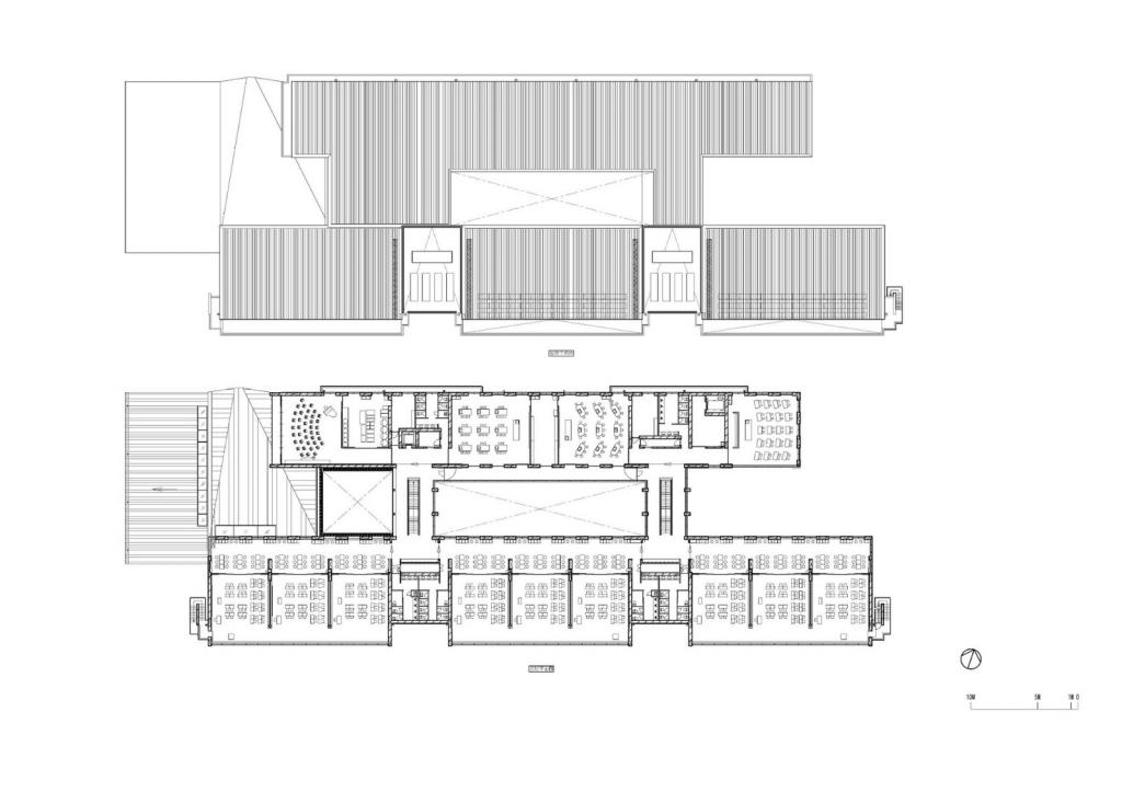
△三层及屋顶平面图

△立面图

△剖面图
项目信息
建筑设计:三上建筑事务所
面积:3818 m²
项目年份:2018
摄影师:Koji Horiuchi
主创建筑师:益子 一彦
业主:下妻市
结构设计:三上建筑事务所
施工方:佐田・塚田・鈴木・下妻JV
地点:日本,下要市
微信公众号:xuebim
关注建筑行业BIM发展、研究建筑新技术,汇集建筑前沿信息!
← 微信扫一扫,关注我们+

BIM建筑网





评论前必须登录!
注册