
Sentul Works 位于马来西亚首都吉隆坡(Kuala Lumpur)西冼都(Sentul West)中冼都公园的扩展园区当中。这座建筑建于1904年,已有百年历史,在英国殖民统治时期曾是马来联邦铁路(Federated Malay States Railway, FMSR)总部大楼的所在。




多年以来,这座拥有别致的砖混结构拱形柱廊立面的殖民地时期建筑早已成为了空洞的躯壳,掩映于公园里古老而茂密的大树树冠之间,直到 YTL Land Design Group 介入了对其的修缮工程当中。


设计团队希望创造出新旧共存的独特氛围,并将其作为现代办公建筑,实现新生。业主给建筑师的任务书中要求确保建筑改造在材料上不能偏离原有的建筑。在设计概念层面,“新的”决不能压倒“旧的”。新老元素应当和谐共存,立足于丰富的历史与遗产,表达当代审美。


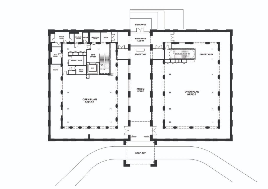
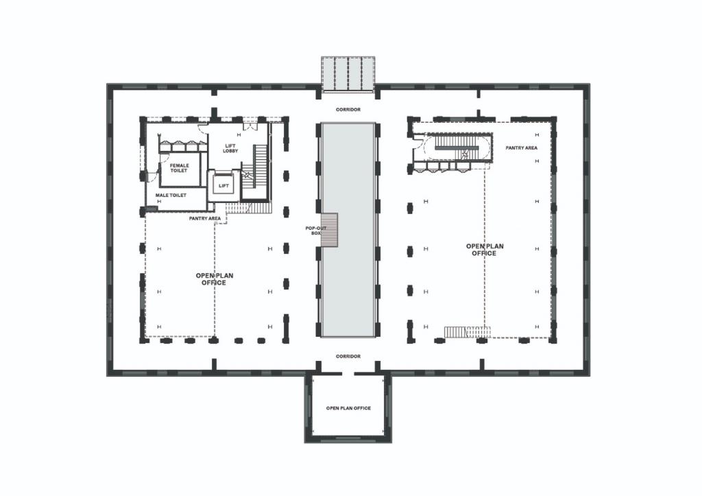
Sentul Works 最初的平面布置是以中央的双层体量的走廊分隔两侧的主要空间。为了迎合建筑内部的对称格局,走廊两侧采取自由平面的新办公空间现在包围着双层体量的中庭。在二层,两侧的办公部分之间用连廊联系了起来。这样,首层与二层的租户之间就在工作环境中建立起了视觉联系,同时不必牺牲各自的私密性。办公室的室内采用了灵活的自由平面布置,给予租户最大的适应性。他们可根据其工作需要进行调整。

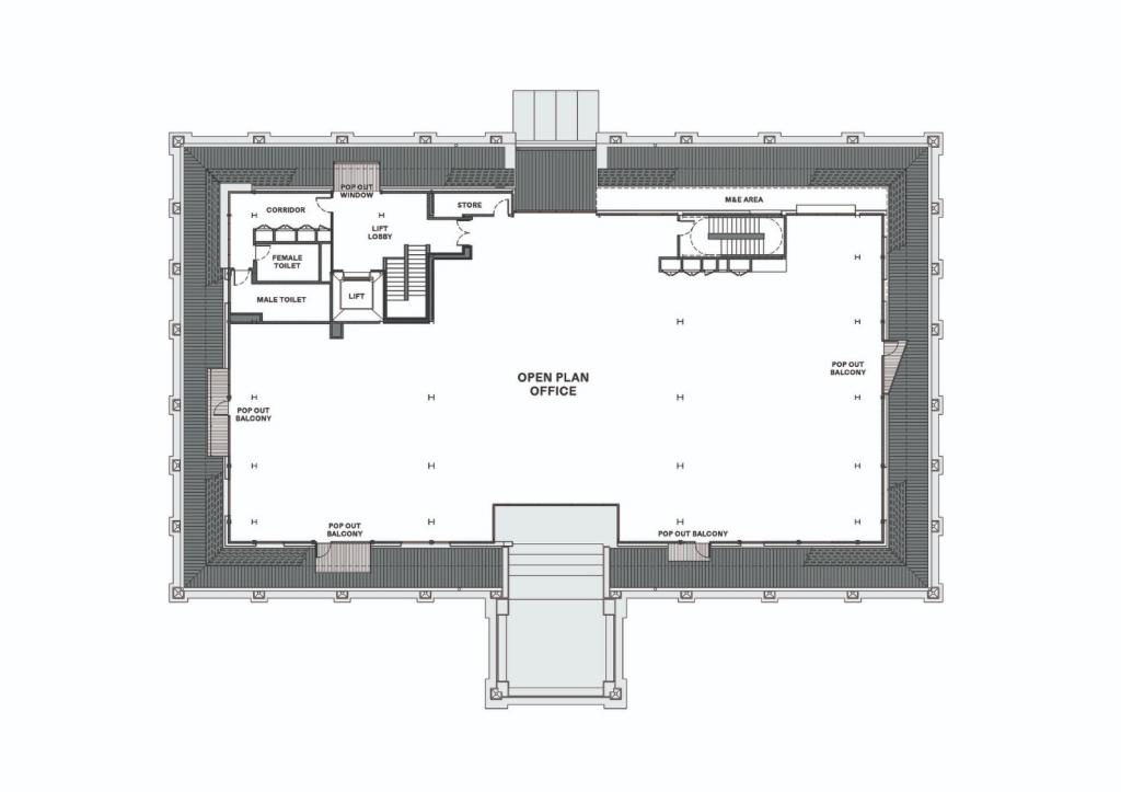
在下面两层庄重的殖民地形式之上,新建的三层和四层共同组成了一个新的体量。钢框架结构与支撑起的新楼板很好地融合在了一起,并与原有的结构相脱离。同时,这也带来了新旧之间建立联系的挑战。新体量在下部旧体量的基础上向内缩进,作为对旧的体量和存在的保护。




新体量使用耐候钢(Corten steel)作为建筑的外表皮,也与附近老火车车间裸露的钢框架和谐地融合在了一起。耐候钢的表皮赋予建筑现代的外观,同时其包含的暖色调的丰富质感也和周边老建筑所使用的乡村材料相协调。


中部的玻璃幕墙打破了新体量外部耐候钢表皮的连续性。这种立面上的打破增强了现代的抽象感,也与下部庄重对称的殖民地时期建筑形式相符。办公室的租户通过新体量外耐候钢表皮上的窗口与周围环境产生视觉联系。从办公室室内透过精心布置的窗户开口可以看到周边的绿植,而它们也给人以宁静之感。


在新体量外部线条间的开口上有意识地添加了大量阳台和凸窗(bay window),通过它们,可北眺铁路车间的历史遗存,可西览公园茂密绿景,可东望由 YTL Land 设计的标志性的 Fennel 高塔,抑或向西南看去,是同样由 YTL Land 设计的售楼处(sales gallery)。这些阳台和凸窗令人惊奇,增加了上部体量的抽象感,同时下部庄重的殖民地时期的建筑语言形成了对比。





项目图纸

△一层平面图

△二层平面图

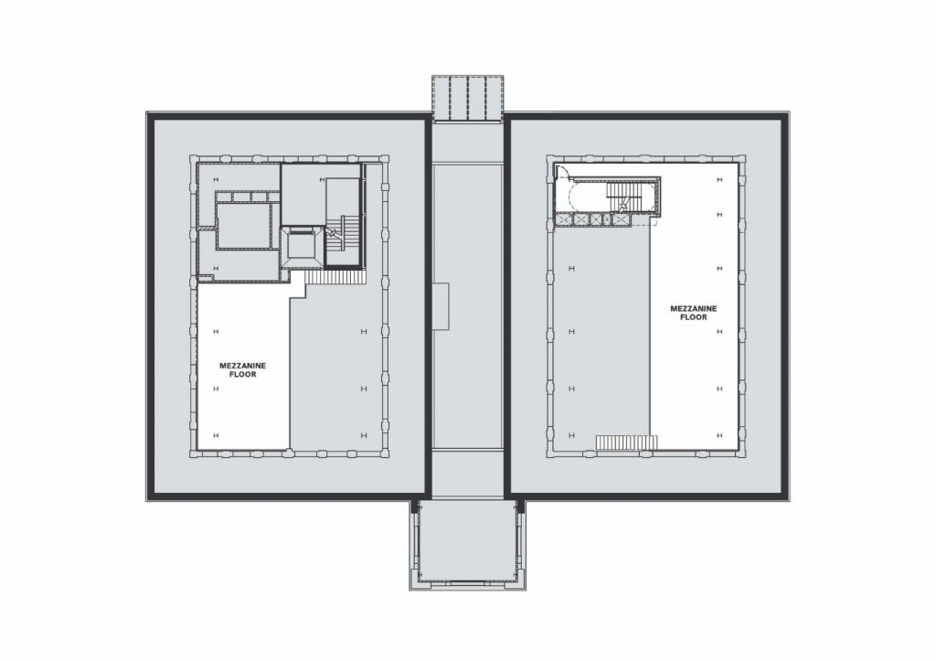
△二层夹层平面图

△三层平面图

△四层平面图

△立面图
项目信息
建筑设计:O2 Design Atelier, YTL Land & Development
面积: 40493 ft²
项目年份:2021
摄影师:David Yeow
主创建筑师:Edric Choo Poo Liang in collaboration, YTL Land Design Group
设计团队:Lim Min Syn
地点:马来西亚,吉隆坡

BIM建筑网





评论前必须登录!
注册