
这是一个建筑翻新项目,目的是将原有的住宅结构改造为韩国领先时尚品牌thisisneverthat的工作室。原建筑中大约40%的墙壁都被拆除并进行了重新布置,以适应新结构的需要。

原本的建筑结构被一层又一层的外墙依次包裹了起来,每一层的外墙都有着不一样的材料,就像是人的一层层肌理一般。每剥掉一层外墙,就能感受到室内光与亮度的变化。这样的渐变感是属于光线与建筑的运动。


建筑外墙与原有内部结构之家有一个缝隙,这个缝隙营造出了一种垂直感。该缝隙通过引入光线,空气和雨水来突出了整体的垂直性,为结构增加了另一个维度。


从外面看,最外层幕墙的半透明感使得人们能够窥视到建筑内部的一点点结构,表达出了隐藏在室内空间内的垂直性。


每一层外墙的材料都各不相同,既表达了不同的质感,又表达了不同的个性。而在最外层的幕墙则表现出了一种平淡与单调的感觉,通过内部一层层的幕墙保留了深度,并带来了一种原始感与未完成感。







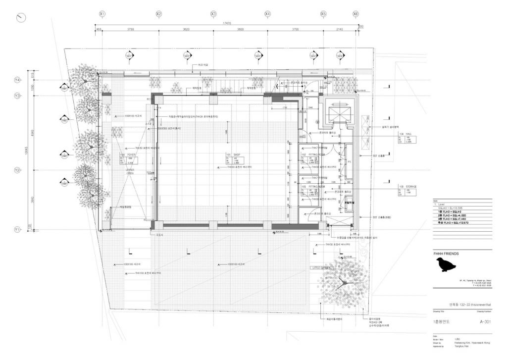
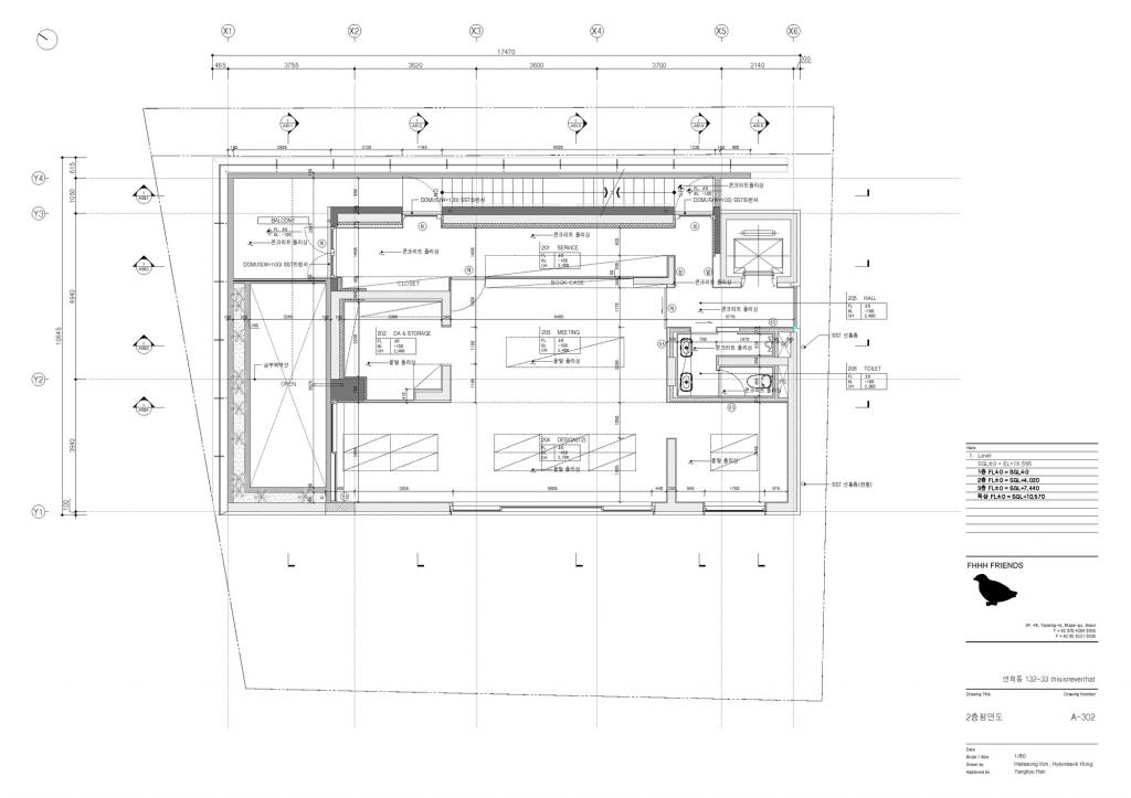
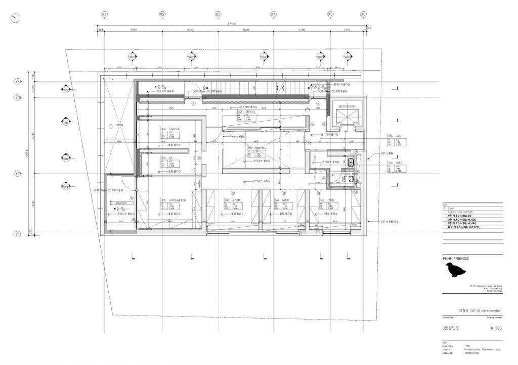
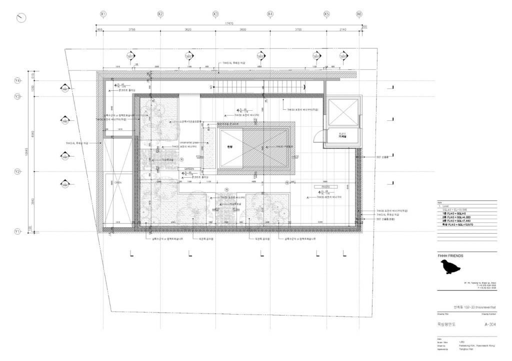
项目图纸

△平面图

△平面图

△平面图

△平面图

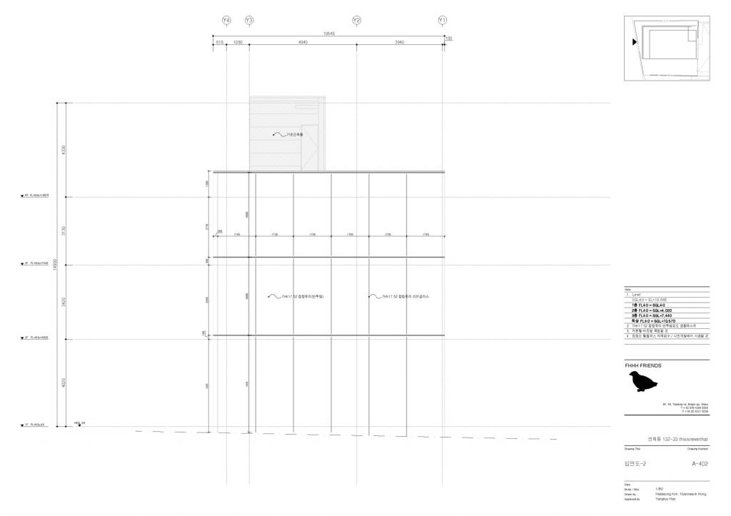
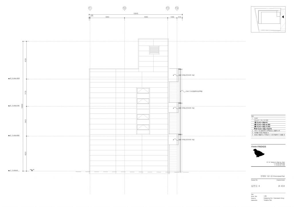
△立面图

△立面图

△立面图

△表里内的立面

△表皮内的立面

△表皮内的立面

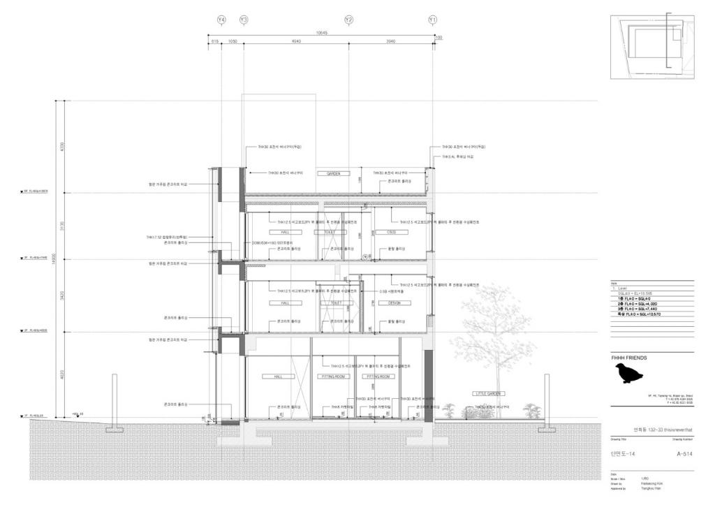
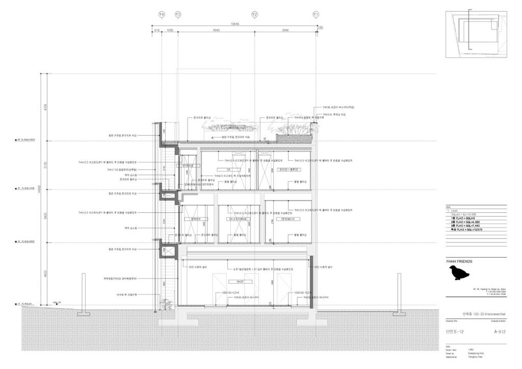
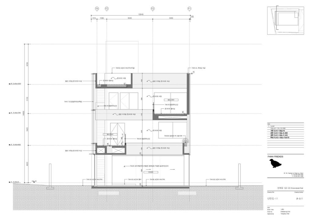
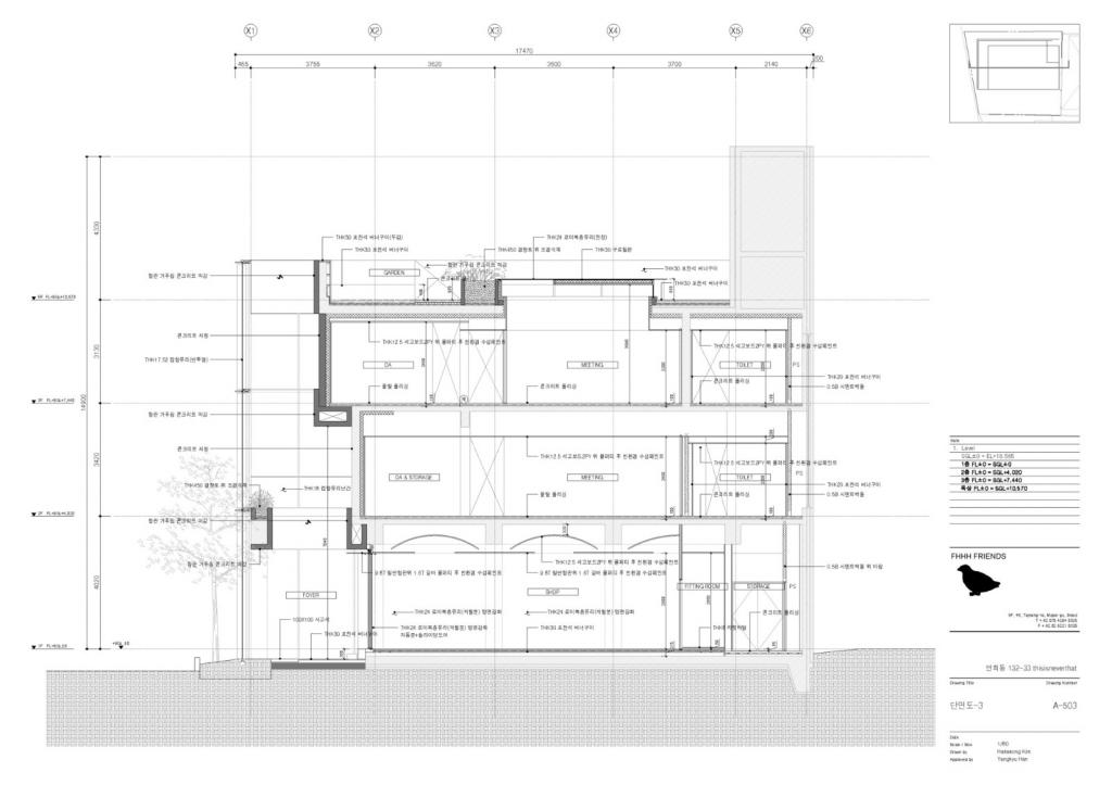
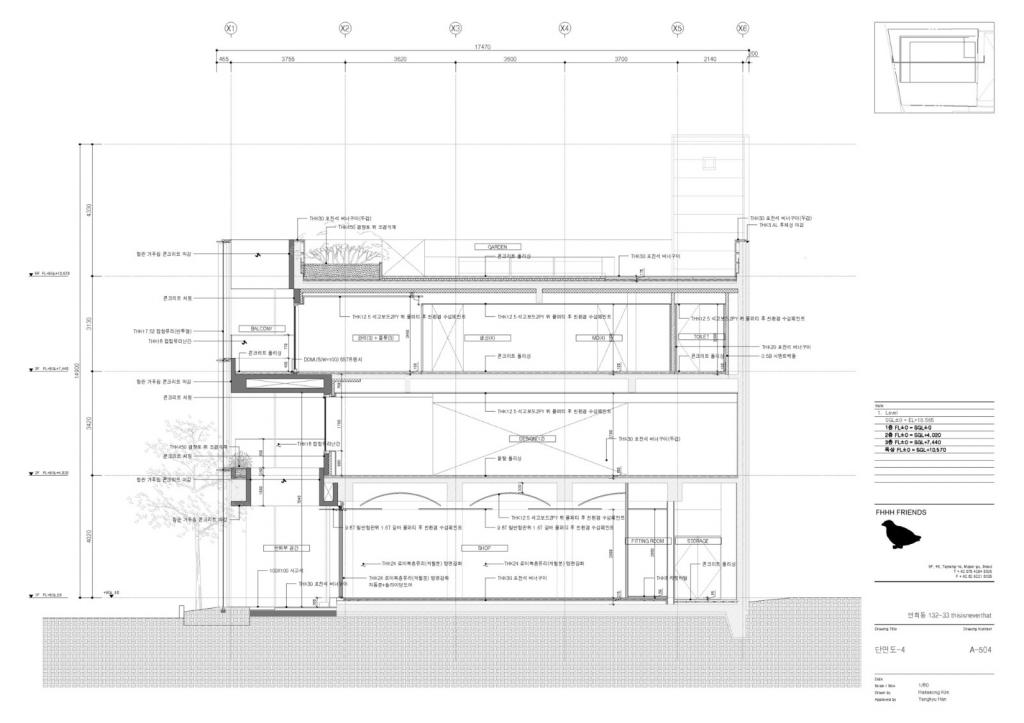
△剖面图

△剖面图

△剖面图

△剖面图

△剖面图

△剖面图

△剖面图

△剖面图

△剖面图
项目信息
建筑师:FHHH FRIENDS
面积:157 m²
项目年份:2019
摄影师:Shin Kyung Sub
厂家:AutoDesk, Byucksan, FILOBE, Hanil, Samnam Window, Trimble Navigation
主创建筑师:Han Yang Kyu, Han Seung Jae, Yoon Han Jin, Kim Hak Seong, Hong Hyeon Seok "Jerry"
设计团队:FHHHFriends, Han Yang Kyu, Han Seung Jae, Yoon Han Jin, Kim Hak Seong, Hong Hyeon Seok "Jerry"
客户:thisisneverthat
工程师:LEEGAK Construction Company
景观设计:Atree Landscape
合作方:STUDIO COM
地点:韩国,Seodaemun-gu

BIM建筑网





评论前必须登录!
注册