
设计概念:小小森林研究所―大楼中建造的属于孩子们的森林
专业设计幼儿园·保育园的事务所「日比野设计」全权负责从设计到运营,位于神奈川县厚木市大楼二楼的保育园。

以「小小森林研究所―大楼中建造的属于孩子们的森林」为设计概念,如以下8条所示,采纳了厚木当地广阔的森林要素,孩子们自己创造游戏,活动身体的同时能在自己喜欢的场所尽情投入到游戏当中。

01森之阶
园舍各处都设置了台阶,不似一般平坦的保育室,通过台阶的设置,在有限的空间当中孩子们能尽量使身体得到锻炼。


02室内之森
结合保育室中的台阶,园舍内各处都栽种了植物。身处室内也能观察到萌芽开花等季节变化,感到生机盎然的绿意,孩子们的感性也得到了培育。



03洞窟美工室
保育空间远处的美工室因为低矮围墙遮蔽大人的视线,孩子们能集中注意力尽情表达自我。内侧墙壁为黑板,用途广泛,既能展示孩子们创作的作品,孩子们又可以在黑板上画画,还能将磁铁贴在黑板墙上玩耍。



04探险家图书角
美工室的旁边,有一整面书架,还放置了水族箱和饲养箱。箱子的旁边就是各类图鉴和生物相关的绘本。将孩子们对生物的兴趣和学习联系在一起。

05秘密小径
探险家图书角的旁边有一个狭窄的过道,这里放置着扮家家酒的玩具。面朝东侧的的玻璃窗,能感受到温暖的太阳光,是孩子们能不断延伸想象的空间。紧邻着的栽培角,让孩子们即使身处大楼内也能培育蔬菜,接触泥土。

06眺望台
登上阶梯的最上层,有着能看见窗外景色的的吧台。孩子们可以从绘本架取出绘本在这里阅读,还能看见窗外街道和电车交相行驶的样子,是能和社会产生连接的场所。


07镜池
卫生间空间由镜子组成的墙壁所围绕。即使在室内也感受不到压迫感,仿佛跟生机勃勃的保育室相连一样过渡自然。镜子墙壁也是孩子们玩耍的场所,孩子们在这里画画,跟镜子互动,创造性的游戏也得以产生。



08森林餐厅
根据孩子们的身高而打造的配餐台,自己决定自己的饭量,自己运送餐食到自己吃饭的位置,自然而然培育了孩子们的独立自主性。同时这里也是开展食物教育的场所,方便孩子们在这里体验烹饪的乐趣。孩子们还能在这里和厨师交流,促进孩子们对事物的兴趣。
通过以上8点,作为逐渐被都市所更加需要,大楼内新型环境保育园的范例,孩子们的游戏和学习都得到了扩展,丰富心灵和身体也得到培育。



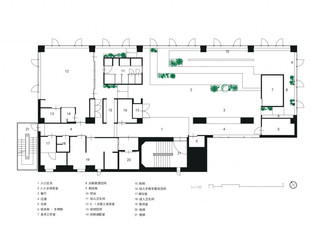
项目图纸

△平面图
项目信息
项目名称:KIDS SMILE LABO Nursery
所在地:神奈川県厚木市
设计监理:HIBINOSEKKEI + Youji no Shiro+ KIDS DESIGN LABO
使用面积(设施面积):340.08㎡
竣工时间:2021年3月
摄影:HIBINOSEKKEI

BIM建筑网





评论前必须登录!
注册