
△不同光线下的建筑表情©朱雨蒙
缘起
阿那亚戏剧节的重要版块“候鸟300”需要一个临时建筑,用来承载影像和装置的展陈。建设的整体预算为20万元,现场搭建时间被限定在7天以内,活动执委会的最初设想是用成品集装箱组合搭建以应对严苛的项目条件。设计方介入后主动提出新案,希望能更好得回应海边沙滩这一不寻常的场地环境,以及更加匹配戏剧节这一特定事件。

△不同光线下的建筑表情©朱雨蒙

△不同光线下的建筑表情©合木建筑工作室

△沾染了海天颜色的外表皮©朱雨蒙
场地
整个活动的主场地坐落在约100米宽的沙滩上。沙滩的东侧即是一望无际的大海,这里视野广阔、阳光直射、海风迎面、空气湿润;大海、沙滩、天空三个纯粹的景观元素,形成扑面而来的原始感和永恒感;沙滩西侧是高品质的居住社区,水平延展开的人工景观、完工或施工中的建筑构成了一幅新生城镇的景象。

△穿插在密集框架里的黑色展厅©朱雨蒙

△纯净的体量矗立在海岸线©合木建筑工作室
沙滩作为二者中间的缓冲地带,是人们亲近自然的绝佳位置,同时也是一道安全防御的边界和屏障。这种既连接又对峙的状态,也反应了人类与自然之间的复杂关系和情感,渴望亲近又要竖起坚固的保护壁垒。而这次沙滩上临时性的建筑,或许有机会可以触发别样的体会。

△错落分布的箱体展厅©合木建筑工作室

△二层洞口望向大海©朱雨蒙
建造策略
就本项目而言,效率是第一位的,这来自于时间和经济两方面的现实压力。在设计时间不足20天,建造时间只有7天的条件下,选择一个成熟、快速的建造系统是设计工作的首要任务;综合比较后,建筑工地常用的卡扣式脚手架系统成为我们的最终选择。这种施工辅助设备具有很强的灵活性和便捷性,其轻盈、通透的气质也符合设计的空间意图。

△环绕中庭的会议©朱雨蒙
展览的功能房间采用浇筑混凝土的木模板拼合而成,这是一种具有较好力学表现又价格低廉的工业板材。箱体的尺寸依照木模板1220mmx2440mm的模数来设计,并尽量少的切割板材;楼梯、走廊的设计同样以此为原则。遵循这种基本模数,脚手架框架大部分的单元尺寸被定为水平方向1.3米、竖直方向1.6米。

△活动期间的布展©朱雨蒙

△建造过程 ©合木建筑工作室
空间“刻画”
在有什么材料就用什么材料的前提下,如何契合场地、如何利用自然元素都需要设计上的精心雕琢。从常用的脚手架颜色中选择了暖黄色,以弱化金属管的工业感和冰冷感;颜色的运用抹去了人们对材料的常规印象,体会更多的是由它带来的情绪;构成展厅箱体的木模板选用黑色也是同样的考虑。钢框架细密轻透,黑盒子展厅内则与周围环境隔离、与时间隔离。

△建造过程©合木建筑工作室

△建造过程©合木建筑工作室

△建造过程 ©合木建筑工作室
半透明的柔性材料将整个建筑外立面包裹起来。通过多轮比较反光、透光、质感等材料特性,设计最终选择了白色的网眼布。这种常用于衣服内胆的材料质地绵柔、有细密孔洞,其“模糊”的特质弱化了室内外的空间界限。在不同光线的作用下使建筑呈现多种表情,有时是白色体量,有时透露细密框架和人影。阳光、海风被网眼布过滤后渗透到室内,沙滩同样也延续到室内地面,视觉、听觉、触觉均可感受到自然元素在空间内弥漫。

△建筑成为雕塑展品的背景©朱雨蒙

△建筑一角©朱雨蒙

△朦胧外表皮包裹的室内空间©朱雨蒙

△中庭空间©朱雨蒙
网眼布透气的特性,可以使整个立面不需要开洞,所有的结构杆件、展览空间、楼梯等建筑元素都被笼罩在这层柔软、半透明的材料里,当然还有闯进来的人;空间、物质、人平等的存在于这个“朦胧”世界。

△内部骨架若隐若现©朱雨蒙

△鸟瞰夜景©朱雨蒙

△调整大小 暖黄色的杆件与黑色的箱体©朱雨蒙
结语
20天的时间内,人和物瞬间的聚集、瞬间的离散,这栋房子经历了建成与湮灭,临时的建筑已然成为永久的回忆;活动期间它有个好玩儿的名字,叫“晃神儿空间”。建筑拆除后沙滩回到了之前的样子,就像什么都没有发生过一样。

△暖黄色的框架与半透明的外表皮©朱雨蒙

△日出海面透射到室内空间©合木建筑工作室

△眺望大海的洞口©朱雨蒙

△雾色的海面与朦胧的室内©朱雨蒙

△夕阳剪影下的通透体量©朱雨蒙

△夕阳西下时的内部剪影©朱雨蒙

△西侧主入口©合木建筑工作室

△延伸出去的沙滩和大海©合木建筑工作室

△夜晚格子立面逐渐清晰©朱雨蒙

△夜晚如海边的一盏灯笼©朱雨蒙

△一层环廊©合木建筑工作室

△在海与城之间©合木建筑工作室

△海面视角夜景©朱雨蒙

△深夜的沙滩和大海一片漆黑©朱雨蒙
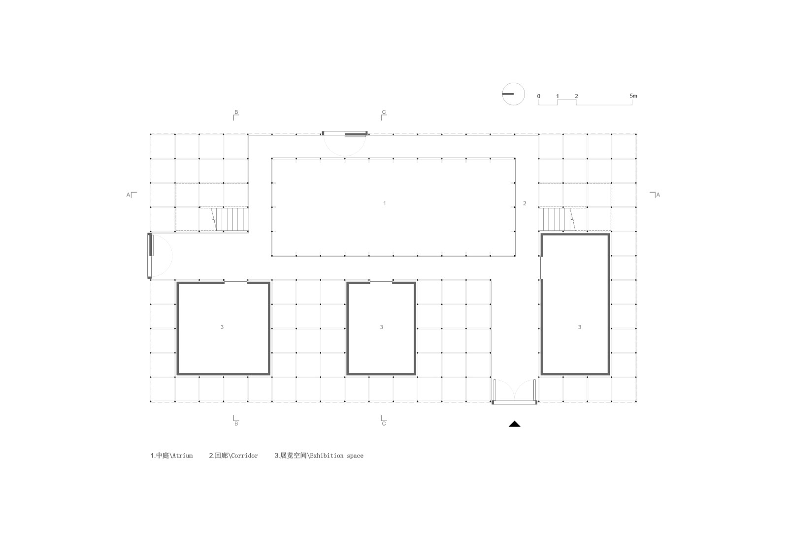
项目图纸

△总图

△一层平面

△二层平面

△长剖A-A

△短剖B-B

△短剖C-C

△地形剖面

△轴侧

△剖透视
项目信息
建筑单位:阿那亚戏剧节“候鸟300”执委会
项目地点:河北省秦皇岛市北戴河新区
设计单位:合木建筑工作室(Atelier Heimat)
设计团队:张东光、刘文娟、孙志伟、周颖、崔秀荣
照明顾问:董天华
施工管理:张长海、白焕义、武向文、李杨
建筑面积:480平米
造价:20万元
设计时间:2021年5月
建成时间:2021年6月
摄影:朱雨蒙、合木建筑工作室

BIM建筑网





评论前必须登录!
注册