
在国际上活跃的White Arkitekter事务所一直以来致力于可再生木材和社会生态可持续建筑的探索。2016年,他们在瑞典的谢萊夫特奧设计了一座20层的建筑,这将是世界上最高的木制高层建筑之一。项目名为Sara Kulturhus,位于城市中央,是集剧院、美术馆、画廊、公共图书馆、会议中心和酒店为一体的文化中心,于今年正式开放。



该建筑的设计是为了减少潜在的以及运转时所产生的碳排放,主要由生长在当地北方森林中的木材制成。大楼配备的太阳能电池板和高效能源系统有助于进一步减少项目的碳足迹。


一座全新的文化中心。2016年,White Arkitekter事务所赢得了Sara Kulturhus中心的国际设计竞赛。项目所在的谢萊夫特奧 (Skellefteå)位于瑞典北部,地处北极圈正下方,有着悠久的木结构建筑传统,而这也是竞赛获胜方案的主要灵感来源。方案不光给城市的市民提供了一个全新的公共生活空间,还意在展现事务所在可持续设计方面的能力。


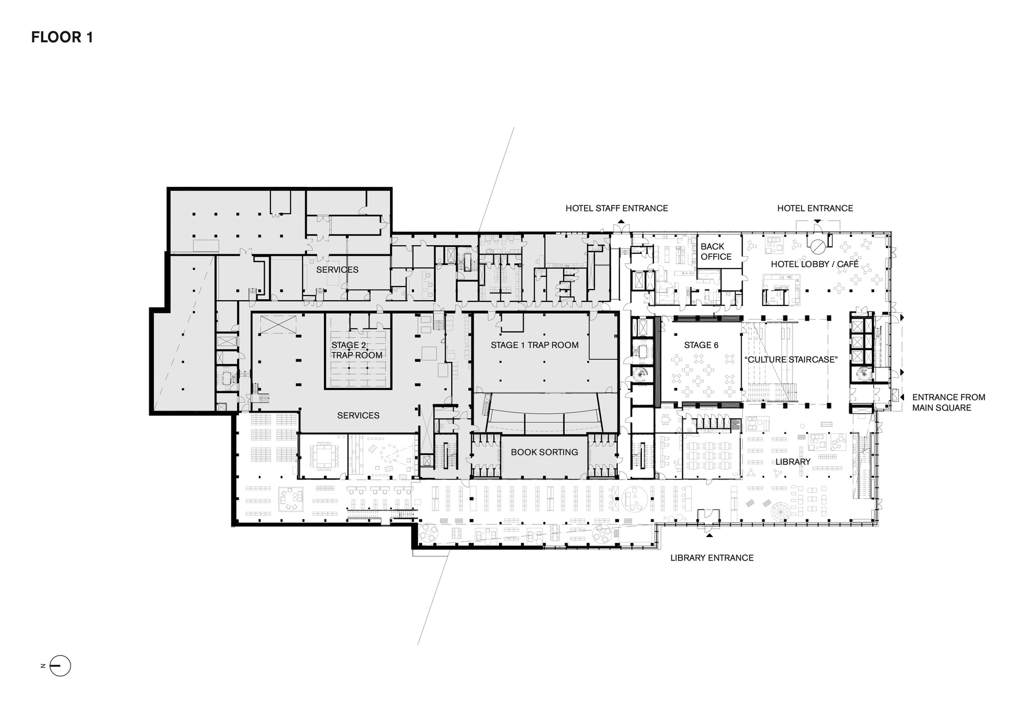
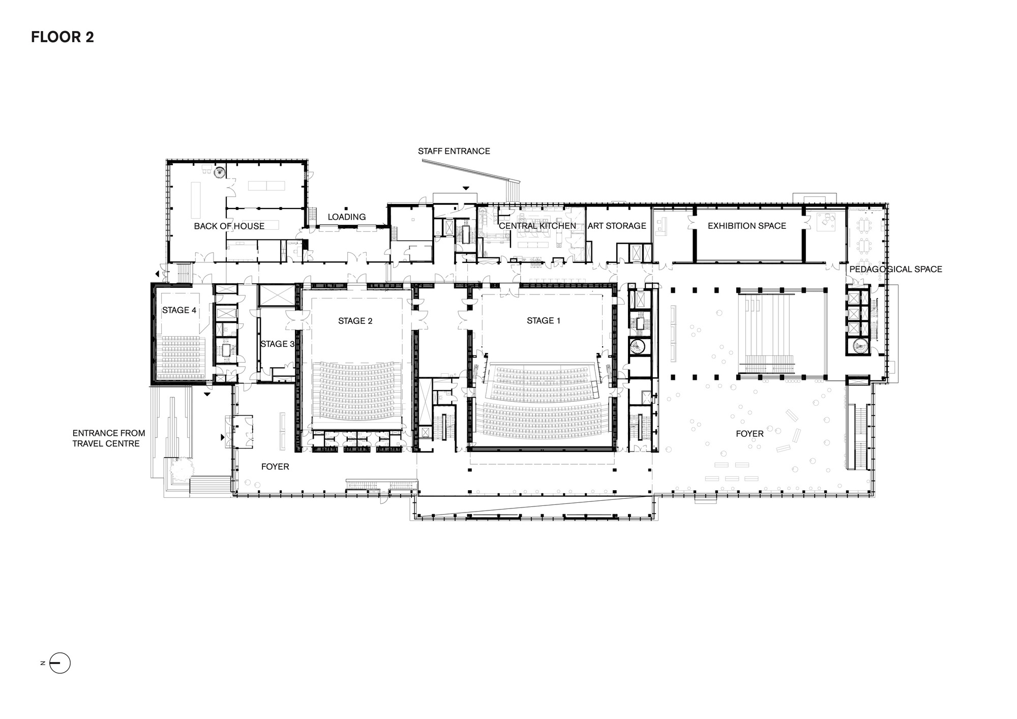
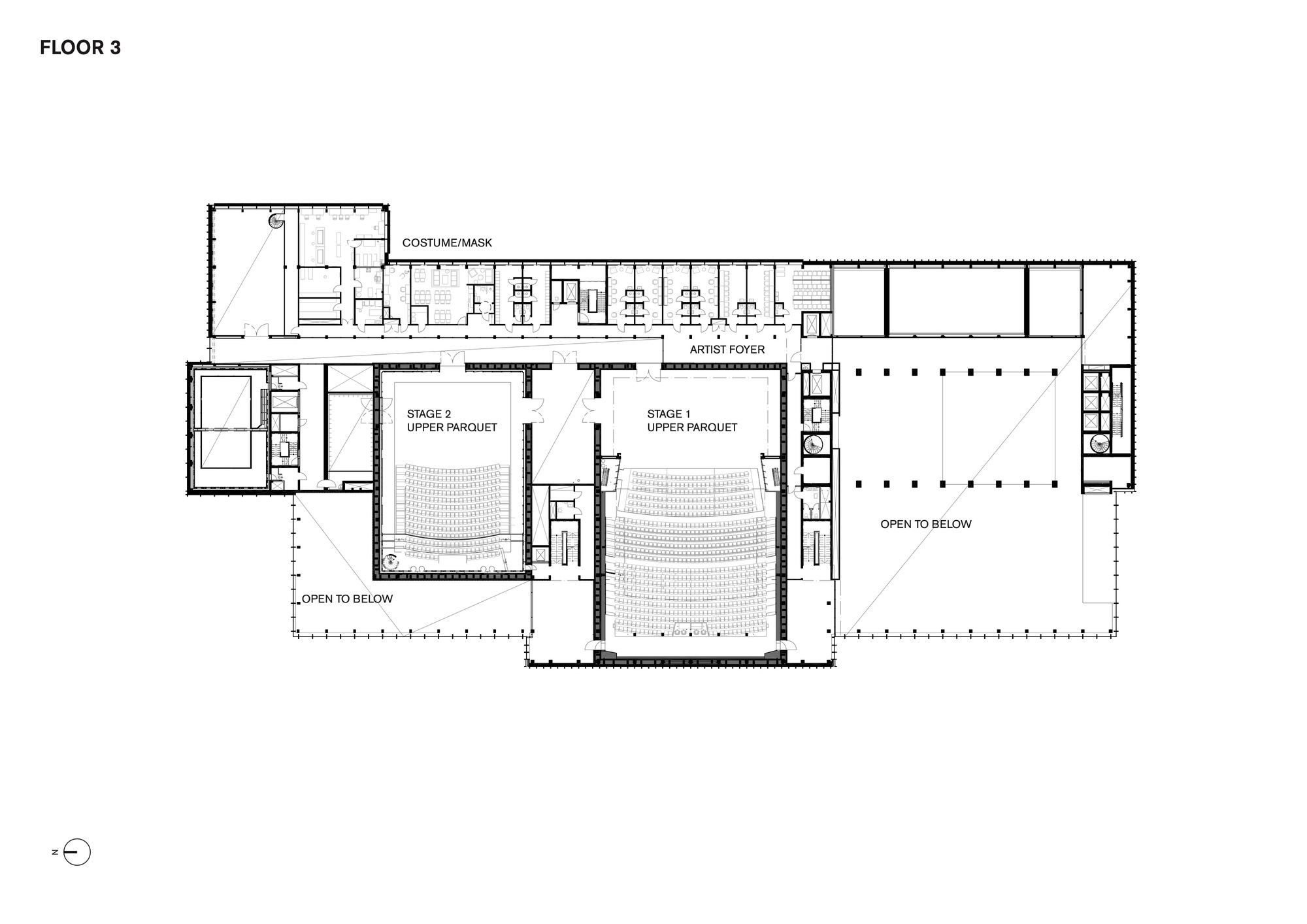
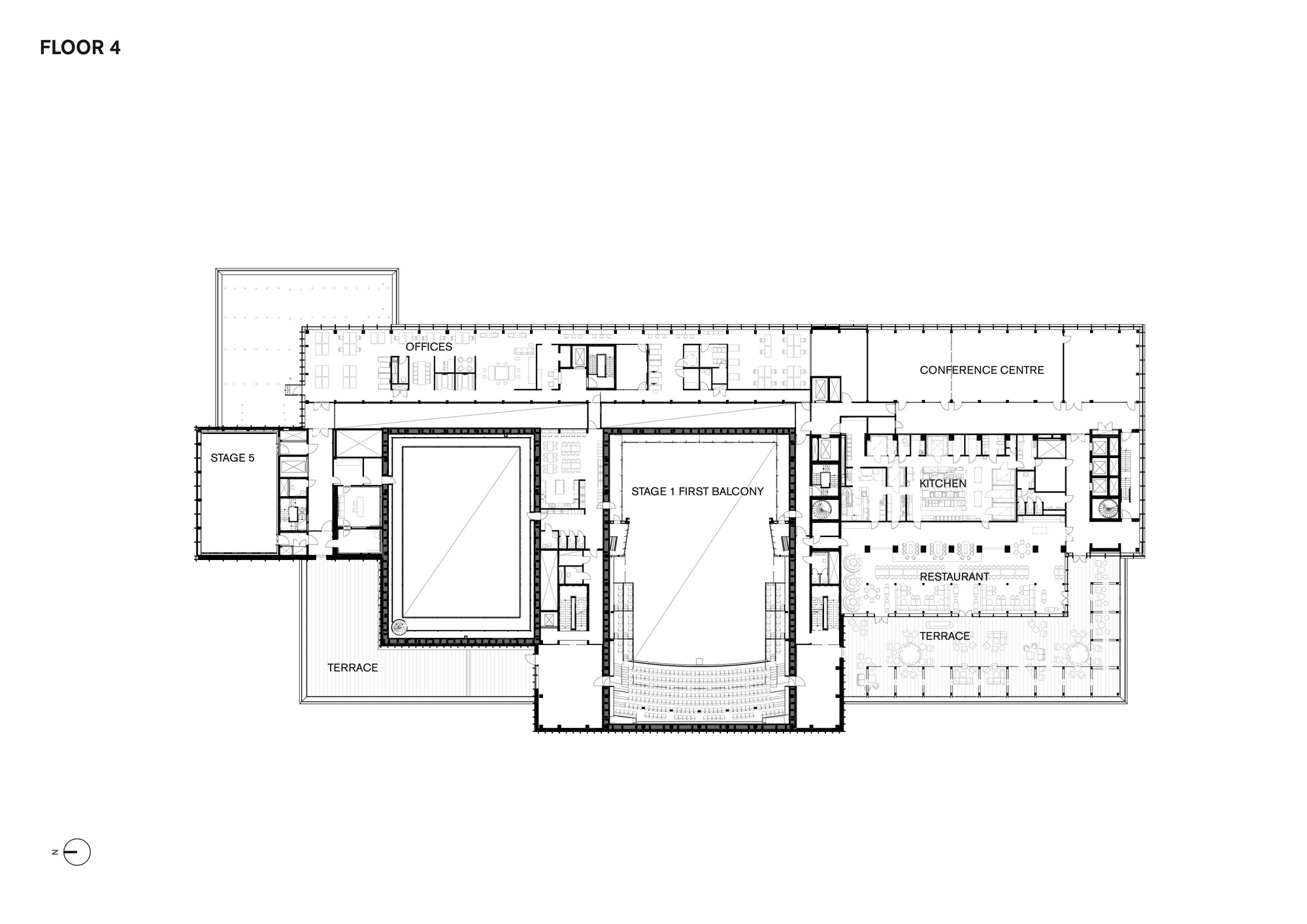
大楼高近80米,拥有6个剧院舞台、城市图书馆、2个画廊、拥有205个房间的酒店、会议中心、餐馆、屋顶露台酒吧和温泉房。累计20层的大楼酒店则给人提供了俯瞰谢萊夫特奧 (Skellefteå)的绝佳视野。





无论当地市民以前对文化的兴趣如何,确保Sara Kulturhus中心是所有市民的“舞台”,一直是市政府关注的核心问题,也是设计的出发点。大楼所在的地理位置以及设有多个出入口的透明立面最大程度地降低了大楼的门槛,赋予简朴的文化机构以开放热情的建筑形象。Sara Kulturhus中心意在为当地社区赋能并成为一个新地标,吸引当地、全国乃至全世界的游客前来参访。项目的一大亮点在于所有文化间共通的可持续设计和建造思维。








可持续建造的创新性解决方案。White Arkitekter事务所意在通过Sara Kulturhus中心的建造,拓展木材作为高层结构建造材料的应用可能,并推动可持续建造领域的发展。项目的多样性使得建筑师探索出一系列实木建筑的创新解决方案,以应对跨度、灵活性、声学和整体静力学等方面的挑战。例如,酒店部分就是由预制的实心交叉层压木材 (CLT) 体块结合两个堆叠的CLT升降芯所实现的;低层部分则是胶合木梁柱和交叉层压木材的剪力墙。一体化的建筑设计手法在保证承重结构稳固性的同时,完全不需额外的混凝土材料,既加快了施工进度,又大大减少了项目的碳足迹排放。



项目图纸

△一层平面图

△二层平面图

△三层平面图

△四层平面图

△九层平面图

△二十层平面图

△东立面图

△南立面图

△西立面图

△剖面图
项目信息
建筑设计:White Arkitekter
项目年份:2021
摄影师:Åke E:son Lindman, Patrick Degerman, Jonas Westling
地点:瑞典,Skellefteå

BIM建筑网





评论前必须登录!
注册