
海门位于江苏省南通市,东濒黄海、南倚长江,与上海隔江相望。其得名自“江海门户”,是吴越文化的腹地和中国稻作文化的原乡,海门云谷农展馆便坐落于此。和近年来大量涌入乡村的投资方、建筑师相同,项目的设计团队亦面临着回归本土或开拓创新的历史性课题。

方仓圆廪的互文性
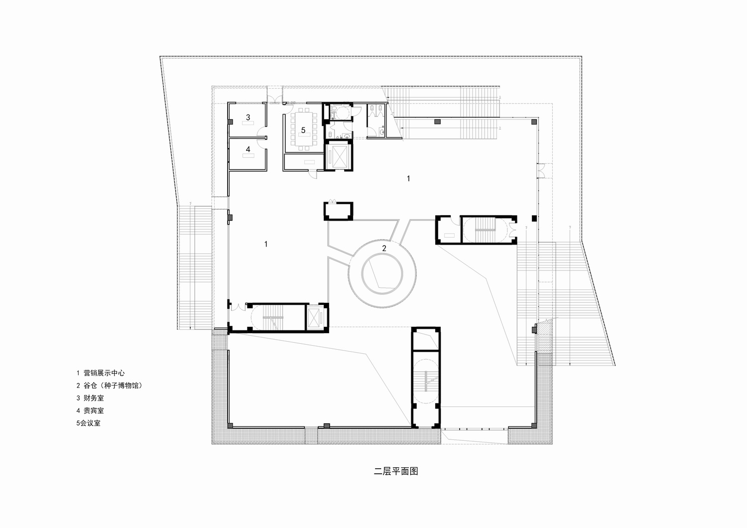
农展馆位于中国首个生态农庄——海门春风蓝田小镇的最南端,周围阡陌交错、水网密布,景观资源得天独厚。农展馆亦是这个小镇的领袖建筑和精神中心。建筑母题取自农耕文明的“仓廪”意象,其外观有如一个静卧田间的方盒子,简洁大气;内部核心为圆形筒仓,有“方仓圆廪”之意,既暗含了“仓廪实而知礼节,衣食足而知荣辱”的法家治国理念,也与新时代精神文明建设相契合。

方案在结构上打破了常规的“层”的概念:围绕中庭盘旋上升的四个混凝土方盒子使主要受力构件隐藏于旋转空间内部;屋顶折板形成了顶层大面积开窗,实现了建筑形体和空间的纯粹。传统的地域文脉与现代的生活方式在这里邂逅。

种子之旅的联动性
项目团队试图将自然的广袤囊括于建筑的内核。因此,方案最大限度地扩大了这座“田野谷仓”的“足迹”,并在中心位置挖凿出四层通高的圆形吹拔空间。圆形筒仓被引入了自然的采光与通风,它作为种子博物馆,为公众提供了一处展示、交流、分享的场所,自然而然成为整个建筑的精神核心。在白色方盒子里,筒仓的卯榫结构以老木头的色彩和触感消解了空间的“神性”,令谷仓变得温暖可亲。

旋转的开敞楼梯串联起建筑垂直方向的各个功能。参观者拾阶而上,犹如踏上一段精心编排的“种子之旅”,观赏、探索的内在欲望不断被激发。同时,室内外两组楼梯形成平行共进的观赏动线,在楼梯平台极目远眺,田园风光、周边建筑及农展馆的内部活动尽收眼底。参观者可从展馆西侧出口,经由人工水系上架的景观桥直接进入小镇示范区和农业展览区;亦可通过二层平台到达展馆北侧的规划商业街——这是“双首层”商业街模式在小镇的一次实践。

虚实空间的秩序性
建筑形体简洁,表皮轻盈,底部是纯净玻璃体,外表皮则选取具有极高强度和耐久性的UHPC材料。这种低孔隙率的材料质地温润如玉,更能凸显建筑本身的形体和线条,远看棱角分明,近看柔和朦胧,隐约的通透感模糊了建筑与环境的边界。其与底部玻璃幕墙形成上实下虚的视觉反差,生动诠释了围合与联接、封闭与通透的关系。

建筑立面撷取了传统席穴囤谷仓的编织图底;屋顶则提取谷仓的斜顶,根据柱网阵列之后得到了风吹麦浪的形式;呈现于表皮构图中的窗洞经设计团队反复推敲得来,均对应室内重要空间并朝向室外最佳景观方向。镂空表皮与窗口将光影引入,为内部空间增添灵气,营造出丰富的感官体验,无形间也扩大了建筑的物理空间。看似封闭内向的建筑通过室内外的交流互动,使人们有机会参与到环境的有机生长。


结语
在传统文化全面复兴的今天,设计团队秉持辩证和批判的态度,既没有走向怀旧复古的狭义地域主义,也没有在全球化的大趋势下盲从国际主义,而是在田园阡陌间构建诗意栖居,于吴越遗蕴中重拾智慧基因,以贮存文化、安放情感、凝聚价值观的精神场所,完成批判性的地域主义实践。




项目图纸

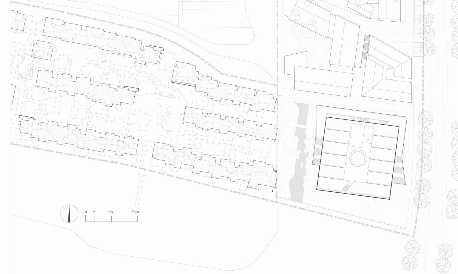
△总平面图







△节点分析

△空间轴测分析

△形体分析

△流线分析

△表皮分析
项目信息
项目名称:海门云谷农展馆
项目地点:江苏,南通
详细地址:江苏省南通市海门区海创路
项目类型:文化展示
设计时间:2019年-2020年
建成时间:2021年4月
项目规模:4087㎡
设计单位:gad杰地设计
项目总监:张微
项目主创:张微、唐凤起、徐杰
建筑:唐凤起、徐杰、倪泽慧、刘洋宇、姜正杰、刘仕龙、初建州、柳源、时吉涛、赵炎涛
结构:杨帆、黄永春
给排水:蒋云龙
暖通:刘成
电气:穆卫浩
bim:迟晨
室内设计:内建筑设计事务所
业主:南通蓝成市民地产开发有限公司
摄影:建筑译者·姚力
建筑材料:UHPC

BIM建筑网





评论前必须登录!
注册