
鞑靼斯坦共和国国家图书馆位于1987年建造的列宁中央博物馆喀山(Kazan)分馆中。这座建筑物由亚美尼亚凝灰岩覆盖,形象类似于挥舞着苏联国旗,是喀山的中心建筑之一,也是苏联文化后期建筑的重要范例。在苏联解体之后,“喀山”国家文化中心就设在这里,直到最近这里还设有喀山市博物馆。这个项目最显著的成就是在尊重原始设计的材料和空间特征的同时,将一个阴沉和过时的结构改造成一个明亮鲜活的公共空间。


鞑靼历史建筑在空间组织、材料以及颜色的运用上,都显示出与苏联后期的“纪念性”非常接近的方法。根据鞑靼历史建筑的精髓和对苏联遗产的关注,以最简单但最庄重的方式使用材料。


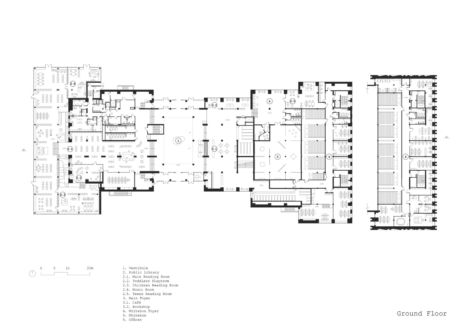
中央双高前厅连接建筑的核心功能区、卡赞卡河堤以及城市广场。因此,前厅不仅连接建筑物的不同部分,同时也连接着建筑物周围城市结构的各个部分。前厅的垂直表面由绿色的蛇纹石、白色大理石、砂岩以及白色石膏覆盖。地板由颜色相近的岩石组成的角砾岩制成,而天花板则是用视觉上无缝的颗粒状隔音板完成。


在前厅的西侧,一楼是公共图书馆的多功能区域,其中包括幼儿、儿童和青少年阅读空间、电脑室以及音乐室。这个区域是国家图书馆最引人注目的部分,因为它对所有用户群体都尽可能的开放和包容。他的内部以一种渐进、禁欲和民主的方式解决,使用混凝土、金属和玻璃的自然纹理,还有柔和色彩的软家具以及重点照明。


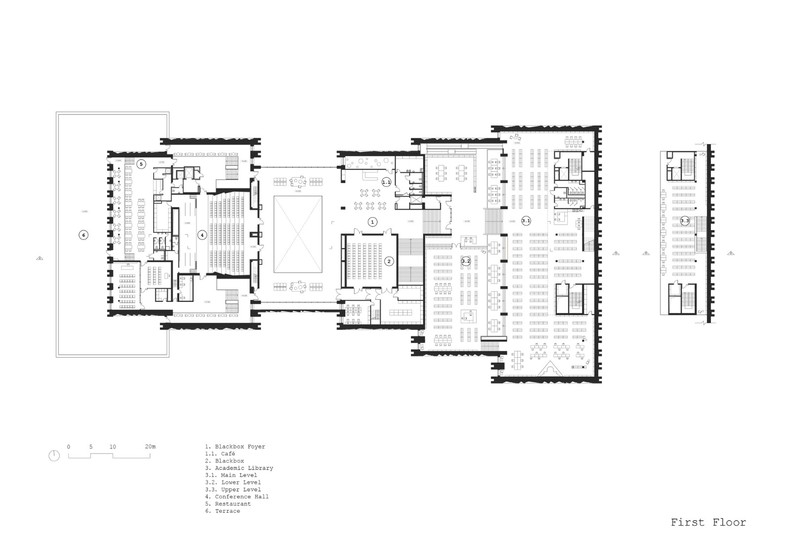
在前厅的东侧,二楼是学术图书馆的阅读区域。学术图书馆空间的建筑向后现代苏联建筑致敬。空间上,基于对原有博物馆楼层布局的尊重,图书馆空间继承了三层连续的阶梯式结构。这些阶梯结构有效容纳了个人和团体学习的空间、目录区、线性展览空间以及一个引人注目的雕塑——“反战示范”——一个原创设计的手工艺品。


国家图书馆这个区域的天花板由管状天窗和人工照明的装饰图案组成。地板是温暖的米色粘结剂制成的环氧水磨石,填充了棕色和灰色的大理石石料。墙面粉刷成白色,家具和墙板使用天然橡木制成的。除了主要图书馆空间,国家图书馆大楼还容纳了一个会议厅、白盒子展示厅、黑盒子大厅、一个录音室、演讲厅、工作人员办公室和几个图书保管室。












项目图纸

△一层平面图

△二层平面图

△剖面图

△结构分析图
项目信息
建筑设计:XOPA
面积:15102 m²
项目年份:2020
摄影师:Ivan Erofeev
厂家:Interface, Diodis, Gerflor, Grossbond, Linolit, MDM-LIGHT, OWA, Saint Gobain Ecophon BV Ettenleur, Solargy, Stolyarniy Arsenal
主创建筑师:M. Mikadze, O. Shukurov, A. Perevalova
设计团队:E. Lartseva, A. Ivashkevich
客户:Government of the Republic of Tatarstan
顾问:Project curator – Natalia Fishman-Bekmambetova (Advisor to the President of the Republic of Tatarstan) Project brief – Nekrasov Central Library, Moscow; Dynamic light installation – R. Khasanov, I. Fainberg, L. Zabruskova, Y. Turanova
合作:TATINVESTGRAZHDANPROJECT, A. Khusnutdinov, M. Bykov, N. Sidorov, R. Sirazev, R. Matshin, B. Zainutdinov;
地点:俄罗斯,Kazan

BIM建筑网





评论前必须登录!
注册