
新的“Stadtgärtenam Henninger Turm”住宅区的建设已经接近尾声,如今只缺少一座幼儿园。项目坐落于此区域的中心,紧邻东西向的、连接赫宁格历史建筑群和新建高层住宅的主干道。与位于附近大楼底层的购物区相互配套,幼儿园为当地社区提供了重要的服务功能,向近1000个公寓住户们提供便利。

毗邻赫宁格公园和萨克森豪森区,项目规划的思路是在都市区建立一个立体的多层结构,以此来提供对应不同功能的不同空间——不论是学习还是玩耍,室内还是户外。


与此同时,屋顶可以作为一个露天的小操场使用。项目设计在最大化屋顶面积的同时,提供了两个高度隔热保温的独立楼层,以适应不同活动内容。除了传统的教室、工作室之外,空间设计采用高度开放的自由形态,平面布置和楼层高度都可以自行设置,以便孩子的交流与玩耍。这样一来,每一寸的空间都是孩子的乐园!


在室内,一个中央通道加上多个有遮盖的走廊鼓励孩子四处走动。这些走廊及与之相连的楼梯,均由清水混凝土作主要材质,形成了一种从室外到室内的自然过渡。这些空间上的过渡坐北朝南,面向一个大型花园。同时,突出的拱廊可以防止阳光直射,从而避免了夏季室内过热。这也让从室内到室外的动线免受风雨的困扰。

这些通道所直接相连且充满阳光的是明亮的儿童活动室。职工办公室则位于建筑的北端。

项目设计本质上是一个简单的混凝土构造——错开的楼层、墙体、支撑、楼梯都采用原生态的混凝土材质,是建筑结构的最基础构造。取决于功能上的要求,隔音面板、墙面覆盖、瓷砖、订制家具都相应地添加进来。色彩和材料的选择也考虑到这些结构组件之间的对应关系,尤其是粗糙的混凝土墙面需要些许色彩的点缀。

多层的混凝土同时也是立面设计的亮点之一。在层与层之间加进了实心的高性能保温材料。北部面向一条长廊,建筑从外部看更加闭合——只有底层的游乐场地可以通过玻璃幕墙对外部可见。阳台和拱廊都添加了不锈钢材质安全防护网。

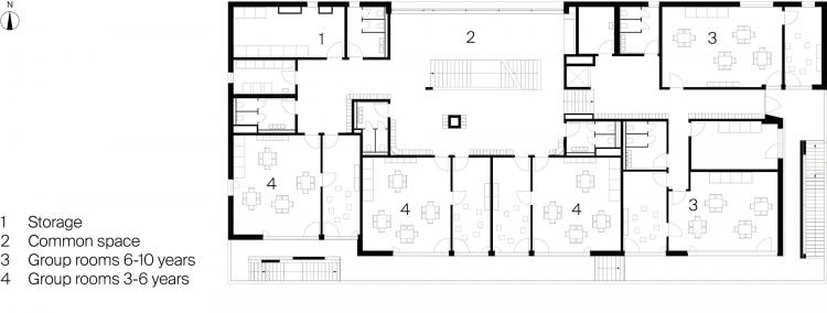
严格来讲,建筑包含了两个主要楼层以及一个屋顶区域。这样提供的空间可以给三组婴儿(0-3岁)、三组幼儿(3-6岁)和两组少儿(6-10岁)使用,总计可容纳142名儿童。换句话说,这个新建的幼儿园不仅可以满足当地社区的需求,还可以在更广的城市范围内提供服务。





项目图纸

△一层平面图

△二层平面图

△三层平面图

△剖面图1

△剖面图2

△功能分区图
项目信息
建筑设计:Meixner Schlüter Wendt
面积:2700 m²
项目年份:2021
摄影师:Christoph Kraneburg
厂家:Caparol, Carl Stahl, HERAKLITH, Meralux, Roma, VMZINC
合作伙伴:Claudia Meixner, Florian Schlüter
主创建筑师:Georg Kratzenstein
建筑师:Emanuel Giessen, Dorothée Wilhelmi
地点:德国,Frankfurt

BIM建筑网





评论前必须登录!
注册