
该项目是一个位于日本茨城县常陆大宫市的新建幼儿园,它周围有着茂密的稻田和森林,因此,美丽且丰富的大自然也培育了这里的孩子们的健康身体和丰富思维。无论是亲身体验还是从照片中欣赏,人们都可以看到建筑想要传达的理念:“一个看起来就很温馨的温室”。



建筑从周围的地形中升起,仿佛是田野之间升起的一条走廊。它就好像在稻田之间的人行道,借助着从天窗而入的自然光线,让人们即使在室内,也能感受到大自然的触动。此外,建筑的外部材料主要为金属,以此为整体项目构筑了强烈的保护儿童的形象,而室内则使用了自然材料以营造温暖的氛围。




餐厅四周则都为落地窗,并以此与泳池露台互相连接。因此,光线和微风被自然地引入室内,而孩子们也可以像在大自然中一样享用午餐。建筑内还设有可以随意攀爬的立体网,让孩子们在玩乐中增强体能和平衡感。他们还可以在自然间的操场上跑来跑去,在游戏中锻炼身体。




通过建筑空间的设计,这个立于稻田景观中心的建筑不仅与周围环境互相呼应,其本身也成为了当地社区的中心。它就犹如守护、温暖、培育幼苗的温室一般,悉心地守护着这里的孩子们,培养着他们的体能和丰富的心态。













项目图纸

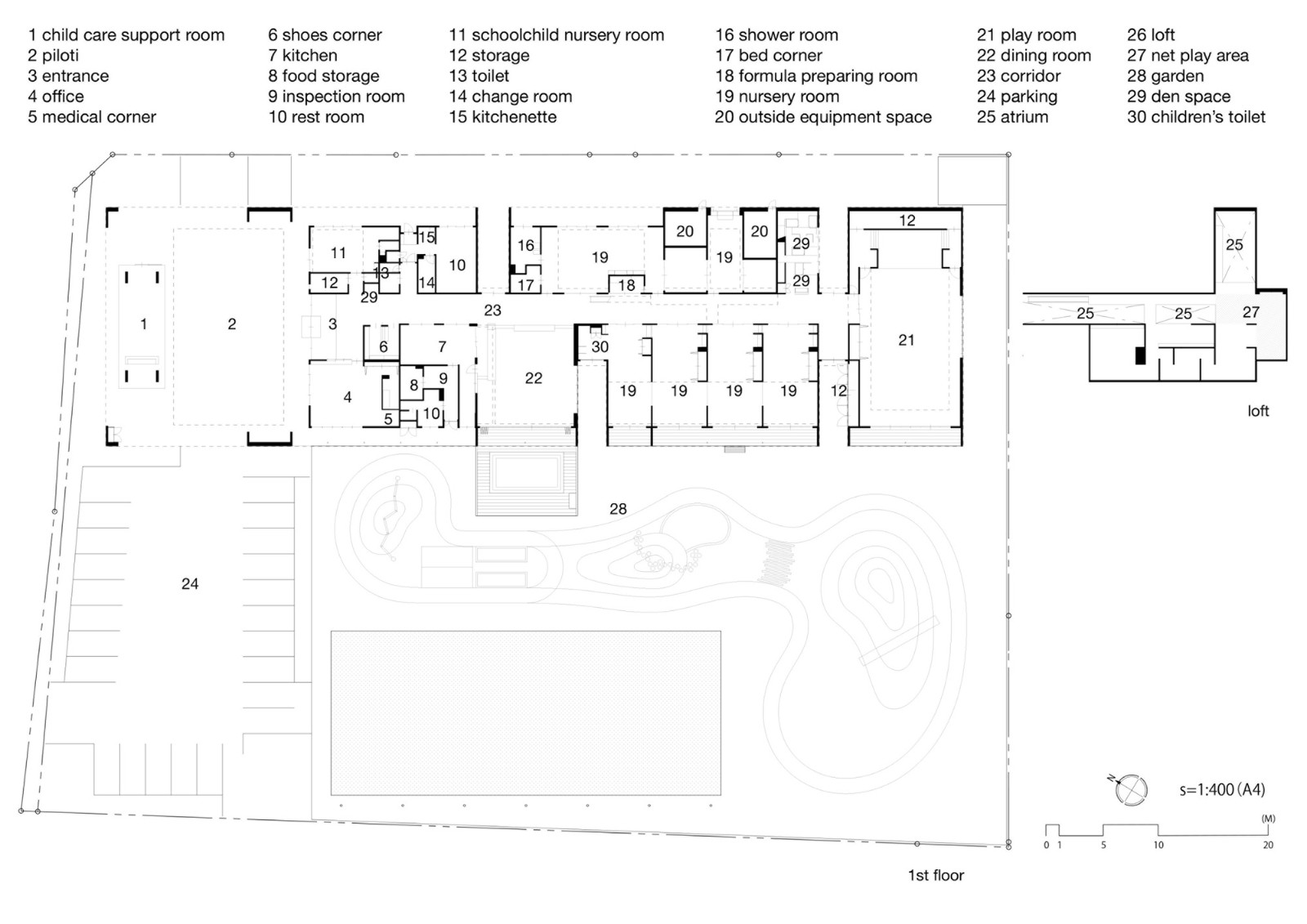
△平面图

△空间示意图

△立面图
项目信息
建筑设计:日比野设计, Kids Design Labo, 幼儿之城(Youji no Shiro)
面积:1199 m²
项目年份:2020
摄影师:Studio Bauhaus
建筑师:Youji no Shiro, KIDS DESIGN LABO, HIBINOSEKKEI
地点:日本,常陆大宫市
微信公众号:xuebim
关注建筑行业BIM发展、研究建筑新技术,汇集建筑前沿信息!
← 微信扫一扫,关注我们+

BIM建筑网





评论前必须登录!
注册