问题与想法
建筑的设计场地位于拥挤的城市空间之中,它有着较小的面积,并将作为商业建筑成为城市肌理中的一部分。因此,在设计之初,建筑师对项目产生了疑问:在这样的场地上,常见的单边或双边式的宿舍概念是否能最佳化土地效益呢?

对此,建筑师将常见的双边走廊与他们为场地量身设计的概念进行比较,并认为为场地设计独特的宿舍类型可以更有效地利用有限的空间。

建筑师先从一般宿舍中主作为单元之间的连接廊道开始着手。在这个项目中,楼梯成为了每个单元之间唯一的水平或垂直流线连接。同时,楼梯也是住户们日常的社交空间。

因此,这一设计和一般的宿舍设计相比,有着同等数量的单元,但是却更有效地利用了有限的场地面积。并且,项目中的流线设计不仅仅成为了一种独特的宿舍设计类型,也是建筑的一份“声明”。而为了让这一特点更加鲜明,建筑师以红色作为立面主色彩。这也是因为红色作为一种很强烈的颜色,有着630-760纳米的波长范围,以此可以瞬间吸引人们的目光。

体量与被动设计策略
多户住宅中功能区域的内容与位置也启发了建筑师对建筑形态的设计:他们试图将这座建筑打造成为一个不断累积、堆叠而成的房子。因此,建筑通过主流线打造了堆叠而成的体块,从而构筑了一个错层空间。此外,每一个如同碎片般的斜屋顶都遵循了位于其下方的宿舍单元柱网,而整体的堆叠感也因此变得更为强烈了。同时,这些屋顶下的空间也是夹层的一部分,可以在未来扩大单元房间的面积。


此外,“碎片化”的屋顶与堆叠而成的体块也是建筑对其所在的热带气候的回应:这样的设计可以让内部的空气更加流通。而另一种被动设计策略则是让每个体块之间都有一定的错位,因此每个体块就可以不粘附在周围的其他体块之上,并在它们之间形成了一个空隙,从而使得每个体块上的开口、体块间的空隙、中心绿色空间的开口和楼梯得以与场地背后的绿地相连接。并且,走道和楼梯由穿孔板打造,继而可以和每个体块的开口与体块间的空隙一同最大化每个单元内的新鲜空气和自然光线。而体块间的空隙也有着体积的变化,从而自然地形成了项目中的服务区域,其中包括停车场、公共空间、食品储藏室及洗衣间。

细节与材料
楼梯作为项目中通往每个单元的唯一通道,采用了钢与铁作为主要材料打造,其悬臂结构也有着雕塑般的设计。此外,该项目中的楼梯也展示了悬挂式楼梯的结构系统,为住户们带来了具有标志性的难忘住宿体验。另外,钢制穿孔楼梯踏板让自然光线可以从天窗照耀到更深处的空间中,而楼梯的影子也会随着时间的变化而不同,从而强调了建筑中裸露砖块与红色金属墙之间的不同质感,同时也让每个房间和整体的外形设计变得更为别致。

建筑高层空间的负载更小,因此大部分高层空间都使用了轻质结构,并让结构系统整体变得更为有效。此外,最高层的屋顶及墙壁材料主要为钢制框架,而一层的主要地面材料为混凝土,墙体则由暴露的砖块打造。这些裸露在外的材料可以最小化建筑所需的日后维护,并且它们不需要再次上漆。同时这些材料也让建筑可以随着时间变化而自然地产生颜色变化,以此让建筑的设计可以一直独树一帜地屹立在城市中央。

















项目图纸

△总平面图

△一层平面图

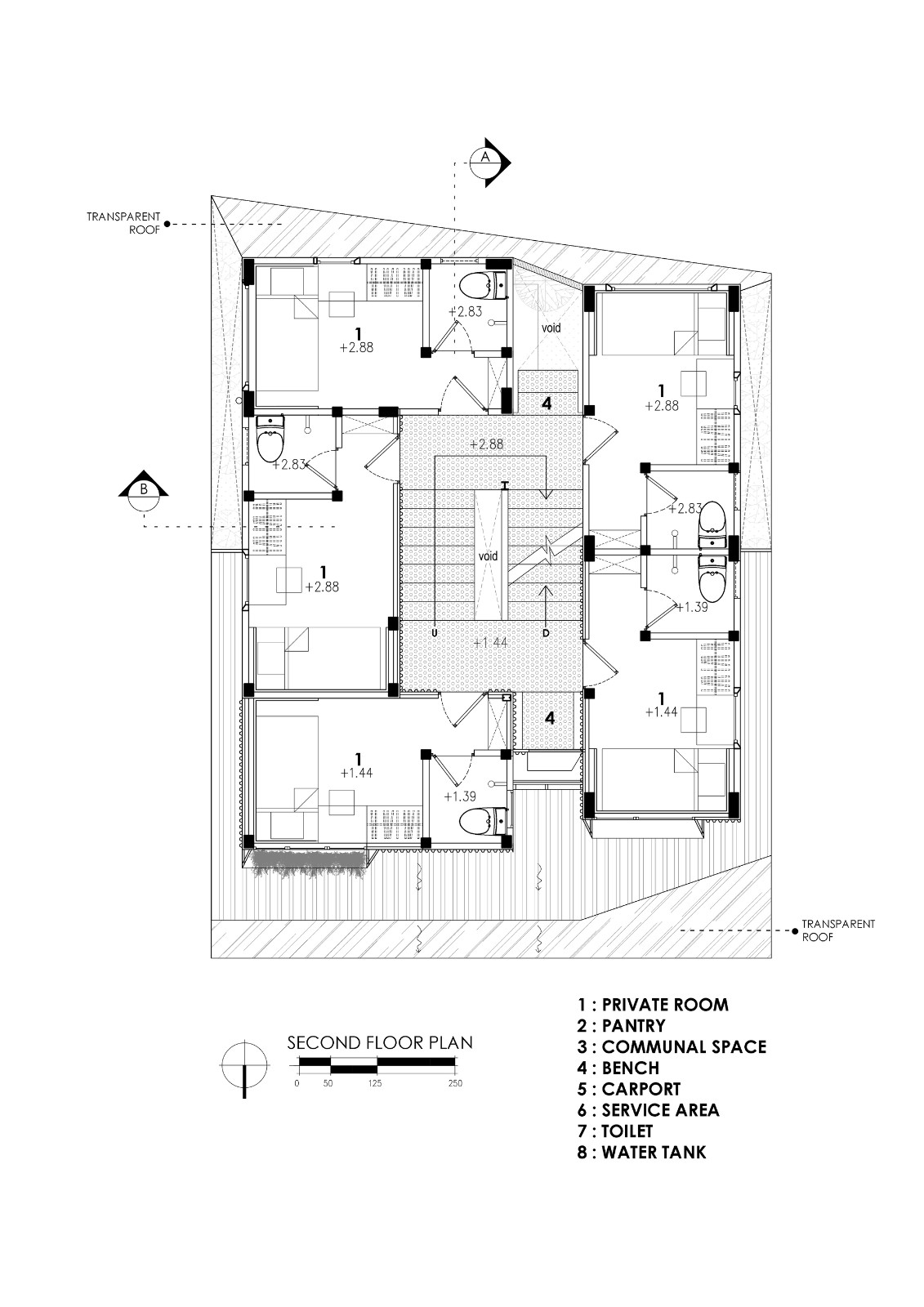
△二层平面图

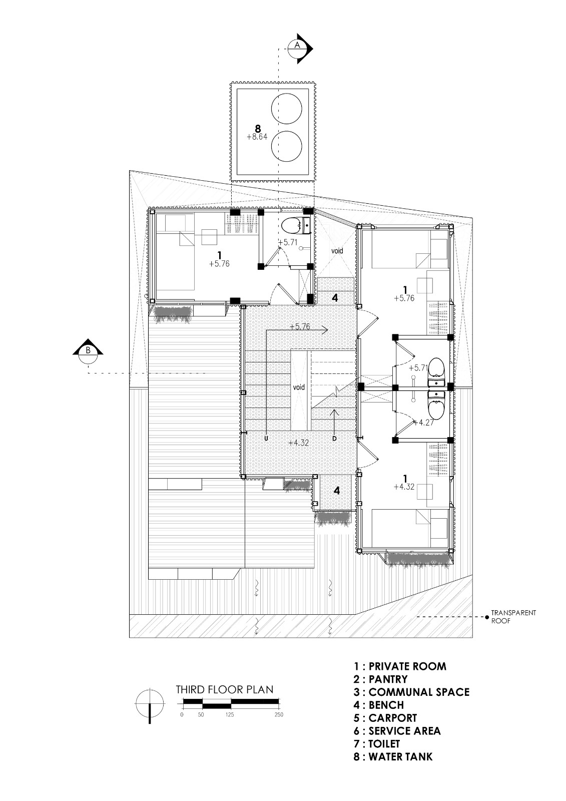
△三层平面图

△屋顶平面图

△立面图

△剖面图

△结构爆炸图

△分析图

△分析图

△分析图

△节点图
项目信息
建筑设计:Ismail Solehudin Architecture
面积:178 m²
项目年份:2021
摄影师:Mario Wibowo
厂家:Boss, Mortar Utama, Nippon Paint, Philips, Rucika
主创建筑师:Ismail Solehudin
助理设计师:Jamilah Uswah
项目管理者:Ali Yazid Bustomi
场地负责人:Zaini Tamrin
结构工程师:Setyadi Muztaba
建筑师:Wani Build
施工方:Ismail Solehudin Architecture
地点:印度尼西亚,茂物市

BIM建筑网





评论前必须登录!
注册