她跳起来,
去追那只兔子,
刚好来得及看到他钻进一个很大的兔子洞里面。
–《爱丽丝梦游仙境》

W-Mills by Wutopia Lab接到嘉里集团委托,在静安嘉里中心南区商城B2创造一座Underground Park——飨识里,一个以Social Eating为内核地多功能复合餐饮社交空间。


在找到Wutopia Lab之前,场地整体已经由西班牙设计公司LRV(Lázaro Rosa-Violán studio)完成设计,现场已经开始施工,并且下单了大部分材料。LRV的设计是一个传统意义上很好的设计,但整个空间的状态仍在已知空间类型的内卷化的进程里面,由于新冠疫情,他们无法到上海现场,他们也感受不到上海商场的竞争之激烈,已经远远不同于欧洲的现状,他们在同行业的竞争中去用一种很精致的姿态表现自己,但是无法为上海去创造一个创新的Social Eating Space。


为了避免商业的内卷,国内出现了许多场景式商业,如文和友,上海北外滩来福士。经过我们前期调研发现,飨识里一旦做成旅游景点式的布景式商业空间,他吸引的大量观光客会对Social Eating那种所需要的社交氛围,造成冲突和伤害。在这种前提下,Wutopia Lab应该怎么做?


01
另一种可能性
Underground Park


由于LRV的方案大量材料订单已下,作为设计师,不需要把他的设计做大规模的改变,通过研究,可以将他的设计成为我们新介入设计的背景,继而把中央看成一个社交的广场,也可以看成一个社交的花园,嵌入花园的这种做法既不浪费材料、又不耽误施工,并且使精美的原设计最终成为Underground Park的街景。


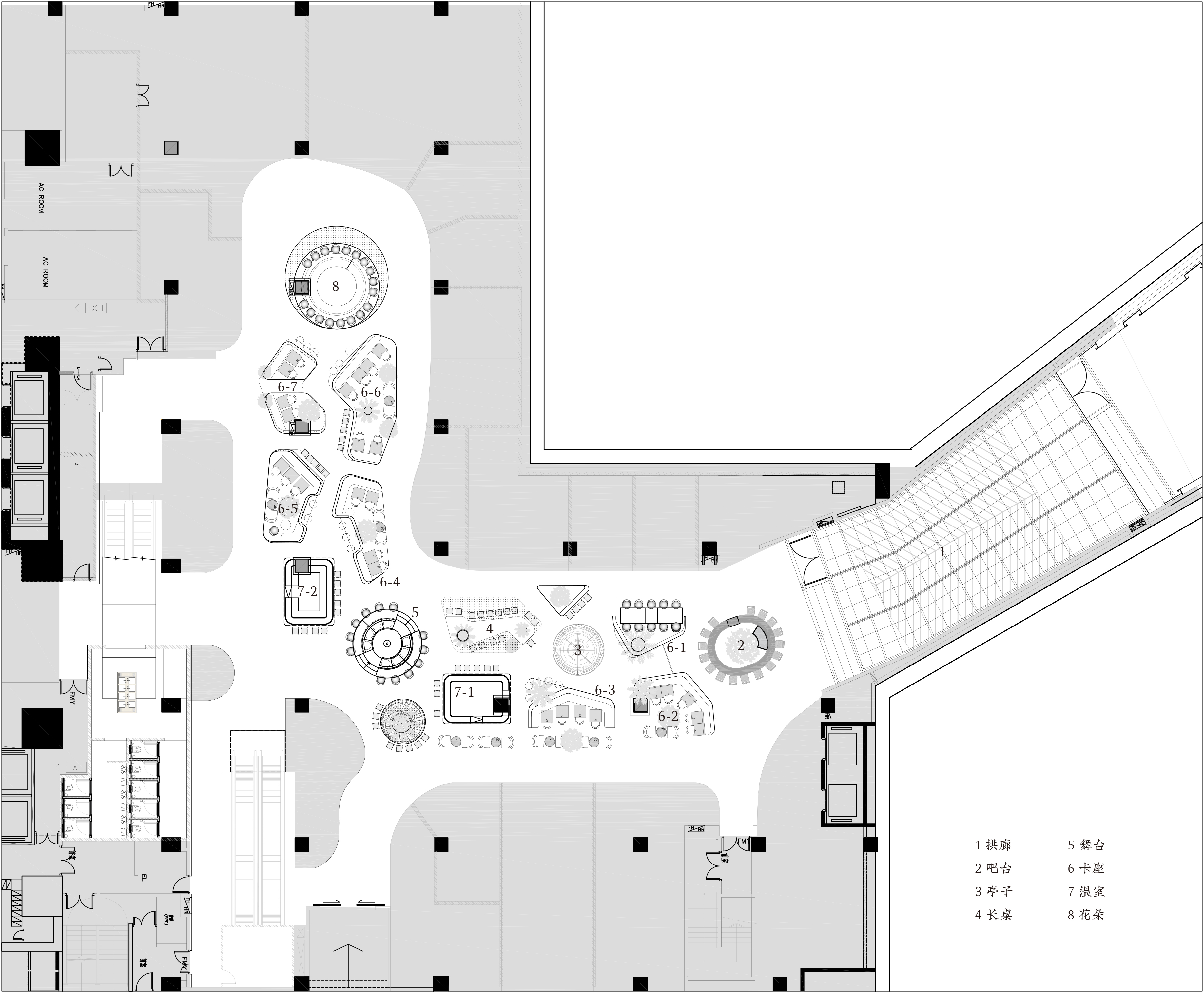
Underground Park不仅仅被设计成为就餐场所,Wutopia Lab创造了独一无二的Social Eating Space。以公园为主体概念展开设计,把花房、凉亭、露天吧台等公园元素巧妙地容纳进来,共享就餐区域,形成多条通往周围餐厅的小径,把整个空间的场景编制为一个通透且联动的整体。这里有连续的软垫卡座,也有亲切的木质长椅;有被鲜花和美酒簇拥的中央小舞台;有也大餐桌和蛋糕屋,终点一朵花瓣灯,光彩夺目。置身Park,享受美食、美酒、鲜花、音乐,交谈变得轻松且自在。



02
拱廊和摇曳的树影
第一个场景是拱廊,Wutopia Lab创造了连接两个世界的新世界。当我们利用LRV的背景去创造了Underground Park的时候,这个空间的气质就迥然于静安嘉里中心所有的区域,那么就需要在两种气质之间,做一个过渡。在踏入这个长约20m的通道时,突然想到了欧洲常见的拱廊导向集市的商业类型,所以我们将传统拱廊进行抽象,变成了通道、过滤器、或是一个转换门,让已经习惯了静安嘉里中心正常公区设计的人,通过一道拱廊作为心理预演,引导他们发现藏在其中壮观的Underground Park,借此达到心理上的高潮。



此处并非商业范围,仅作为公共通道,你可以说他没有任何功能,但是他又拥有了承载任何功能的气质,是整个飨识里故事的开端。拱廊平面整体呈扭曲的喇叭口状,为控制造价,选用穿孔铝板作为材料,构成拱廊的36条主要框架。顶棚为模拟日光的发光灯膜,根据不同时间调整发光强度和发光模式。


拱廊侧面被柱子分成6个磨砂玻璃橱窗,夹层腔体内置三种叶形的仿真植物和背景灯光,仿佛整个廊子之外,环绕着一片茂密丛林,也暗示了后续的绿意盎然的场景,伴着轻盈的音乐和香甜的花香,惹人驻足。



03
青绿山水
Wutopia Lab对商业空间的观念,有一种创新性的理解:目前室内设计界最大的浪费就是不断的拆旧的,造新的,然后再被拆掉,再造新的,们常常在想,如果我们能够创造出一种可拆卸的设计,从某种程度上可以减少这种浪费,是对环保作出积极的贡献。


我们在Underground Park致力于一种可拆卸,移走的设计。而且在未来,我们可以通过对局部空间的调整,隔断、卡座、桌椅和长凳,都被设计成为可移动的,使的空间对市场有更好的应对和变化能力,从另一方面这大大增加了飨识里整个场地的使用潜力。商业空间已经无法回到从建成就保持一成不变的时代了,在未来特定时段,这里可以承载快闪、下午茶、活动、发布、秀场等等不同尺度的丰富活动。这种可以拆卸移动的装置类的想法已经在静安嘉里中心实践过一个片段:红云下的青绿山水 (https://mp.weixin.qq.com/s/7EmzISxWmTdwupR52xBUCQ)

04
未建成的亭子和温室
由于留给Wutopia Lab的造价预算仅有100万,去塑造通道和公共就餐区两个空间,导致我们在公园中央很重要的亭子和温室无法建成。现在看来未建成的他们对整个空间似乎影响不大,但是,如果建成的话,他们会使得空间的次序和情绪有更加丰富的变化,然而因为我们把Underground Park看做一个可拆卸的灵活场景,自然目前没有这两个构筑物也成立,未来如果有幸把他们加上也成立,亭子是一处高空视觉焦点,温室则会成为最特别的铺位设计,我们坚信商业空间应是可更新的,可生长的。


05
下一个世界等你
这次的静安嘉里中心飨识里的设计面临了很多困难,但是最终都一一克服,达到了宣传效果,和运营要求。在试运营时,我们通过现场观察各个商家发现,部分商家没有理解我们想法:让公共区域活跃起来,变成大家可以交叉使用的。不过在我们创造的这个小世界里,有一家印尼餐厅的行为反馈非常符合我们的预期。



Wutopia Lab希望在未来,其他没有察觉的商家,也会像印尼餐厅PAWSON saji一样,按照公区而改变餐厅装修的配色、设计相似风格的菜单、积极的招呼客人在公共区域入座,从细节处与这个世界交织在一起,主动且积极的加入到故事中来,最大的利用公共资源为自己创造价值的同时,为整个区域增添活力。商家的反馈达到设计预期这件事真的很令人开心,但是那些没有达到的也是真的很可惜,Wutopia Lab会在下一个创造世界里积极地去实现。也欢迎你,到这个藏在静安嘉里中心的Underground Park中,品味一段自由时光 。



彩蛋
美食家俞挺和他的夫人的推荐餐厅:
Pici
昇鳗鱼家
怡己·三ツ矢堂
PAWSON saji
人间酒暖
俞挺和他的领导闵董,特别喜欢在这个花园里随意坐下来,喝着印尼餐厅的牛尾汤,吃着昇鳗鱼家的鳗鱼饭,或者点一份怡己·三ツ矢堂的拉面,给女儿要一份海盐焦糖冰淇淋,在人间酒暖那里要两杯清酒慢慢地喝,所有的餐厅在这个时间点上都是他们的。饭后在离开前和Pici的总经理打个招呼,多么nice的一天。
项目图纸

△空间生成

△平面图

△轴测图
项目信息
项目名称:飨识里–静安嘉里中心
设计公司:W-Mills by Wutopia Lab
原设计公司:Lázaro Rosa-Violán studio
主持建筑师:俞挺
责任建筑师:李灏
项目经理:孙丽然
设计团队:李子恒,徐楠,况舟,潘大力,熊佳幸(实习)
照明顾问:Relux & Relux
建筑摄影:武石榴
施工图咨询:上海呈煜空间设计有限公司
施工单位:北京时达利建筑装饰工程有限公司
业主单位:嘉里建设Kerry Properties
项目地址:上海市静安区南京西路1515号嘉里中心南区B2
建筑面积:460㎡
设计完成:2020.12
施工完成:2021.6

BIM建筑网





评论前必须登录!
注册