
△ 室内空间 @形在空间摄影 贺川
于喧哗之下,可安心自处。这是我们对于这样首个自我空间的定义。生活与成长,创造与实现都将寄于其中。

△室内空间 @形在空间摄影 贺川
当首次面对这一无拘束的空间之时,我们尽可能的去实现空间里关于自我精神的表述。
所以当规划平面之初,我们摈弃了除功能之外的一切技法。于是简洁,温暖,明亮,包容成为了表述空间的主要词汇。

△室内空间 @形在空间摄影 贺川
我们希望这是一个专属于使用者的空间。温暖,轻松,有序是我们想要实现的目的。我们抛弃了作为表象而存在的工作空间,更希望空间作为一个通透有序的生活场所而呈现。于是我们提取私宅的手法来完成关于平面的规划。卧室,书房,餐厅,客厅分别对应工作区,会议室,洽谈区,会客区。

△室内空间 @形在空间摄影 贺川
我们用木材,艺术涂料来构建整个空间,实现整个空间氛围的表达。希望空间的使用者最大限度的沉浸于此。

△室内空间 @形在空间摄影 贺川
形体间的对位构成,视觉的连续性,是关于空间秩序与形体表述的主要方式。

△室内空间 @形在空间摄影 贺川

△室内空间 @形在空间摄影 贺川
金属装置的形式和立面相同材质的不同大小的重复切分,使用了最基本的点线面的表述,构成了空间最基本的节奏关系。

△室内空间 @形在空间摄影 贺川
拱顶与弧形背景的呼应,高低形体之间的相互组合,打破空间的单一节奏秩序,形成空间之间的交互与对话。

△室内空间 @形在空间摄影 贺川

△室内空间 @形在空间摄影 贺川

△室内空间 @形在空间摄影 贺川

△室内空间 @形在空间摄影 贺川

△室内空间 @形在空间摄影 贺川

△室内空间 @形在空间摄影 贺川

△室内空间 @形在空间摄影 贺川

△室内空间 @形在空间摄影 贺川

△室内空间 @形在空间摄影 贺川

△室内空间 @形在空间摄影 贺川

△室内空间 @形在空间摄影 贺川

△室内空间 @形在空间摄影 贺川

△室内空间 @形在空间摄影 贺川

△室内空间 @形在空间摄影 贺川

△室内空间 @形在空间摄影 贺川

△室内空间 @形在空间摄影 贺川

△室内空间 @形在空间摄影 贺川
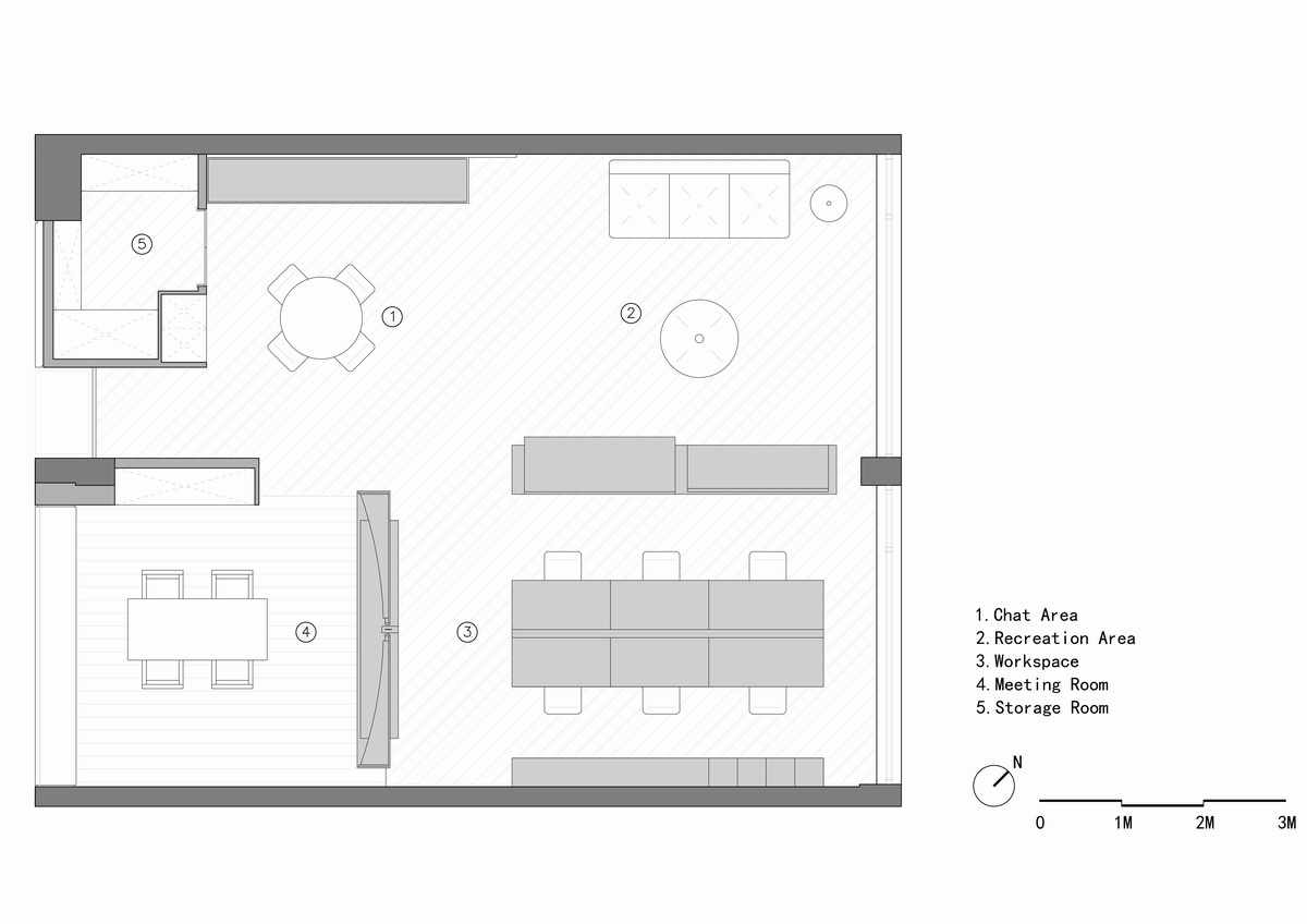
项目图纸

△平面图

△剖面图1

△剖面图2

△剖面图3

△爆炸图
项目信息
项目名称:喜叻空间研究办公室
设计方:杭州喜叻空间研究
主设计:高成/张润
团队成员:高成/张润/厉云翔/王凯迪
设计&完成:2020/12-2021.03
项目地点:中国杭州
项目面积:100平方
空间摄影:形在空间摄影/贺川
主要材料:力驰暖通/术木地板/燊科瓷砖/ KELLYMOORE涂料/享趣智能/桦木板

BIM建筑网





评论前必须登录!
注册