
△入口
婆娑里
“中国园林是为了想象……他的环境是一种虚构,他的生活是一种哲学,他的宇宙是一个梦想。只有与世隔绝的人,才能体验到完满的快乐……可以说,中国园林,就是一场梦。”
——童雋·《论园》

在郑州东区的闹市之中,这是一处写字楼的裙房。平面有8米宽,31米长,长宽比接近4:1。出于建筑从业者的职业习惯,一个问题不由蹦出,过长的进深造成中部空间采光不足。
但这次我们要做个茶室,内含餐台和各式茶座若干,如此以来,狭长的平面反倒是带来了灵感,为何不利用这种阴翳之美?

△轴测剖面示意图
阴翳的中庭:静谧与力量
《阴翳礼赞》中有着对东方暗空间的精彩描述,相对于透亮明净的西式空间,模糊、暧昧、非直射光线的、阴影中的空间让人沉醉,自闹市而来,瞬间步入一个让人安静下来的空间,这正是此间茶室希冀的愿景。
我们发现,真正的安静并非死寂无声,“蝉噪林逾静,鸟鸣山更幽”;“暖日当暄,又添蛩语”,适度的自然动感让人更好地体会宁静,这样的诗语也转化于东瀛茶室的空间构成之中,它不开窗看景,以保持道场的会神,但在封闭的小盒子里,光线却故意从高窗缝隙中溜入,在侘寂的墙壁上洒下光斑树影,隐约的鸟语虫鸣更强化了“致广大”的玄奥之感。
于是我们决定在侧墙上开一扇宽大的长条高窗,并“附庸风雅”地将其类比于长谷川等伯的《松竹图》,竹在窗后随风摆动,让人晤见高墙后的“自然”。尽管说出来有些扫兴,实际上这是一处“虚构捏造”的风景,以遮盖新风和油烟风管,摆动的竹子也全凭蓝牙按键调风。

△不经意地抬头,于是晤见“自然”

△长谷川等伯 松林图 安土桃山时代
作为“画框”的则是黝黑的斜面洞口,光线顺势而下,投射在庭院的地面上,如果说摇曳婆娑的竹如同冷艳的笛声,那么粗粝的地面石块则像是狂放的太鼓,柔美与力量碰撞,在脚下泛起光泽,微光似乎缺乏变化,但却简洁有力,像是生命底层的原始呐喊,把人带入祭祀、庆典、战争的仪式场景之中……

△头顶竹影绰约,脚下光泽弥散

△平滑与粗粝的对比,几何秩序构成宁静,其中蕴含着力量

△宁静中蕴含着巨大的张力,稍纵即逝感带来一丝伤怀

△阴翳中庭伴随着熹微亮光

△步道上若有人影,也即成为风景

△倚门相望,让自然成为一种遐想
通幽的步道:过渡与对比
狭长的房屋进深又让人联想到里弄,这种空间类型并非只存在于烟雨江南,尽管在城市化进程中几不可见,但中原的古城古村深处也曾有着这样自然生动的肌理(比如沁阳北大寺聚居区和归德古城内被拆除的滨河聚居区)。
我们既然在房屋中部引入了下沉的阴翳庭院,和高窗的一道渲染“自然”,形成充满仪式感的精神空间。那么“豁然开朗”前的过渡则至关重要,既不能过于直白的开门见山,也不要闷不做声的沉默寡言。
为了充分利用光线,东西两侧的房间,与中庭形成对比。如此以来,使浓淡干湿取得平衡的应是黑白之间的“灰”,于是我们塑造了两条通幽的步道,随之步入,光线越发幽暗,眼睛和脚步带着好奇,慢慢寻觅。序曲之后终迎高潮,抬头忽见婆娑竹影,身处“深山秘境”,脚下 “流水潺潺”,何不落座、品茶、就餐?

△简白而塑性的西侧前厅

△充满构成感的东餐厅入口

△踏着石阶,从明亮到幽暗

△东侧步道成为联系黑白的灰空间

△悠长的步道带着点儿相遇的期许

△落日余光拖着长长的尾巴
在这一过程中,室内的光线从明亮过渡到熹微,进而步入幽暗的精神世界,阴翳中的光线通过磨砂玻璃弥散,头顶的灰泥屋顶更强化了宁静之感,茶盏、烛光和漆器似乎注定与此空间为伴……
起承转合的空间韵律通过黑白色彩得以强化;摇曳婆娑的竹影通过浓淡光线得以生发。既然竹影婆娑,里弄通幽,我们干脆就称其为“婆娑里”吧……

△从夹层俯瞰东侧步道

△夹层餐厅

△夹层的阶梯茶室,温暖的光线营 造出一方小天地
偷光的风景:流动与静止
我们希望为这间茶室融入自然印记,给人带来情感触动和记忆联想。阳光斑迹让人想到流动的时光,而过滤后的模糊光线则寓意静止,它们赋予了景物不同的感受。

△黄昏降临,婆娑里字样化为光斑,拖着长长的影子变化身姿,斑驳着她的斑驳

△时光踱步,让空间去捕捉光线的轨迹

△茶座的光线被压低,幽暗中是否还能看清自己的面庞?

△茶室中,模拟阳光的洞口

△射的光粒子被打散,清冽,如同夏日的一场雨

△被层层包围的光影

△墙壁微光渲染出的侘寂
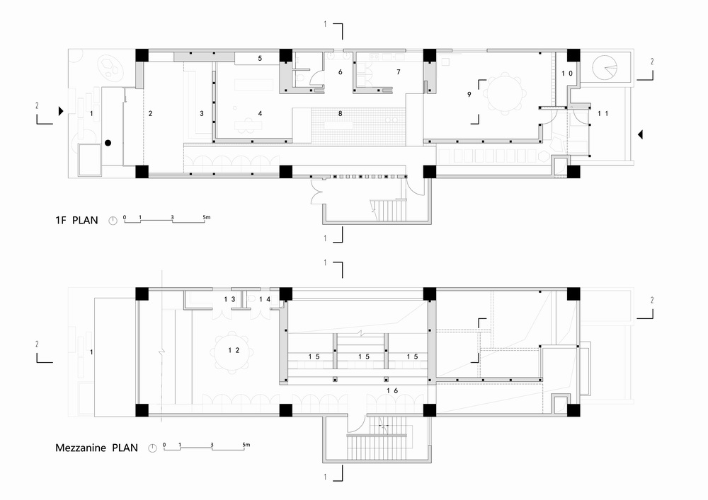
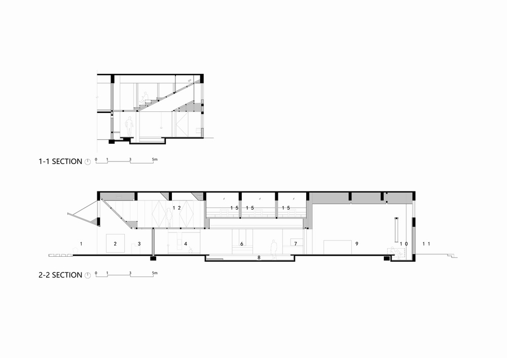
技术图纸

△平面图

△剖面图
一层的大斜坡转化为二层的平台,这种处理方式在互舍(链接),峦舍(链接)中都曾经用到,尽管从空间氛围上这三个“居所”相差甚多。



△工作模型
项目信息
项目名称:婆娑里茶室
地理位置:中国郑州
竣工时间:2021年5月
面积:300平米
设计:王冲
钢结构设计:贺尚青,王冲
技术咨询:张东光
策划:魏子帧
施工:河南姝羽轩装饰工程有限公司
摄影:朱雨蒙coppakstudio.com
官方网站:www.wonder-architects.com
联系方式:office@wonder-architects.com/coopix1@gmail.com

BIM建筑网





评论前必须登录!
注册