项目简介龙湖公共艺术中心作为龙湖公共配套服务的重要组成,初期它将用于郑东新区城市规划展示,远期作为公共艺术中心,不仅将向大众展示优秀艺术作品和提供高品质公共活动内容,还将与周边的公共空间一起为城市提供一处富有生机与情趣的水岸生活场所,供市民登高欣赏新区的建设成果,增强他们的亲水休闲体验。

△龙湖上空鸟瞰
思考
初踏地段时,沿湖公园给我们留下了深刻印象。周边没有高耸的建筑物,即使是远处隔水相望的金融岛建筑群,其体量也算不上庞大。市民能在水岸拥有如此开阔的公共绿色空间,实属幸运。我们在这里建造的房子,必须对环境敏感且友好,不能在体量与形式上对周边造成压迫感。

△塑形地貌
然而,甲方对于这个建筑的想象是一座“地标”建筑。建筑面临的挑战是,既要兼顾湖岸风景,和谐融入公园的大景观,又要成为名副其实的地标。直觉及初步分析引导我们判断,这个建筑既不是纯建筑,也不是纯地景(建筑),而是由建筑与景观这两种“力”共同作用下的产物。也就是说,鱼和熊掌要兼得。

△主入口广场
策略
这个项目的功能需求包括一个无需自然光的大型多媒体展示厅,一个有自然光的展览厅,和一个给沿湖公园配套的大型停车场。然而,正是被甲方反复提及的“观景”需求,为设计提供了最初的抓手。

△“漂浮”于绿丘之上的圆环
从项目所在位置向四周眺望,在晴朗的日子里,周边多个角度均能欣赏到新区内的重要地标或风景。因此这个展厅最终取型为无方向性的圆(环),以获得在各个方向上的视觉均好性。
同时我们尽最大可能缩小建筑的体量以不对湖岸公园的景观造成过多冲击。我们将97%以上的停车位放入地下,进而将无需自然采光的多媒体大厅等功能空间做埋地处理,使其较大的体量(多媒体展厅为占据9个标准柱垮的空间)与地景融为一体。

△坡体脊线
圆环
所有的其他功能空间都扎根于大地景观之中后,从城市层面看,最为可见的建筑体量就剩下了巨型的圆环(展厅)。它被整个地段的绿丘所烘托,“漂浮”于空中,成为视觉的焦点。白天它姿态轻盈、玲珑通透;夜晚,自内而亮,像一顶发光的桂冠,单纯而又圆满,成为龙湖夜空中一个明亮的符号,向周围传递着自己的能量和意志。
圆环内部空间有内外两个环面:外环为通透落地玻璃,为访客提供360度大全景城市景观;内环墙体作为展示面。

△大全景观景窗
立体观景平台体系
“漂浮”的姿态改写了建筑内、外空间之间的关系,将二者套叠在一起,并行而不相交,并形成了一系列既相互关联又相互独立的室外、半室外空间。虽然主要内部功能空间都是由纯粹几何体(一方一圆)构成的封闭空间,但整体而言,艺术中心是一个开放的、可供人们漫步其中的场所。漫步的路径主要有一明一暗两条动线。

△支点–“大象”旋转楼梯
玲珑通透的圆环
“明线”依托于景观之上,“暗线”则植根于建筑内部。“暗线”服务于公共艺术中心室内空间的造访者,而“可引导任何一个来访者直接到达“绿丘”顶部平台。这里由漂浮于空中的圆环体量围合出一个圆形内庭院。庭院中心是圆形薄水池,有很强的向心性。然而这个庭院并不是内向的,其 “虚拟”的边界是位于圆环下方被有意制造出压抑感的一圈灰空间。圆形内庭院通过这里向外部广阔的湖岸公园延展。

△圆环与顶部平台之间的虚空间
在建筑与景观的相互作用下,形成高度不同、朝向不同的多个观景平台,并以大型台阶、旋转楼梯、坡道、电梯等竖向交通元素相连,形成一个大型漫步体系,成为水岸公园漫步的延伸。漂浮的姿态将场地尽最大可能地回馈给城市,在这个开放建筑之上,那些在水岸步道层面看不到的远处风景及建筑群将被尽收眼底。

△灰空间

△绿丘与“大象”楼梯是圆环的两个支点

△休息座椅
结构
建筑的结构分两个组成部分:下部钢筋混凝土框架剪力墙结构(用于多媒体展厅“绿丘”及地下停车库)与上部环廊整体桁架钢结构(用于圆环展厅)。

△支点–景框
直径53.2米的圆环钢结构只通过三个支点与下方钢筋混凝土主体结构相连。这三个支点分别与“景框”景墙、小型绿坡和“大象”旋转楼梯巧妙结合。旋转楼梯作为通往圆环展厅内部及其顶部平台的交通与疏散工具,与其邻近的结构支点相结合,经在其前端和尾部做少量夸张处理,形成了“大象”形态。为严谨而理性的整体增添一丝浪漫与诙谐。

△旋转楼梯
在圆环内部,我们为保证外环通高玻璃幕墙的视野,在这一侧做了无柱处理,由内环的双环整体桁架向外出挑。整个圆环因大跨和悬挑结构获得了其“漂浮”的姿态,也因此为二层屋顶平台提供了最优视野。

△枯山水观景平台区
材料
圆环外墙为无肋全玻璃幕墙,采用超白玻璃以取得最佳视觉观景效果。幕墙顶部以L型玻璃转角与屋面结构相接,凸显轻盈与通透。这样的处理保证由内观外一览无余,身临其境;由外观内,层次丰富,彰显内部空间特点。

△“漂浮”于绿丘之上的圆环
圆环下部体量为光洁的清水混凝土材质,凸显其厚重与朴素。白色及仿木色铝板/铝条栅分别作为圆环及大象等处的外装材料,与混凝土体量形成鲜明对比。

△支点–绿丘
照明
这个建筑同时还是一个聪明的建筑,它的“表情”会与社会生活的方方面面息息相关。圆环的内景及光会通过高度透明的玻璃墙体透射出来,成为夜晚的一个符号。圆环内部连体墙与顶的形式反映了其钢结构的形态,也获得了“城市之冠”的视觉效果。其照明系统有能力与城市的大数据结合(如天气、交通等信息),将其艺术化处理后进行动态可视化输出。

△夜景
进而,作为艺术中心核心的圆环自身可以成为一个艺术媒介,自由展示任何与光相关的艺术。在节日里,它可以成为中国年的红色灯笼,也可以在中秋节呈现清冷的月白色,以增添城市的节日气氛。平日里,可以低调为黑夜里一团幽暗闪烁的星云。

△白日远景
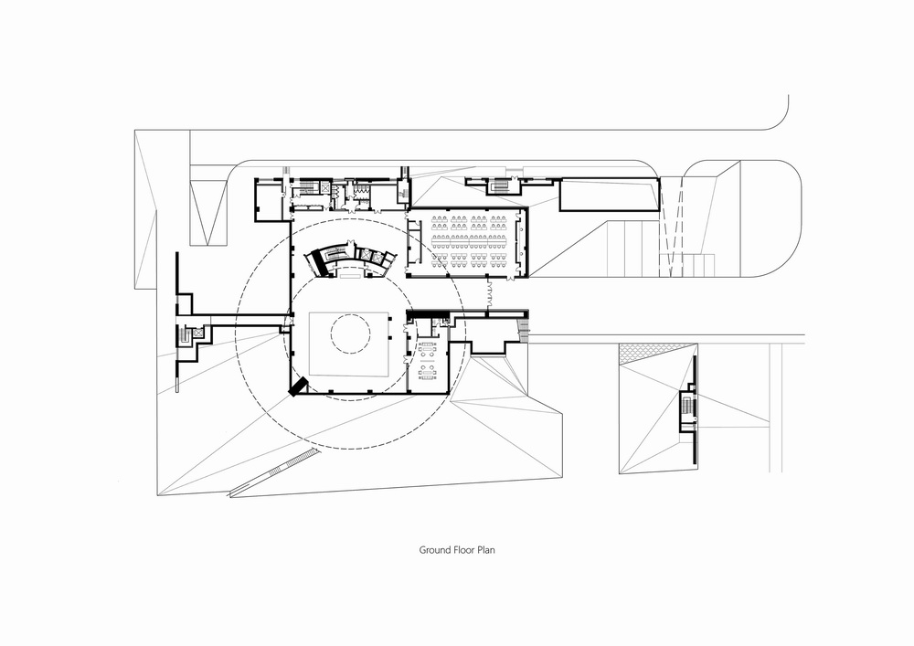
技术图纸

△场地平面图

△底层平面图

△屋顶平面图

△夹层平面图

△二层平面(左)二层屋顶平面(右)

△北立面

△东立面

△南立面

△西立面

△剖面图

△剖面图

△人流分析图
项目信息
项目名称:龙湖公共艺术中心项目地点:郑州建筑面积:21205.88 平方米总用地面积:16404.24平方米主创设计师:王敏(STUDIO A+ )设计团队:建筑:王敏,丁梅,李辉,王玉良,苗业、朱士壮、刘大华、王崇硕、刘科峰、赵玉峰、李瑞、葛家乐、宋依阳、张明岩结构:王洪兴、陈亚超、储德文、毛彦喆、陈龙结构技术指导:肖从真机电:米长虹、陈港,赵培江、刘守勇、李弘、张鹏、张立影、孙振宇、孙斌、沈宝龙、王树伟BIM:姜昊、高懿婷、周晓强、刘岩、靳恒幕墙:曲冰、高驰灯光:王东宁、周丽华、梁金龙、陈强室内:张戈、李午亭、王鸿玉景观:张雯雯、刘溥琦、申恺甲方:郑州市郑东新区建设开发投资总公司竣工时间:2020年9月设计单位:STUDIO A+ (优加设计)合作单位:哈尔滨工业大学建筑设计研究院,中国建筑科学研究院有限公司施工单位:中建八局第二建设有限公司摄影:陈溯,方淳,蒋镇东,存在建筑

BIM建筑网





评论前必须登录!
注册