编者按:本案为北京理工大学良乡校区文化体育中心,是一个融合游泳馆、健身房、武术空间、拳击室等活动空间的大体量体育馆。建筑语言提炼自该校专注于军事科技的性质,多使用金属铝及其他银灰色材质,强调军事理性的建筑氛围。富有特色的曲面屋顶,灵感来自莱奥纳多·达·芬奇的飞行器以及军事科学中广泛应用的抛物线,是为一大特色。
专题链接:专题学院·第52期 国内大学建筑合集,查看更多优秀国内大学建筑案例。
新北京理工大学体育中心位于北京卫星城良乡,连同新的体育馆,二者一起构筑了新校区的入口。

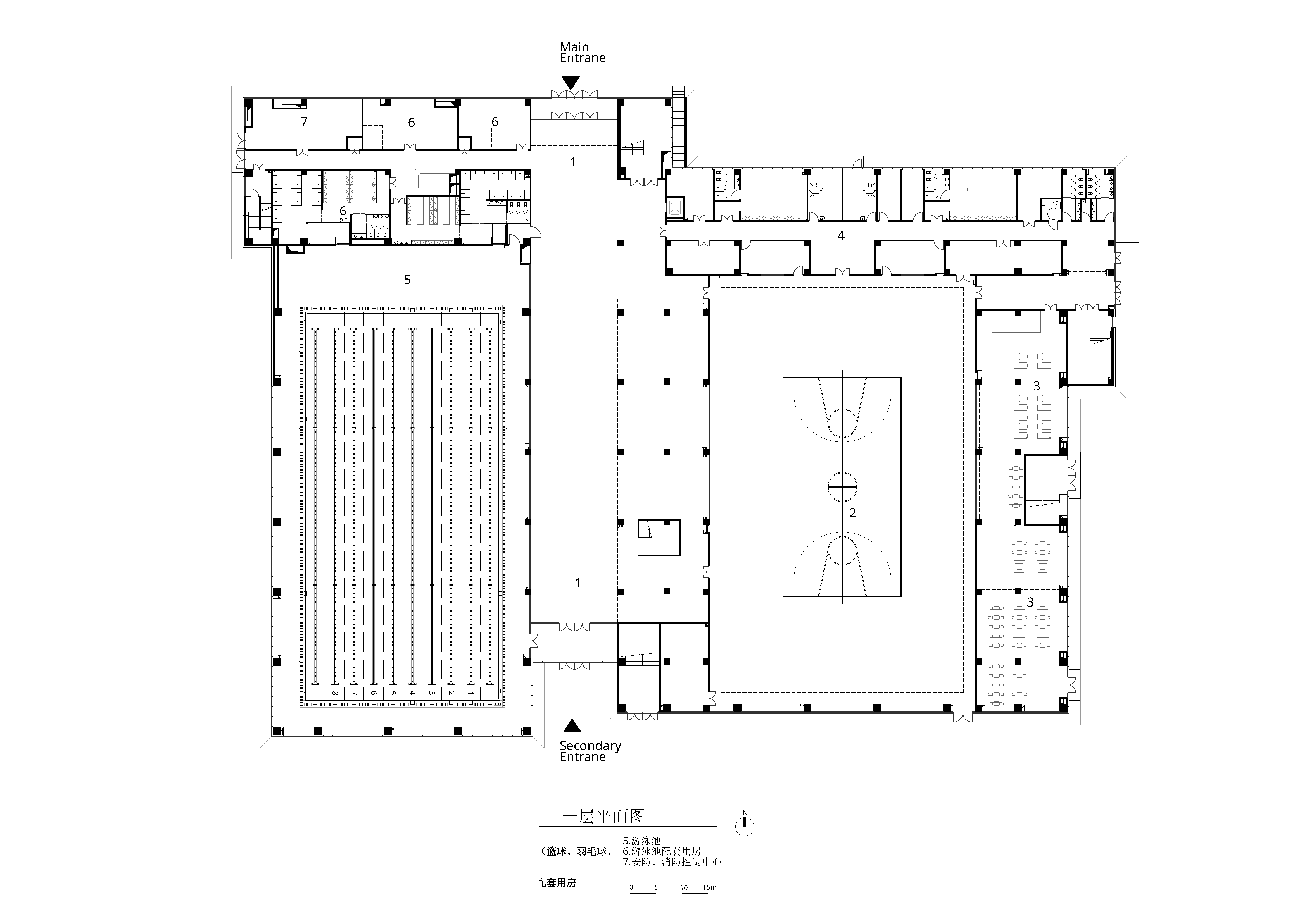
体育中心为学校增添了约15700㎡的运动空间,包括3000个座位的篮球场、10条泳道的游泳馆、健身房、武术空间以及拳击室、跆拳道、乒乓球活动空间等。




北京理工大学是一所长期专注于军事科学的大学,在这个项目中,我们从莱奥纳多·达·芬奇的飞行器以及军事科学中广泛应用的抛物线中汲取灵感,延续了达·芬奇关于科学、建筑和艺术之间的跨学科对话。在研究了相关学科的艺术和科学史之后,创造了三个漂浮在空中的相关联的表面作为建筑物的屋顶,空间网架结构支撑起这些曲面构成的拓扑关联体的屋面,直立锁边的金属屋面系统和幕墙体系覆盖整个屋面和立面。



金属铝大量使用于屋顶、天花板和立面上使建筑具有统一的金属色调,呼应了军事领域中的工业美学。

正如达·芬奇所倡导的“文艺复兴人”一样,个体应该在身体和心智方面都表现出强大的优势。北京理工大学体育中心旨在建立一个多维的开放的校园,同时培养学生的心智与身体,鼓励学生的在校际之间开展对话。我们在城市、建筑两个维度上希望能够传达出对话空间可能,主要是通过平面和剖面两个层面上创造出空间的渗透性,在城市维度上:篮球馆位于建筑的东南角,将体育馆与校园主要交通流线和街道生活融为一体;而西部的游泳池则与校园中心广场相连。



在建筑尺度上:由于篮球馆的座位被抬高了一层,下方的空间在首层都是相通的,因而室内与室外也形成了很好的联系。从街道到校园,在首层建立了一个新的地平线和视觉渗透;一条内置的入口长廊置于游泳池和篮球馆之间,其南北两个出口正好连接了此前分割的南北校区。



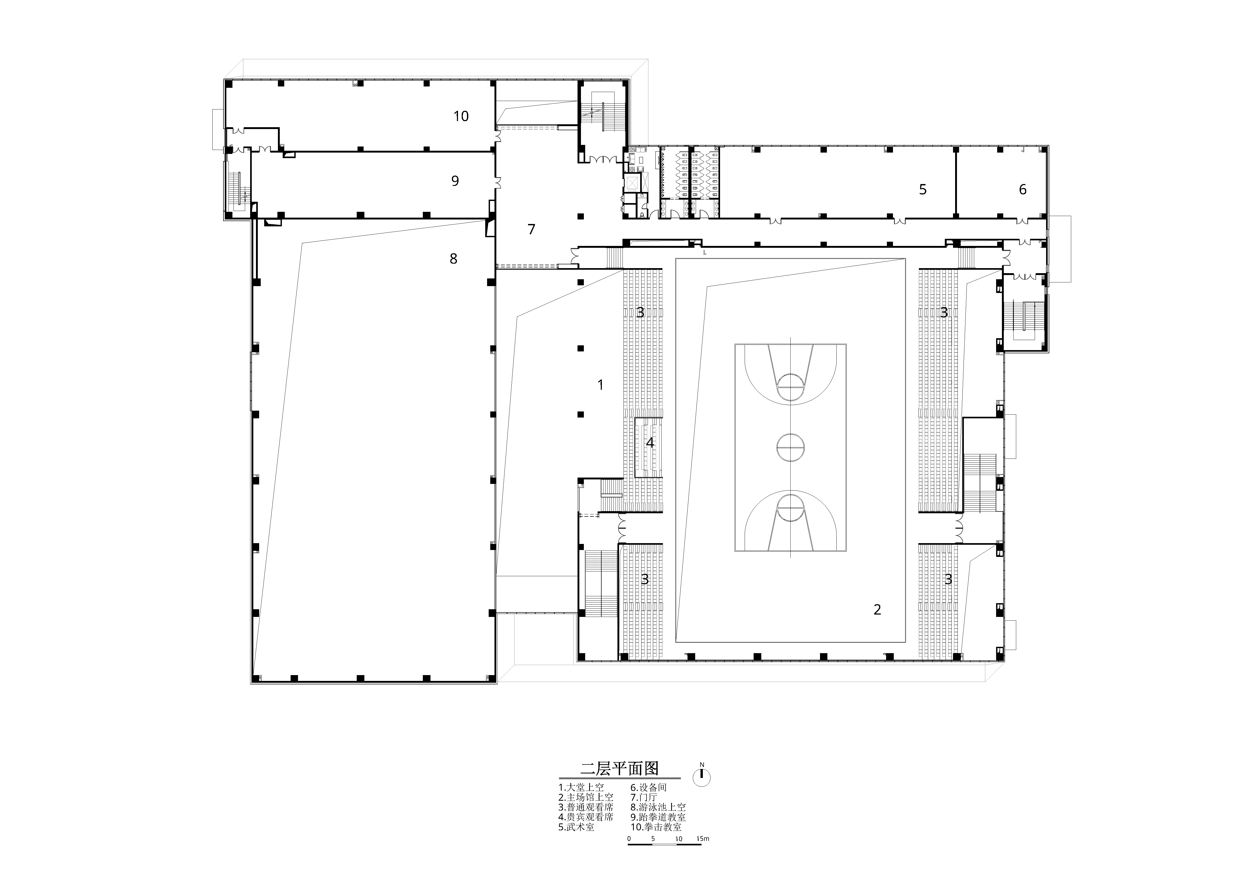
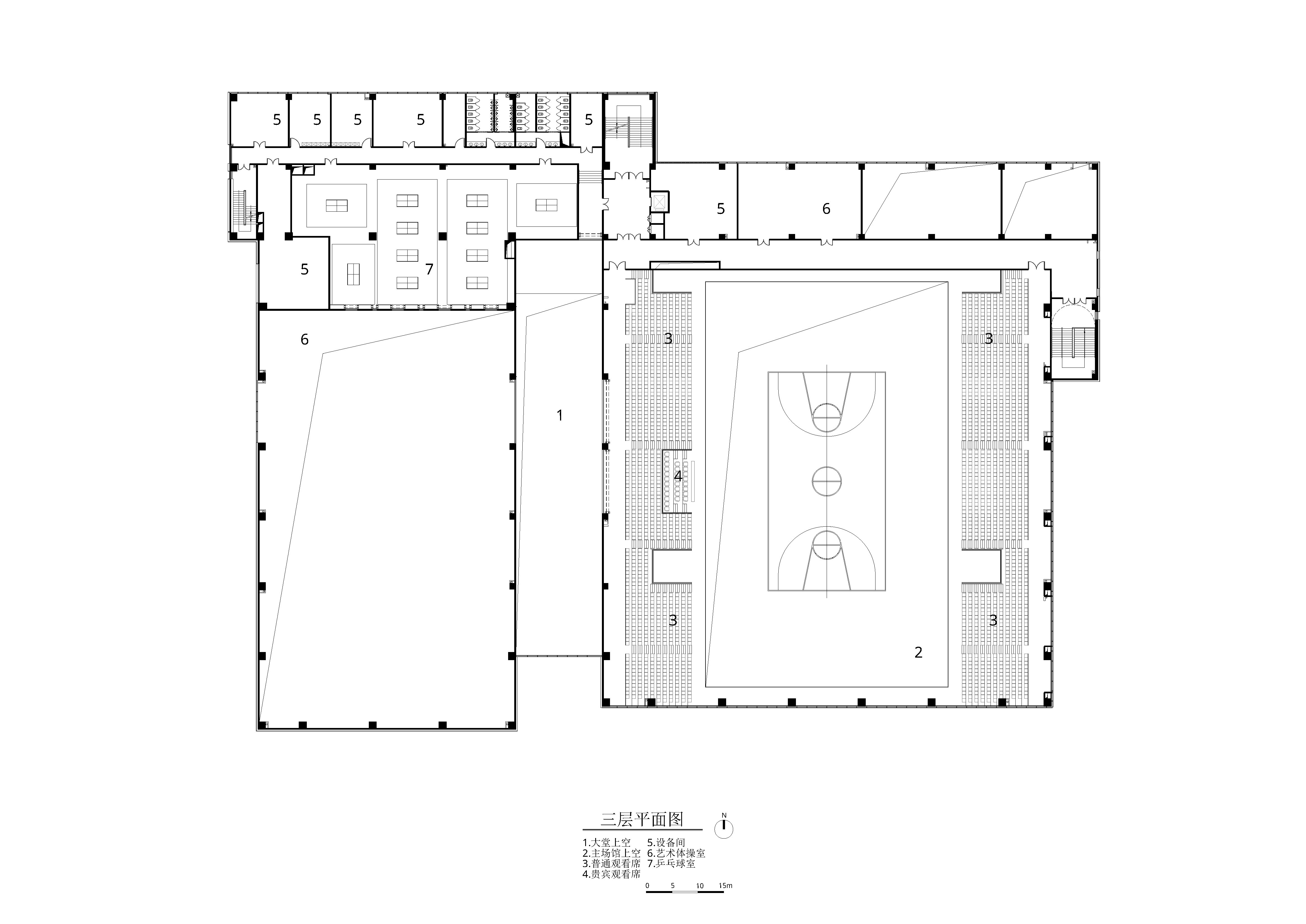
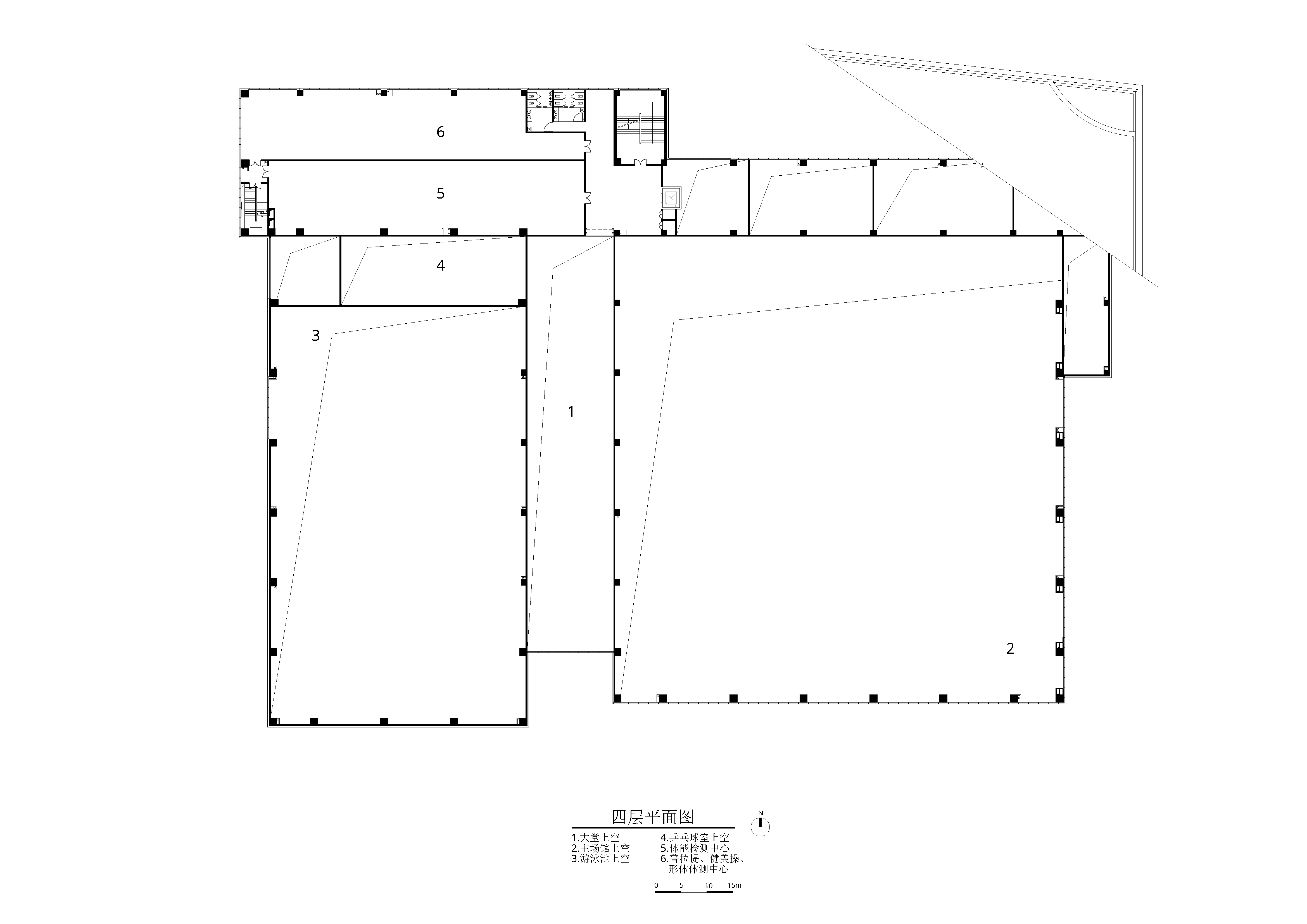
在三楼的篮球座位顶部,有一个大窗户,可以俯瞰入口长廊、大厅对面的游泳池以及游泳池一侧的校园。在二楼、三楼和四楼,游泳池后面的运动室——跆拳道、乒乓球和测试中心——都有不同的路径进入游泳池,并且共享来自游泳上方的天窗。由于拥有透明的空间界面,垂直的空间穿透是通过剖面上相互嵌套的功能得以实现。


技术图纸

△总平面图







△剖面1-1&2-2

△剖面3-3&4-4

△节点大样
项目信息
业主:北京理工大学
位置:北京, 中国
类别:体育馆
建筑方案主创与室内设计:Atelier Alter Architects时境建筑
设计总包:中国中元国际工程有限公司
设计咨询:北京汉华建筑设计有限公司
主创设计师:张继元,卜骁骏
建筑设计团队:李振伟,覃凯,蒋萍,黄玮,刘同伟,杜德虎,张家赫,颜然,郑来荣,梅家铭,宋利东,赵潇潇,张晶石,韦必达,熊伟,陈威狄,郭晓晴,达雪芸,黄博,马磊磊,曹辉
结构:中国中元国际工程有限公司
机电:中国中元国际工程有限公司
室内设计:Atelier Alter Architects时境建筑
景观设计:中国中元国际工程有限公司
幕墙顾问:深圳朋格幕墙设计咨询有限公司
灯光顾问:ZDP中辰远瞻 韩文晶工作室,京运佑锦照明设计
声学顾问:中国中元国际工程有限公司
工程监理:北京中景恒基工程管理有限公司
建设方:北京建工集团有限责任公司
精装施工:北京森洪利装修工程有限公司
幕墙施工:山东天幕集团总公司
厂家:霍高文建筑系统( 广州 )有限公司,太通建设有限公司,北京博隆盛工贸有限公司
造价:1.52亿人民币
面积:15692平方米
工程竣工: 2019.07
摄影师:金伟琦,Highlite Images (亮点影像),Atelier Alter Architects时境建筑
图片版权: Atelier Alter Architects时境建筑

BIM建筑网





评论前必须登录!
注册