
△鸟瞰图
项目位于深圳市福田CBD,临近市民中心。本来这个区位非常好,但周边高楼林立,没有展示面;同时,这个用地虽小,却分属两家银行业主。城市设计要求两家整体设计,在用地中央合建一个“共享大厅”。但两个业主并不想建一个真正的“共享大厅”,以免产生共有物业的权属问题。这成为本次设计的两大难点。

我们选择了以退为进的策略来破解项目中的矛盾。首先不去讨论何种标新立异的塔楼能在周围楼宇的夹缝中与他们争奇斗艳,而是设计两座姿态谦逊、方整简约的塔楼,并把设计的重心转移到近人尺度的建筑底部,试图在中心区密集的建筑群中营造一个积极的生活节点。

△裙楼

△共享空间入口
我们偷换了原有“共享大厅”的概念,用一个流线造型的裙楼将两座塔楼在形式上紧密粘合在一起,但其底部却是一个完全开放给城市的公共通道。通道在场地正中央放大,形成一个高大的玻璃穹顶。穹顶顶部设有天窗,当阳光射入的时候,经由玻璃的反射和折射产生普通直面玻璃建筑所不具备的水晶般的光影效果。

△共享空间空隙中的光线
这个穹顶为往返附近物业及公共交通站点的人提供了一个遮阳避雨的捷径,成为真正“与城市共享的大厅”;而业主也借这个空的“大厅”回避了物业权属不清的问题。

△共享大厅内部

△从楼梯看共享大厅

△民生银行所在街角

△民生银行街角裙楼
楼形立面以竖向遮阳百叶为主元素,但百叶在顶部以及受太阳辐射最多的角部扭转为45度,长度比垂直的部分更长,遮阳效果也更佳,在特定的光线下呈现出戏剧化的渐变效果。

△西南方视角

△屋顶花园
裙楼有大量的自由曲面,但我们仍设计了一个标准的节点系统来适应任意形状及角度的玻璃安装,用一种类似“齿轮”机制的节点构造,实现了安装误差及玻璃角度的可调性,大大提高了加工建造的效率。

△裙楼幕墙节点
我们希望这座建筑对城市是友好的。流线的形态和奇妙的光影让“共享大厅”这个熟悉的概念带给人新的体验;也因为它的存在,公众对于这些超高层建筑并非只能仰望,并且敬而远之的绕行;而是也能走进它,感受它给予城市的包容。

△玻璃穹顶

△南立面
技术图纸

△总规划图



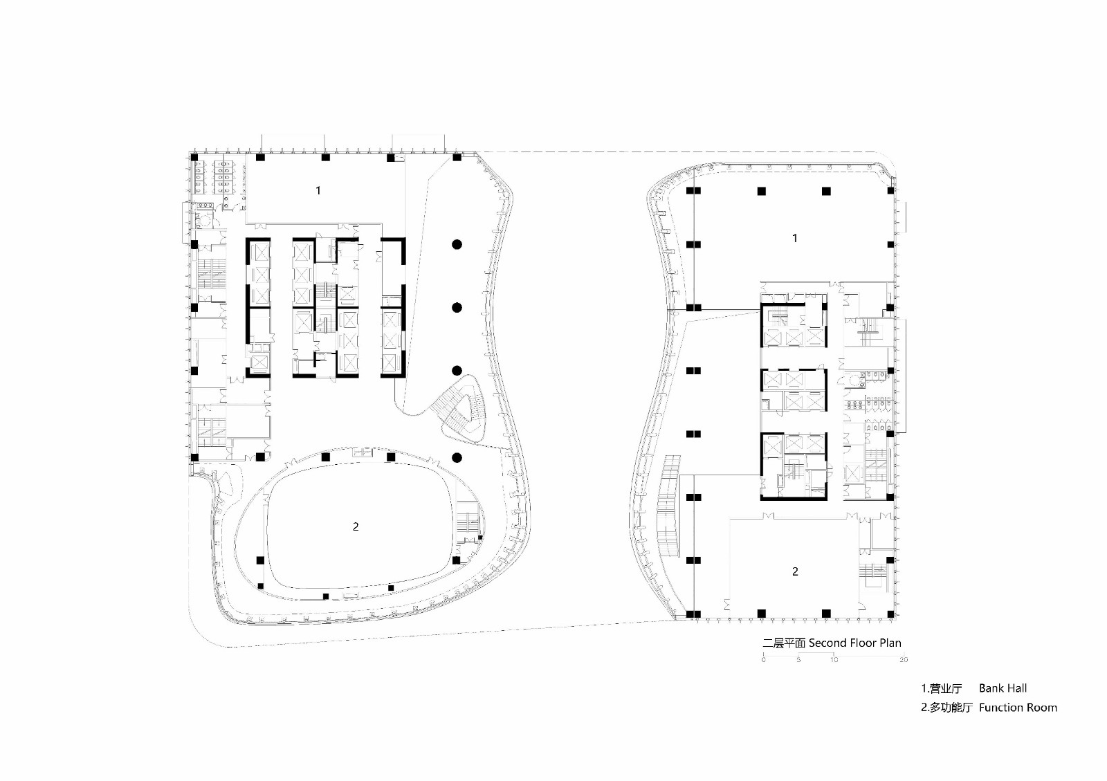
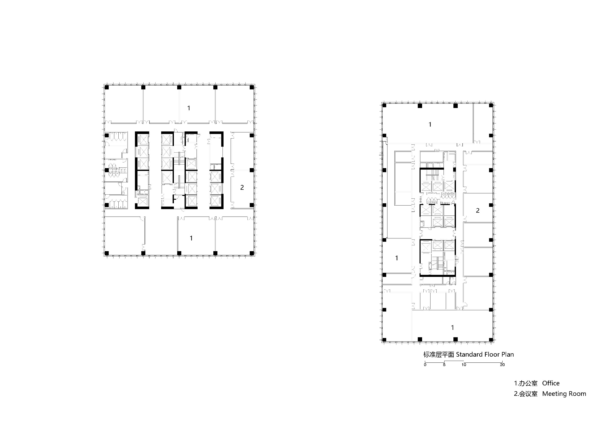
△平面图

△裙楼构造分析图

△共享大厅形态生成


△立面图


△剖面图
项目信息
建筑事务所: 筑博设计股份有限公司
事务所网站: www.zhubo.com
联络邮箱: branding@zhubo.com
项目完成年份: 2019
建筑面积: 136,000㎡
项目地址: 中华人民共和国深圳市福田中心区
摄影师: 曾喆,白羽,龚晓文
主创建筑师: 冯果川,刘晓英,龚晓文,熊桂林
设计团队: 刘少毅、肖杨、Colin Franzen,陈江飞,王真,李俊斌,卢怡,赵旭东,尹亦鹏,史若楠(实习),王金星,刘晔,高峰,何邱君,程艳虹,杨慧来,谢泽鑫,李娜,吕少辉
委托方: 国银金融租赁股份有限公司,民生金融租赁股份有限公司
结构设计: 筑博设计股份有限公司
景观设计: 筑博设计股份有限公司
施工方: 中建第四工程局有限公司(总包),深圳市三鑫幕墙工程有限公司(裙楼幕墙)
顾问公司: VS-A(裙楼幕墙方案设计)

BIM建筑网





评论前必须登录!
注册