编者按:这是为红十字会护士修建的宿舍楼,在调查过护士们的意愿之后,设计团队决定优化传统的宿舍样式,精心考虑了其自然采光和通风系统。整个设计思路清晰、呈现出统一的系统性。
“朱拉隆功国王纪念医院新宿舍楼或“NAWARACHUPATUM”是一座为泰国红十字会旗下护士提供居住的宿舍楼。

宿舍楼共有26层,523个房间。大部分房间都可容纳二人居住,并配有多种设施场地:生活区、图书馆、食堂、洗手间、多功能房间等。

新宿舍楼选址周围是四座医生和护士的宿舍楼。其中,三座高层宿舍楼环绕在选址周围——一条可供汽车通行的道路。

余下的一座低层宿舍楼位于新宿舍楼选址中间,新宿舍楼就在其拆除后的废墟之上建造。建筑团队对新宿舍楼的布局设计是协同其他三座宿舍楼共创一个封闭式庭院,将新宿舍楼与医院的人群和忙碌气氛相隔开来。


宿舍楼一楼作为开放空间,将道路与庭院相连,正如一个通往静谧安宁的居住区的入口。

调查显示,相比起空调房间,大多数护士更倾向于拥有一个自然通风的房间。在阳台上栽种植物也广受护士欢迎。基于以上信息,回应需求的主要设计理念应运而生。


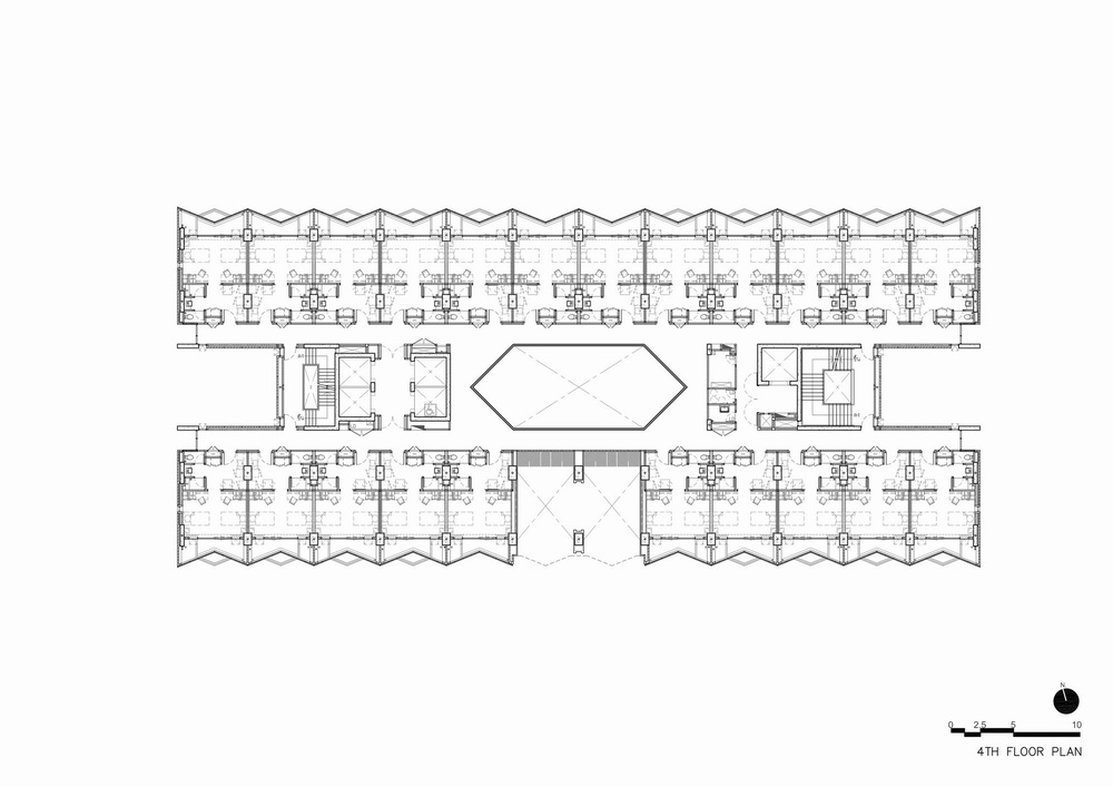
经由分析具备二人通过的走廊的典型宿舍楼,我们团队意识到两个问题:自然光的缺乏和室内通风的困难性。为了解决以上问题,我们隔开宿舍楼的两边,以形成两条单人通过的走廊,中间留有间隔。该设计决策能让更多的自然光照入走廊。

△宿舍区平面图13F
我们在宿舍楼中间开创一个通风的烟囱,改善整座宿舍楼的通风条件。

我们在一楼、宿舍楼的中间和顶层设置宽风道,以实现烟囱效应,将底部楼层的空气吸到高层。

外层风道的灵感来自“UNA-LOME DAENG”,也即泰国红十字会标志的最初设计。


在房间设计方面,我们在入口处采用实心双开门,并配有防虫网。当打开阳台处的实心门和窗户时,走廊间的空气便能流入房间。

房间的典型布局为两部分。一部分临近走廊,并作为室友的共享空间,其中包含一个食品柜和一个带推拉门的洗手间,起到隔开卧室的作用。若住户决定打开实心门以让自然空气流通房间,推拉门可为他们留有一片隐私区域。

△宿舍区平面图 4F
另一部分则是两位住户的卧室。每一张床都放在房间内的对侧,为每一户住户在共享通往阳台的中间走廊时创造一个隐私空间。

因为宿舍楼毗邻周遭建筑,于是我们将阳台设置成特定角度。这可避免来自其他建筑的视线径直落入室内,保护住户的隐私。

之字型阳台能让更多的阳光照入到适宜植物栽培的地方,并能基于住户需求晒干衣物。设计中垂直式围栏为铝制鳍状,可作日光遮挡之用。


围栏之上装有多孔铝制薄板,遮掩住晾衣架、空调冷凝机和洗衣机等不平齐的部分。考虑到铝耐用和易维护的特点,我们选择铝来制作外部结构。

独一无二的外墙和阳台组合,为日照与遮荫皆留有位置,呈现出建筑简单的系统性设计,同时内含多种复杂的用户功能性需求。


技术图纸

△规划平面图

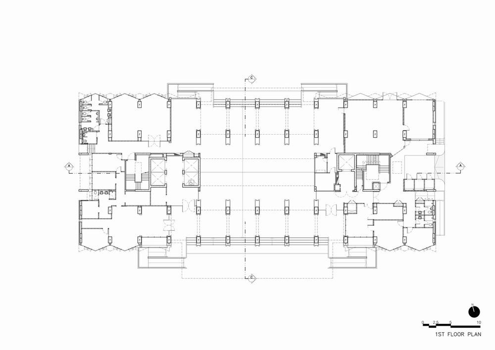
△一层平面图

△屋顶平面图

△南立面

△东立面

△剖面图

△剖面图
项目信息
建筑设计:Plan Architect
面积:32000m²
项目年份:2021
摄影师:Panoramic Studio
厂家:American Standard,Fórmica,Suntech,TOA,Tree Concept,WILLY
主创建筑师:Nitisak Chobdamrongtham, Apichai Apichatanon, Wara Jithpratugs, Naphasorn Kiatwinyoo, Nathida Sornchumni
City:Khet Pathum Wan
Country:泰国

BIM建筑网





评论前必须登录!
注册