
一日之内
两年前我和高老师都在美国,我在波士顿,她在匹兹堡。高老师和男友朱先生去纽约,我带着红酒造访他们的短租公寓,朱先生变戏法一样变出满满一桌圣诞大餐。5月,高老师带小孩子来波士顿玩,风雪季刚过,在查尔斯河边散步,河上浓云滚滚。
高老师通达爽利,价值观与我相近。价值观相近,就不会觉得“咦,他怎么会这样想问题”。她把家交我设计,大概也有这个原因。美国住房以实用为主,以新英格兰地区为例,独栋小住宅多是木瓦风,离近了看,外立面上的木瓦早都换成了廉价的复合材料。其他如乔治亚风、安妮女王风,都是表面的区别,里面都一样。出租公寓须有全套厨卫电器,有地毯隔声,租客退租时须将物品清理一空,房东进行消毒除铅。
高老师喜欢她在匹兹堡的公寓,阁室美壁橱和自动干衣机,多余的装饰一概没有。一方面,我们都是实用主义者,不喜欢过多的摆设,怕放久了碍眼;另一方面,风格化的简约、克制,如素混凝土墙面,总显得冰冷做作,不宜于家室。
人们从影视剧里了解美国人的生活,家居行业有个专用的词:“美式乡村风”,跟北欧简约风、日式小清新一道,将异域生活固化为一幅图像。当人们准备拥有一个属于自己的家的时候,首先是对号入座,把想象力放进饼干模具,烤出来几个固定的样子。我曾去参观一个知名企业家的豪宅,地下室是新中式、一层是欧式、二层是日式……以为误入建材城的样板间。中国人的家庭正在变成想象异域的场所。
隈研吾在《十宅论》里把日本人的家居环境分门别类地调侃一番,然后严肃地提了个问题:属于日本家庭的“场所”到底是什么?移植到中国,问题变成:属于中国家庭的“场所”是什么?将一个时代、一个人群的生活与想象,变成四面墙壁和家具陈设,让人一眼就看到独特的气息,这件事接近于去创造一种“文化”,说起来都让人觉得难为情。
其实设计师的任务很简单。每个住宅都该去满足住在里面的人。既然人是不一样的,家就应该是多种多样的。问题是很多人都未曾认真审视自己,否则怎会把生活轻易地装在模子里?开始设计之前,我给高老师出题:请把你的生活浓缩为完整的一天,从起床到入睡,每个细节,都仔仔细细地写下来。几天后,高老师给了我一篇《我们家里的日常》,有4000多字,是我收到的最细致、最全面的任务书,从这些文字后面看得到一个用心生活的人,和她的思考与感触。住宅设计小得不能再小,因能看到具体的“人”,而显得实实在在的。
我觉得,一日之内的饮食起居都不能理得清清楚楚,人是没有资格谈生活的。
一室之隔
所有设计条件中最敏感的一个,就是业主要微妙地平衡各方的感受。最主要的考虑,就是要兼顾朱先生的一对儿女寒暑假会短暂来住。再加上高老师的女儿,这个“两口”之家,时而会变成三口之家、甚至是五口之家。高老师希望孩子们都有相对独立的空间,但又不想舍弃期待的功能。这是第一个矛盾。
高老师希望一进门就是宽敞明亮的开放式厨房,家务活动围绕中岛操作台展开,这里也是家庭休闲和会客的场所。中岛上有烟机和电磁炉,吊架上有好看的锅具,有红酒杯,可以聊天、吃火锅。高老师喜欢简单的食物:原味的、清水煮的、煎烤的;朱先生厨艺超凡,标准中式做法,大烟大火,需要全封闭的厨房。这是第二个矛盾。
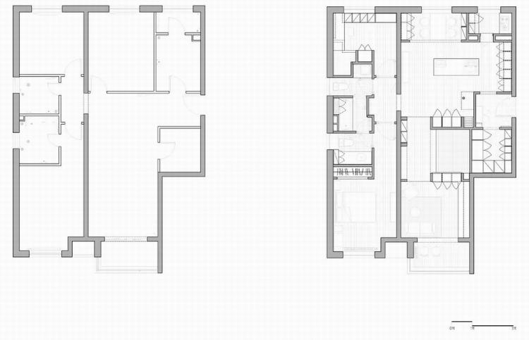
拿到钥匙的时候,房子是毛坯房,常规的三室一厅格局,南北通透。按照开放式厨房的思路,整体上应以自由布局为佳。但高老师在任务书中说:“两个人的日子,终归要有约束,如能兼顾到自由和约束,最好。”业主是个家庭生活的政治家,她的命题关乎人性,也关乎相处之道。我对此深表认同,但如何协调自由空间和私密空间的关系?这是第三个矛盾。

△施工前后的平面图 绘制:王瑶
三个矛盾,都仰仗弹性的空间组织,需要弹性的方案来解决。出于对“多功能房间”的怀疑,我依然将主要功能分别归类,为不能迁就的功能单独分配领域,再把灵活弹性的部分叠合在一起,在一个连续的大空间中划分出很多方向、功能和气质都相当不同的小局部。高老师认可这样的处理方式,但在开荒那一天她跟我打趣道:“保洁阿姨说我家是4室3厅2卫”。大空间就这样被拆散成小尺度的功能区。

△填色剖轴测图 绘制:王瑶
但是,这些功能区在感觉上还是彼此联通,不可封闭的门洞,以及一些可以相互窥视的窗洞,让不同区域间的信息保持畅通,空间连续变换,显得有趣。比如坐在阳台的吧台高凳上,眼前是方形的书房空间,透过深深的拱形门洞,看得见厨房的中岛,和中岛后面绿色墙面的小餐厅。再往前,是餐厅窗外的远景。拱门旁边,透过书桌上的洞口,可以瞥见茶室和上面的阁楼小床,让有限的空间多了些视觉层次。

△从书房回看家庭室 摄影:金秋野

△南北向剖透视 绘制:王瑶
最初的方案,北侧是敞亮的大厨房,围绕中岛一圈操作台。但若是这样,中厨操作区也就暴露在外,无论多强悍的排风设施都不能解决油烟问题。这时候再去坚持“必须有一个大厨房”的想法是不切实际的,不如隔出一个小的中厨操作区。利用这道划分线,不仅隔出一个餐厅,还利用纵横的假墙塞进去燃气热水器、中厨洗涤区、咖啡操作台和微波炉。平日里,中厨的使用效率极高,中岛则承担起了“家庭活动中心”的任务,让厨房成为“家庭室”。

△初稿草图 绘制:金秋野

△家庭室照片 摄影:金秋野
相对独立的餐厅区靠窗而设,为了突出它的领域感,朝中岛方向做了一个弧形的洞口,施工过半感觉不舒服,又包了实木套,改成方洞口。这个门洞上方,工作室的小朋友们手工做了个两米长的钢框架灯笼,糊上日本和纸,平衡过于强烈的室外光线。餐桌也是定制的,使用不锈钢框架和胡桃木桌面,两边分别有茶具陈列架、咖啡操作台、恒温酒柜和餐具柜。这里不仅是全家就餐的区域,也可临时充当煮茶和煮咖啡的会客区。做好之后,这里成了高老师最喜爱的工作间。

△餐厅区照片 摄影:金秋野
原本相邻的两个卫生间大而无当,没有预留合理的淋浴间位置。按照业主的要求,规划出独立的浴室,有宽大的浴缸。次卫的洗手盆移到走廊,实现了彻底的干湿分离。次卫因少有人来,还分配了洗衣间的功能。主卧卫生间空间宽裕,有长长的盥洗台,高老师的瓶瓶罐罐一字排开,像列兵等待检阅。

△卫生间的轴测图 绘制:秦鸿昕
书房和家庭室通过拱廊连着,却是两个相对独立的区域。两个人的时候,可以同时在书房写东西,可以分别在餐厅和书房弄电脑,可以在茶室的榻上读书喝茶,也可以临时占据女孩房间的台面,完全做到互不打扰。通过分隔,房子里出现了很多尽端式的“去处”,让小家更有“漫游感”,灵活自由的同时,不再是“一览无余”,一定程度上保证了私密性。
上下之间
除主卧外,还要为小朋友们准备三张独立的小床,以及相对独立的寝卧空间。我想,为每人辟出一个房间,面积小、效率低,成本高。不如根据实际情况,将两个使用频率较低的小床整合在一起,成为一个空间尺度的“大家具”。这种做法,与我设计自家的思路是一致的,大家具有多重空间含义,功能上则承接了枢纽作用。

△大家具轴测 绘制:王瑶
高老师家的这个枢纽空间要复杂得多,它连通了居室的四个区域,本身也包含上中下三个层次。原来的套型,入口没有玄关,左手边是一个衣帽间。现在衣帽间保留,加了一道隔墙,从右手边进入家庭室,这样就出现了玄关。小床就架在这道隔墙上方,与衣帽间对齐,从家庭室进入,向玄关打开一个角部。

△玄关正面照片 摄影:金秋野

△从家庭室看玄关和茶室窗 摄影:金秋野
向衣帽间悬挑的部分,下方嵌入一组衣柜;向起居室悬挑的部分,正好成为茶室的“阁楼”。
茶室的位置在平面正中,相当于往水流中摆了一块石头。但这块石头上有很多孔窍,空间的水流在这里受到阻碍,改变了方向。这种受控的流动,在我看来比无碍的流动更有趣。

△从茶室看书房 摄影:金秋野
茶室是个炕间,高老师跟我一样是东北人。小床悬在炕的上方,给这个小空间带来一抹绿意。

△茶室侧面照片 摄影:金秋野

△茶室正面照片,可以看见上方的小床 摄影:金秋野
下面凹入的部分,有点像书院造的“床之间”,宜于文雅的陈设。右侧与书房通过吊柜下面的书桌相连,左边则是一个可以坐人的凹龛,与家庭室之间,是带窗棂的半透明玻璃窗扇,跟家庭室的独立木柱和上下小床的爬梯组合在一起,也是在塑造室外气氛。北侧封闭窗扇的处理,让茶室与南侧书房的关系更加密切,属于家庭中较为“私密”的部分。炕体主材使用胡桃木,脚踏板用榆木。从炕上下来,就是连接书房和家庭室的过道,被筒形拱覆盖。脚踏板正上方设竹帘,小朋友假期来的时候,一个睡在夹层的小床上,一个睡炕上,竹帘放下来,成为临时性的卧室。
茶室塞在房间正中央,传统意义上以客厅为中心的居室格局瓦解了。这个项目继续探讨“以炕为中心的居室空间”,以及直立和坐卧相结合的活动模式。高老师在任务书里说“我们不需要传统意义上的客厅,不需要大沙发。简单的皮沙发、皮和木的椅子有几把就好,小小的桌面,或高或低,能放个随手物品。并不在这里喝茶和会客。”

△书房沙发区照片 摄影:金秋野
下面凹入的部分,有点像书院造的“床之间”,宜于文雅的陈设。右侧与书房通过吊柜下面的书桌相连,左边则是一个可以坐人的凹龛,与家庭室之间,是带窗棂的半透明玻璃窗扇,跟家庭室的独立木柱和上下小床的爬梯组合在一起,也是在塑造室外气氛。北侧封闭窗扇的处理,让茶室与南侧书房的关系更加密切,属于家庭中较为“私密”的部分。炕体主材使用胡桃木,脚踏板用榆木。从炕上下来,就是连接书房和家庭室的过道,被筒形拱覆盖。脚踏板正上方设竹帘,小朋友假期来的时候,一个睡在夹层的小床上,一个睡炕上,竹帘放下来,成为临时性的卧室。
茶室塞在房间正中央,传统意义上以客厅为中心的居室格局瓦解了。这个项目继续探讨“以炕为中心的居室空间”,以及直立和坐卧相结合的活动模式。高老师在任务书里说“我们不需要传统意义上的客厅,不需要大沙发。简单的皮沙发、皮和木的椅子有几把就好,小小的桌面,或高或低,能放个随手物品。并不在这里喝茶和会客。”

△透过茶室看家庭室的照片 摄影:金秋野
经常回家的女孩有独立的卧室,床铺也采用架空的方式,下面的空间一分为二,西侧按照小甲方的要求,做了个可以蜷在里面看书的“密室”,东侧又一分为二,南侧让给洗衣房,北侧是小孩子的储物柜。床头朝向门口的墙壁上,装了个太空舱一样的“泡泡”,孩子爬到高处,从中向下窥视,应该觉得好玩。

△小床和泡泡照片 摄影:金秋野
通过一系列水平和垂直方向上的“分隔”,空间多出了许多“褶子”,家庭的基本功能分布在褶子的实体部分,余下层层套叠的空间,在视觉上创造了很多远近上下,将房间的物理尺寸延长。好像旅行之前,把衣服叠好塞进旅行箱。无论去多远的地方旅行,我都只带一个小登机箱,它的容纳潜力似乎是无穷的。家庭生活的功能和细节,也可以理清楚、叠整齐,这样空出来的部分,正是家庭空间中有意的留白。

△大家具轴测,从入口方向看 绘制:张靖雯
身外之物
像很多女主人一样,高老师也积攒了大量私人物品,比如:“我有大量的衣物,需要悬挂的长裙和大衣也很多,朱先生也有若干套西装和风衣需要悬挂,需要叠放的运动衣、休闲衣裤也很多。包包日常放着的大概十几个,鞋子的数量我是数不清的。鞋子大部分为女士的那种只需窄小空间的鞋子,另有一些徒步鞋,短腰靴子,长靴有个四五双,短腰UGG那样的棉靴三四双。朱先生的鞋子少很多,不过在男士中也算不少了。这些东西要怎么存放才可以方便,我一直梦想可以不用四季地倒腾。也一直希望每日搭配的时候,可以轻易看到和拿到想要的物件。另外,我有很多条丝巾、围巾,朱先生有不少领带和皮带。然而,我却矛盾地不喜欢物品拥塞的感觉,一件件一双双中间必得有空隙,有疏离感。”
劝业主把这些统统扔掉是很不礼貌的,虽然我很想这么做。所以要想个办法,让它们各就其位。市面上近来流行日本家庭收纳秘籍,我看了看,觉得收纳这件事若过度了也是执念。东西多少才合适?我以为跟家庭收纳空间相匹配,就刚刚好。物品的多少,跟生活的满足感无关,过多的储备反而会造成精神上的堵车。所以我没有给高老师的衣帽间设计太多的储物格,免得打开柜门的瞬间被喷薄而出的东西吓到。储物柜和大衣柜出现在应该出现的地方,比如小床下有放书包的柜子,书桌上有放文具的置物架,炕上有放被褥的炕柜。
入口玄关那里,用了尽量接近室外环境、略显粗朴的红色地砖。我希望从外到内,有一个心理上的过渡。正上方的白色毛玻璃后面是一个内嵌的反射灯,发出柔和的中性光,将玄关照亮。这盏灯的另外三面朝向家庭室,与餐厅门洞上方的和纸灯笼一道,成为公共区域的主要人工光源。从玄关还能看见小床的一角,不同的空间通过洞口和明暗变化叠合在一起。

△从门洞看家庭区 摄影:金秋野

△从玄关到拱形洞口的横向照片 摄影:金秋野
餐厅、小床、走廊洗手盆等独立的小空间,可以换一种颜色。问高老师,她希望是一种绿色。在美国的时候,她在我的推荐下去看了赖特的橡树园自宅,很喜欢墙壁的颜色。我找了一些照片,还有书本和网上的图片,都是不一样的绿色。而且,即使我们确定了色号,也无法找到对应的涂料。我就按照我对高老师的理解,选了一种更柔和的绿。白色、绿色和原木色,这就是高老师的颜色。
这次跟工长雷金杰,是第一次合作。他头脑清晰、一丝不苟,每个设计要求提给他,都先把风险和困难摆出来。方案中非常规做法太多,项目建筑师都要花力气一一推进。雷工在关键节点解决了很多重要的问题,施工质量非常过硬。
住进新家半年之后,高老师给我发来一张照片,是餐桌上的一杯咖啡,跟着一句留言:“清早起来,家里安静清爽如是”。我想,这大概是对设计师的含蓄鼓励吧。高老师能否代表大多数业主呢?像这样对居室空间丝毫不能迁就,很多人会不以为然。高老师做事干净利落,从不拖泥带水;又总能从从容容的,有一份闲心,能听见天籁。其实每个人都渴望用这样一份“闲心”来生活,只是不敢或不愿面对罢了。
金秋野
2020年2月20日
项目信息
设计团队 金秋野建筑工作室
建设时间 2018年12月—2019年8月
建筑面积 121.25平方米
主创建筑师:金秋野
项目建筑师:王瑶
参与人员:张迪,常涛
业主:高老师
建成状态:建成
设计时间:2018年11月
建设时间:2018年12月—2019年8月
建筑面积:121.25平方米
施工:雷金杰团队
视频剪辑:良物匠造/宁泽坤

BIM建筑网





评论前必须登录!
注册