「桥屋」是一次对Loft公寓式住宅的重构,也是一次对共居者情感的重构。利用Loft的层高优势,在空间中架起“桥廊”,创造出开放性的共享空间,我们希望这个空间可以建立起两代人共居的情感纽带。

本案位于北京市昌平区住总万科天地,混凝土结构的商业Loft公寓,房屋处于整座塔楼的西北角,单层建筑面积40平米,高度为4.2米,室内空间拥有两扇大面积的玻璃采光,临窗处有混凝土地梁抬高。委托方是一对母女,女儿从事美术馆策展工作,对自己的家有着非同一般的要求与期待。


为充分发挥层高和采光优势,置入了“桥廊”形态,在赋予房屋奇特的结构形式的同时,弧线结构特性形成了一个又一个的聚合点。尽可能模糊上下两层的边界,让公共空间得以最大化利用和贯通。


一层主要解决起居空间的功能诉求,利用地台结构做成两个休息区,精确控制楼梯与层高关系,使人在其中游走的恰到好处。通过二层平台纵向垂拔贯通,大面积采光同时,三个层级相互观望,给人与人之间建立更多沟通的可能。

为了增加自然采光,厨房与小卧室之间设有采光口。整体地面使用的是微水泥,无缝隙的材料特性赋予空间更高整体性。

休息区的沙发具有强大收纳功能,结构、光影与机能自成一体。旁边隐藏了一个可以独立封闭的小卧室,这是沙发地台的延伸,也为业主母亲提供可以长期居住的睡眠空间。


房屋采光均为玻璃幕墙,用餐区这里是唯一设有开窗的地方,整个平台拥有非常好的视野,可以眺望到远方山色也可以纵观全屋,作为房间的景观节点拥有非常独特的聚合气质。

二层楼梯设置到原始柱体的后方,在空间扩张后也能给予人意外的路径与发现,这是通向二层桥廊的前奏。内部设置了储物间,让生活中难免产生的凌乱也可以有序收纳。

“桥廊”形态的置入,既能使整体空间得以延展,也为二层居住创造很好的隐私路径,空间恰到好处的隔而不断,秩序感油然而生,宛若一座小型美术馆,这样的气质也与业主本身相契合。


经过“桥廊”过渡到卧室,仅有14平米的卧室仍然包含了双分离式的独立卫生间和淋浴房,储物、梳妆、工作等功能应有尽有。

卧室的地面选用实木地板,增加居住的温馨感。为了保障淋浴房的舒适度,将淋浴空间局部降低,整体色调与卧室地面相区分。而卧室中弧型的窗户使之与共享垂拔空间相连,彼此之间相互独立且关联。


在整个项目中我们引入“桥廊”形态,保证大面积采光的同时,赋予房屋奇特的结构形式与流动性。在具备功能性的基础之上,对空间解析重构,建立居住者的情感纽带,这是对Loft住宅的一次全新定义。


技术图纸

△空间分析图

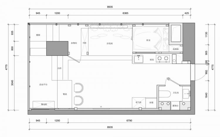
△一层平面图

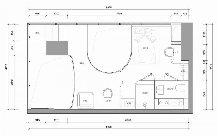
△二层平面图
项目信息
项目名称:桥屋
项目地址:北京市昌平区住总万科天地
项目类型:Loft商住公寓
建筑面积:40㎡
设计公司:戏构建筑设计工作室 XIGO STUDIO
方案主创:刘阳史英杰
方案深化:王丹傅师
家具定制:GRANVISTA观境家居
主要材料:宅匠米耐岩、宅匠木地板、杜邦可丽耐人造石、Labobo陶瓷薄板、立邦漆
设计时间:2020年1月-2020年7月
施工完成:2021年4月
撰文排版:刘阳 张春颖
施工工长:杨博
空间摄影:立明
结构顾问:兰涛
学术顾问:朱力

BIM建筑网





评论前必须登录!
注册