内容提要: 结合大型体育馆空间分割复杂,防火分区多的特点,采用消防安全工程学的方法,定性定量分析建筑的防火设计方案,提出可行性的论证和安全技术措施,妥善解决防火分区、疏散设计等不符合规范要求的问题,引入安全走道、准安全区等设计理念,优化排烟系统的设计,降低建筑投资。为此类建筑的防火设计和消防部队审查提供可行的论证方法。
体育馆作为一种特殊的具有高大内敞空间的公共建筑,在现实生活中使用频率越来越高。现代体育馆要求功能多样化,同时对建筑的美观性、通透性等同样要求甚高。诸多方而的考虑为建筑防火带来难题,这类建筑要在特定时间段内大量聚集几千以至十万以上的公众,人员密度极大,消防安全在此类建筑防火设计中提出了相当高的要求。
涉及体育馆的防火规范,如CB 50016一2006《建筑设计防火规范》(以下简称《建规》),JCJ 31一2003《体育建筑设计规范》等,为体育馆防火设计提供了一个基本设计参数,但是,条文式规范,成熟一条,制定一条,相对于建筑科学的发展往往比较滞后。其自身所固有的滞后性和通用性导致无法涵盖目前大量出现的各类新型建筑,给消防设计带来了难点和盲点。同时,由于我国传统设计理念极少甚至没有考虑人与各种安全设施互动所产生的作用、人在火灾中的行为习惯等等。导致部分特殊建筑的防火设计虽然部分满足规范要求,但建成使用后发现存在较多消防安全瓶颈,而此时己没有修改调整的余地,降低了建筑整体疏散效率和安全水平,也增加了建筑投资。
针对这种情况,在体育馆这类属于现行规范无法全而涵盖的特殊类建筑防火设计中引入性能化设计方案,综合人在紧急状态下的行为习惯和建筑本身的防火设计条件两方而因素,通过烟气模拟和人员安全疏散模拟,量化分析体育馆的消防安全性,然后依据模拟结果,完善防火设计,从而实现消防安全、功能使用和设计方法的统一,达到科学性、安全性、经济性的最佳结合。
本文结合某大型体育馆的性能化设计实例,论述体育馆这类特殊建筑在防火设计中没有规范可依或者无法严格执行规范时,可以通过性能化设计,审查建筑的消防安全是否达到规范的要求。
1 工程概况
某体育馆为地下1层,地上4层。总建筑而积地上19389 m2,可容纳观众5073人,其中临时看台座椅数位1164座,固定看台座椅数3 909座。地下部分为设备用房,而积为2323 m2 .
- 1 建筑定性
该建筑为坡屋而造型,屋而最高点高度为24. 1m,各不同部位的屋顶檐口高度受造型影响不完全相同,高度介于22. 0一24. 1 m之间,且绝大部分屋而位于24 m标高以下,24 m以上的小部分区域也仅有建筑的屋而构件。
从建筑结构和使用功能分析,体育馆比赛大厅部分为单层结构,厅内观众看台部分有人员停留的最大标高为16. 0 m,在16 m标高以上部分未设置任何常有人员驻留的功能区,且比赛大厅内的人员疏散出口主要集中士0. 00 m和6. 0 m两个标高。而除比赛大厅之外的区域体育馆总共4层,体育馆主体部分除4层布置少量灯控、光控、评论员及办公用房,其楼而标高也仅仅16 m,建筑高度超过24 m的部分基本是屋而结构(见图1)

本建筑虽然建筑局部为多层结构,但经常有人员停留的楼而标高仅为16 m,且体育馆核心区域比赛大厅人员疏散出口的最大标高仅6. 0 m,即使是极少有人的空调机房其楼而高度也仅20. 1 m。与建筑高度小于24 m但经常有人员停留楼而高度在20 m以上的公共建筑比较,本工程的人员疏散条件更加有利,鉴于此,本工程可定性为耐火等级为一级的多层建筑。
如果该建筑高度超过24 m,《建规》是否仍然适用。笔者认为应从建筑本身的竖向疏散能力和消防扑救能力对特定建筑进行判定。
从竖向疏散能力看,该体育中心基本属于单层疏散,人员主要活动高度不超过6 m。从消防扑救能力看,该建筑的人员活动高度和内部结构设计均不需要消防队员登高作业,与高层建筑有较大差别。因此,笔者建议相似建筑即使外层高度超过24 m,也应依据《建规》进行设计。
- 2 防火分区
- 2. 1 设计难点
《建规》规定,体育馆其防火分区最大允许建筑而积为5000 m2 。
本工程中,由于体育馆的特殊使用性质导致比赛大厅内场地和周围坐席之间无法设置有效防火分隔,导致其所在防火分区总而积达到6 641 m2。虽然规范中允许体育馆的观众厅防火分区的最大允许建筑而积可适当放宽,但是并未明确放宽标准,因此需要采用性能化评估的方式判断该防火分区划分方式是否合理以及其消防安全水平是否达到规范要求。
1.2.2 性能化设计方案
防火分区的设置主要是防比火灾蔓延,减少火灾烟气影响的疏散人员。
控制火灾蔓延是性能化设计的重点。①座椅主要采用燃烧性能可达到B1级的难燃材料[3](包括临时坐席),且材料的烟密度指数应满足《体规》中不大于50的要求,降低在连续座椅之间蔓延;②为保证最不利情况下坐席区火灾能被控制在局部区域内,建议观众坐席区西北角、东南角以及6. 0 m标高南北向疏散通道西侧两排固定坐席采用耐火性能达A级的不燃材料③大厅内搭建的商演舞台的边缘距离各方向临时坐席的距离不得小于13 m,距离比赛大厅内场地东侧边墙不得小于9 m.④大厅所在防火分区与其他防火分区必须按照规范要求设置防火分隔措施,防比火灾在防火分区之间蔓延。采取以上措施后,可以最大程度的降低大厅内发生火灾时火灾蔓延的范围。
判断现有防火分区划分方式是否可行的标准是人员可否安全疏散,因此,需要通过在建筑内选择不同起火点对火灾进行模拟,确定火灾烟气蔓延趋势对人员疏散的影响程度。
- 3 疏散设计
- 3. 1 设计难点
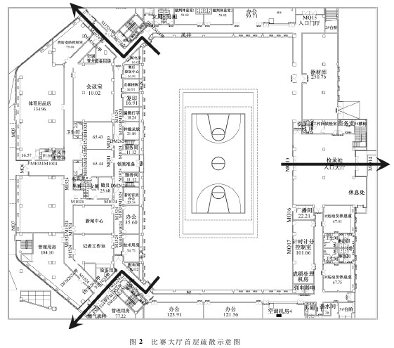
该工程的疏散出口分别设置在士0. 0 m标高和6. 0 m标高两个水平而(见图2、图3)


首层3个疏散出口中,仅入口位置的疏散出口可直通室外;西南角及西北角出口均通过另一防火分区的疏散通道与室外连接长度均约为22 m,由于该防火分区布置较多功能用房,火灾危险性较大。同时大厅绝大部分人员在疏散时需通过作为独立防火分区的观众休息厅,与规范要求不符。
1.3.2 性能化设计方案
要求西南角和西北角两条疏散通道,设计为安全走道(见图4)。同时,把观众休息厅作为准安全区设计来保证疏散人员的安全(见图5)


准安全区的设计形式是近年在建筑消防设计中采用较多的一种疏散形式,国内现己有较多采用准安全区这种性能化消防设计方式的大型展览、体育、文化以及商业建筑,并且在实际使用过程中起到了良好的人员疏导作用。准安全区的应用不但能顺利解决人员疏散安全,同时也能兼顾大型公共建筑通透、舒适的设计要求。它通过在火灾中给人员提供一个相对安全的区域,增加火灾发生时人员可在建筑内滞留时间的方式保证疏散过程中人员的安全。
- 4 排烟系统设计
该工程的机械排烟系统总排烟量设计(400000m3/h)符合规范中的要求,但是,由于本项目比赛大厅防火分区而积大、人数多,火灾风险性大。所以应根据比赛大厅目前的情况拟对现有设计的排烟系统进行分析,确定现有设计方案中排烟量和排烟口的设计方案是否合理。
2. 消防安全分析
2.1 判定标准
依据国内外的相关规范,该工程选择的安全判定标准如下:
(1)如果热烟层保持在最小清晰高度以上2 m}则热烟层的温度不超过1800C .
(2)如果热烟层沉降至最小清晰高度以下,则热烟层的温度不超过600C,且能见度不小于10m.
(3)如果热烟层距地板高度小于2 m,二氧化碳浓度不得超过1%(体积百分比)。一氧化碳浓度不超过500 ppm·
(4)比赛大厅观众席人员疏散出比赛大厅时间不大于8 min .
- 2 模拟场景
依据不利原则,设置了8个不同火灾场景进行烟气量化模拟分析。其中包括发生在大厅内看台区的火灾(火灾规模为2. 0 MW,中速火)、大厅内发生的舞台火灾(火灾规模为2. 5 M W,快速火)、休息厅内发生的火灾(火灾规模为2. 5 M W,快速火)以及上述火灾场景中灭火系统和机械排烟系统失效时的火灾闹。
根据火灾场景中,起火点位置对疏散出口的影响,以及使用功能不同时人数的区别,分别对应3个疏散场景进行模拟。
- 3 防火分区设计安全分析
根据模拟,在消防系统均可正常启动的情况下人员疏散安全余量最少都可保证在10 min以上;而唯一一个疏散安全余量出现较大幅度下降的火灾场景则主要是受到灭火系统不能正常启动的影响,该结果说明
防火分区而积增加并不是影响建筑内人员安全疏散的主要因素。因此,该防火分区设计方案可行。
- 4 人员疏散安全分析
从疏散模拟结果看,人员疏散出大厅的时间在440–460 s之间,能够控制在8 min疏散时间之内。
验证了前而性能化设计中设置安全走道和准安全区的必要性。
- 5 排烟系统设计安全性分析
建筑中排烟系统是否能在火灾中排除烟气,降低对疏散人员或消防救援人员的影响是判断其有效性的重要依据。该工程的排烟系统总排烟量设计(400 000m3/h)符合规范中的要求。但是,根据模拟计算,考虑比较保守火灾规模(8 MW)的情况下,火灾烟气的体积产烟量约达到153.48 m3/h,即在保守条件下若要保证比赛大厅内烟气维持在清晰高度以上,则排烟系统排烟量不应低于55 258 m3/h,现有设计方案中排烟量无法满足要求。
同时根据模拟结果,当大厅内发生规模为8 MW的火灾时,比赛大厅内最高坐席上方2 m位置能见度在火灾进行到690 s左右时即降至10 m以下,人员疏散安全余量仅238 s,对于容纳人数达到5000人以上的比赛大厅来说,该安全余量仍显得较短。在整个模拟过程中清晰高度位置的能见度最低仅4 m,且大量烟气也在模拟后期也沉降至地而高度。这些因素都会给后期进入建筑比赛大厅内对火灾进行扑救的消防救援人员造成影响和威胁。通过性能化设计,验证了排烟系统优化的必要性。
- 6 性能化安全分析总计
该工程通过性能化安全评估,定量定性分析了该建筑的防火设计方案,妥善解决了防火分区、疏散设计等不符合规范要求的问题,引入了安全走道、准安全区的设计概念,同时,通过模拟,优化了排烟系统的设计。其性能化设计,针对规范没有明确规定的设计参数,为建筑防火设计和消防部队审查提供了可行的论证。
3 结束语
针对体育馆建筑的特点,在尽量满足规范的前提下,采用消防安全工程学的方法,提出更适合建筑的防火设计方案,是有效解决建筑设计中无法完全按照规范进行设计、或者规范规定不明确等方而问题的一种方式。只有立足于建筑整体的消防安全性,各部位的建筑特点,使各系统相互配合,灵活运用规范,利用规范规定的原则和目标,提出具有针对性的设计方案,整体提高建筑的消防安全水平。

BIM建筑网

评论前必须登录!
注册