
位于叶卡捷琳堡的RCC总部已正式投入使用。作为福斯特事务所在俄罗斯的第一座办公建筑,该办公楼重构了传统的蜂窝状办公空间,并在空间质量、舒适性和灵活性方面树立了新的标准。这座高15层的建筑的创新模块化办公单元被节能立面所包裹,为叶卡捷琳堡的立面系统引入了独特的印记。

RCC是世界最领先的铜生产商之一,因此立面上三角形的设计灵感源于铜的化学结构。建筑的顶部融入了RCC的新logo,反过来,该logo也是因受到建筑的启发而重新设计的。



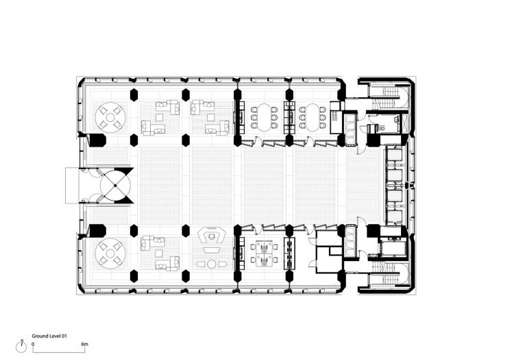
办公平面布置的出发点是将该总部打造成一个“员工之家”,而非传统的大型公共工作空间,办公空间是更加私密的,且具有家庭生活空间的尺度感。项目顾问团队研究了业主对空间的运作情况,设计出了创新型模块化空间系统。然后与内部结构团队合作,实现快速施工,并确保员工能集中工作状态下理想的自然光照水平。




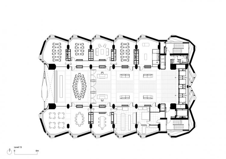
每个双层高的模块都包括两个相互堆叠的办公室——这从双层外表皮模块可以看出。这些模块在中央走廊两侧被布置成两排,而中央走廊作为休息大厅,大厅休息区设置了座椅,并通过玻璃电梯井可望见城市的景色。在十五层,空间是通过顶部采光,为公司范围内的聚会和活动创造了灵活的空间。




项目的设计目标是获得BREEAM(英国建筑研究院环境评估方法)的优秀评级。为了适应叶卡捷琳堡气温季节变化大的状况——通常从零上30度到零下30度变化,实墙和玻璃墙之间的平衡选择是为了适应冬季太阳高度角低的情况,在夏季可以减少阳光直射的热量。



场地俯瞰着城市和近期做了景观美化的河岸。河岸绿地延伸至建筑下方,在底部为员工创造了一处私人花园。


景观与蜂窝状的内部布局相呼应,一系列的“户外空间”为员工休息和吃午餐提供了静谧的空间。
大楼里的其它设施包括一个视频会议室和董事会议室,接待室和领导用餐区。











技术图纸

△ 总平面图

△ 一层平面图

△ 标准层平面图

△ 13层平面图

△ 14层平面图

△ 15层平面图

△ 北立面图

△ 西立面图

△ 长剖面

△ 短剖面

△ 模块分析1

△ 模块分析2

△ 楼梯节点
项目信息
项目类型:办公建筑
项目地点:叶卡捷琳堡,俄罗斯
建筑师:Foster + Partners
面积:18450m²
项目年份:2021
制造商:Irline,Mobil,Solo
业主:RCC (Russian Copper Company)
设计团队:Norman Foster, David Nelson, Spencer de Grey, Luke Fox, Angus Campbell, Jeremy Kim, Jonathan Parr, Mike Holland, Stefan Bench, Dimitri Chaava, Julija Cholopova, Louise Clausen, Amy Company Butler, Patrick Crocock, Elisa Fernandez Ramos, Charlotte Gallen, Raphael Giacomuzzo, Michelle Hudson, Martin Kehoe, Paul Kennedy, Alena Kereshun, Anton Khmelnitskiy, Annabel Knightley, Andy Lister, Sarah Lister, Yuen Nam, Connie Luk, Maria Mallalieu, Luke Moloney, Aleksejus Nevemdomskis, Charlie Parford Plant, Mariia Pashenko, Stelios Psaltis, Dina Timartseva, Harry Twigg, Vincent Westbrook, Michael Woodrow
Foster+Partners工程师:Andrew Jackson, Andrew Coward
其他Foster+Partners团队成员:Paul Kalkhoven, Armstrong Yakubu, Sarah Villar-Furniss, George Fereday, Thouria Istephan, Matthew Burger
合作建筑师:P. M. VostokProekt
结构、机械和电气工程师:Foster + Partners/P. M. VostokProekt
厨房&后勤:Cini-Little International
立面工程:Priedemann
安防系统:WSP
垂直循环系统:D2E
灯光设计顾问:Jason Bruges Studio
交通工程师:MIC
声学工程师:Sandy Brown
景观顾问:Hyland Edgar Driver
总承包商:A1
摄影师:Oleg Kovalyuk

BIM建筑网





评论前必须登录!
注册