
中村拓志& NAP事务所设计完成了一座围绕僻静的花园庭院的日本住宅,这座名为“圣石之家”的住宅位于京都北部的一个居民区,靠近地标性建筑山口神社和比睿山。由于当地人喜欢通过景观来观察天气和季节的变化,因此建筑师决定创造一处能够看见远山、与自然亲密相连的居所。

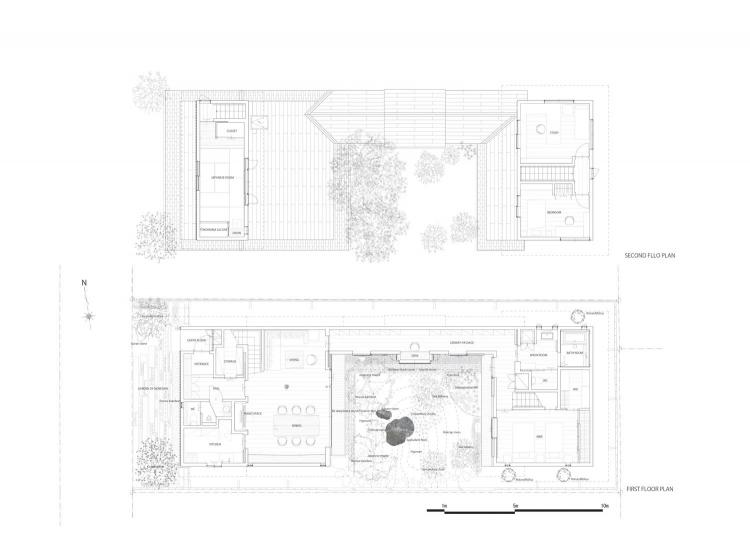
由于场地被其它房屋所包围,中村拓志& NAP事务所在面向街道的立面设计了封闭的竖向木隔栅。同时,在住宅中央,一处户外庭院成为了房屋的焦点——为每个房间引入了自然景观和光线。在庭院中,用房屋打地基时挖出的泥土堆出了一座土丘。用这一新的地形故意遮挡了餐厅和场地后侧卧室之间的视线。餐厅和卧室之间通过一条图书走廊相连,走廊里的书桌对着花园。

“在花园中央,有一块供奉神明的圣石。尽管石头是一种非常物质化的存在,但作为一处神圣空间它仍然具有超越性。我们觉得这种双重性会为这所小房子和花园带来无限延展性。由于中央圣石的存在,花园因此变成了模型化的比睿山。矮小的植物如苔藓,吊钟花和毛竹增加了视觉纵深感”,建筑师说。

建筑师希望通过花园的设计来创造一处适于冥想和开悟的户外空间。“通过增加人坐下时视线下的花园的密度,我们得出了降低眼皮的行为,让眼睛保持半闭的状态。这是人坐禅冥想和凝视内心和外部世界时的自然视平高度。花园的起源据说是一处祈祷的地方。因此花园是一个致力于营造具有虚拟体验的世界,譬如一处可以开悟和涅槃的宁静景观。”










△ 平面图

△剖面图
项目信息
项目名称:圣石之家
项目地点:东京,日本
建筑设计:中村拓志& NAP
主要功能:住宅
场地面积:303 sqm
总建筑面积:175 sqm
项目完成年份:2019.10
承包商:takeda komuten
结构设计:timber
摄影师:TOREAL / koji fujii

BIM建筑网





评论前必须登录!
注册