如果我们对一个问题找到了较好的解答,很可能大自然已经有了答案。
—亚里士多德
场地分析
“雀折”隐藏于什刹海附近的一片胡同院落之中,占地面积136平米。在本次改造之前,房屋结构均被整体翻建过,在中庭院落南北两侧坐拥一座间三开间和一座两开间的传统木结构房屋。整栋院落空置下来后被设定为具有公共活动与酒店租赁的业态空间。

△ 项目位置

△ 场地
概念演示
场地东西两侧紧邻两栋较高的三层建筑,对于合院的压迫感极为严重。所以我们尽可能通过视线上的引导与遮挡来解决场地问题。在对场地调研中,我们发现院落的南北两侧后方有两颗苍天古树,其天际线恰好对于场地产生了适宜的观看体验,我们希望通过借景的手法让远处景观与院落融为一体。

△ 庭院
通过梳理我们以一种倒屋顶“折”的形式作为解决方案,看似鸟翼的屋顶巧妙遮蔽了旁侧的建筑,同时升起来的侧翼景框引导视线看向了远方的天际线。折纸也作为传统文化之一。故而我们得出了“雀折”的设计概念。

△ 概念插画

△ 概念分析图

△ 建筑模型

△ 门头
庭院
庭院地面部分采用传统灰砖铺贴,两侧客房屋顶沿用瓦片设计,保留老四合院特有的古典韵味。“折”型屋顶的板材为镂空结构,与两侧的瓦片屋檐相呼应。阳光透过屋顶缝隙投射至草坪,给予庭院生机和灵动感。两侧墙壁各做出了一个“V”型设计,以原木色呈现,为空间注入自然气息。利用倒屋顶“折”的形式将人们视野拉向天际。


△ 庭院
从视觉上将客房与庭院、甚至对面客房彻底打通,整个空间通透明亮,人景相融、主客互动成为可能,屋顶在延伸视觉的同时,其形似雀鸟的意象更赋予了院落以故事性和灵动性。

△ 庭院
客房
利用原建筑条件我们设计了三间客房,南侧房屋为两开间,为此设计了一间拥有独立庭院和较大卫生间的套房。



△ 南客房
北侧房屋为三开间,对称式设计了两间标准客房,功能一应俱全。屋顶保留原来的房梁结构,传统建筑特色得以展现。地面使用青砖搭配自然的原木色,材质简约古朴。


△ 北客房

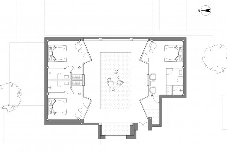
△ 改造前平面

△ 改造后平面

△ 结构剖面
项目信息
项目名称:雀折
项目地址:北京市西城区水车胡同24号
项目类型:胡同院落改造
建筑面积:136㎡
委托业主:北京隐海文化民宿空间
设计公司:戏构建筑设计工作室 XIGO STUDIO
主创设计:刘阳、杨宇森
设计团队:刘尘、郭萌、唐逸伦、王珂、董艺
插画创作:李唯佳
设计时间:2018年10月
施工完成:2019年7月
撰文排版:刘阳
设计顾问:韩文强、杨宇

BIM建筑网





评论前必须登录!
注册