
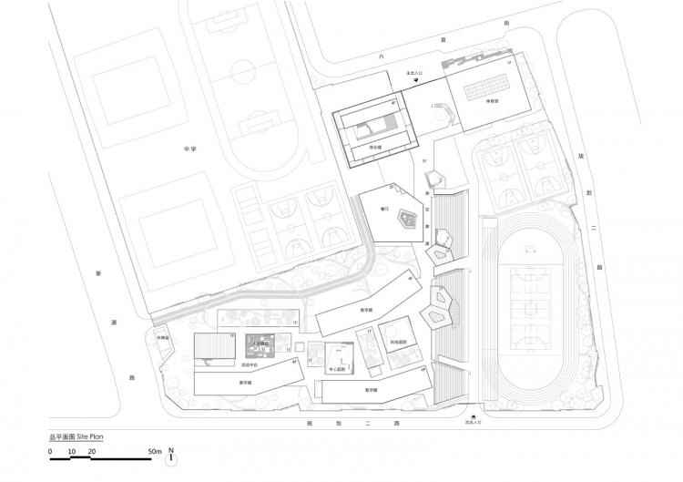
同济大学附属实验小学位于上海嘉定区安亭新镇,主体建筑群主要由教学楼、综合楼、餐厅、体育馆、架空连廊等几部分组成。设计延续了原有基地的建筑肌理,根据学校功能空间动、静的需求,通过不同尺度、不同开敞程度的庭院、廊道和运动场,将教学、办公、运动空间串联起来,建筑形态及外部空间的塑造注重与城市的融合。

新城语境与江南文脉
小学位于安亭新城门户的位置,为了应对大流量的城市道路车流,将操场设置在靠近主干道的东侧作为过渡,开阔的运动场也为城市提供了良好的景观面。


操场旁边草坡形式的地台,从初始“坡”的概念演变为阶梯式,以植草台阶结合混凝土收边,既保有坡地的形式,又满足运动场看台的功能,是一种地景式的基础设施。



小学处于上海与江苏的边界处,设计挖掘传统江南水乡的地貌特色,以院落空间布局的组织方式,使区域原有空间特质得以延续。建筑体量的后退释放、地势的自然过渡、建筑形态的高低变化均是从大自然空间中获得灵感。与此同时也打开了城市空间层次展示的一扇窗,课间时,运动场、坡地草坪、平台、南向走廊等空间都是孩子们自由活动的场地。



多重空间与主题庭院
学校的功能空间有动、静的不同需求,设计的重点是在空间关系上体现出变化和不同的可能性。团队充分考虑了师生的心理感受,空间设计注重收放,通过不同开敞程度的庭院、廊道、运动场地的有机组合,使室外空间富有层次感和趣味性。
多重空间的设置,引导孩子们在各种空间中探索。进入校园,首先经过连接整个校园的连廊,三个五边形的庭院空间依次展开。

△ 总平面图

半开敞的廊道具备双层交通空间,同时也是课间活动的重要空间。



教学区设有人文、科技、和艺术三个主题庭院:对间距、日照要求相对较低的三组专业教室环绕在庭院周围,餐厅、综合楼也各自设置天井式的庭院,引入天光。

△ 庭院类型


△ 模型
在二层教学区,连廊扩展为大平台,平台上设置了若干个塑胶场地,这样三四楼的孩子可以直接在二楼平台活动。塑胶场地的位置与底层的功能教室对应,功能教室的屋面排气通风口,在这里被设计成儿童座椅。二层平台东侧连接草坡,自然延伸至操场。



景观步道铺装使用了传统青砖,结合不同空间的特征选择差异性的几何母题,带来亦静亦动的乐趣。在主题庭院以直线元素为主,汀步从走廊的边界向庭院内延伸。


而外围绿化中则多为曲线步道,教学楼北侧生态游园中的消防车道以同样的铺砖方式融合,犹如藤蔓从枝干延展出去。不同的树种分别立于入口广场和各个庭院之中,带给师生四季不同的空间记忆。



建筑单体与空间细部
教学楼
在教学楼形态的处理上,设计强调进深感和沿河立面的反光效果。每一栋教学楼都根据规范要求和红线做了体量上的转折。

南立面的宝蓝色釉面马赛克,在阳光下形成丰富细腻的视觉效果,并在大尺度的城市门户空间中形成一种消隐多变的体量感。

教学楼分为三栋长形体量,标准层均为四间教室俩俩成组,转折处打开与南向的室外走廊连接成一体,扩大走廊空间也提供了视线北望的机会。



东侧的楼梯也有空间体验上的变化:底层在平台下与庭院空间融合,到二层平台视线开敞,再到三四层时,被混凝土砌块花格山墙包裹起来,形成半围合的状态。



教室南侧利用600mm的墙体厚度,设置了300mm和600mm高的坐面。空调外机藏于北立面的铝格栅之后,与之对称的部位使用玻璃砖,平衡立面构图,同时补充室内采光。


音乐教室与德育展厅
五边形音乐教室和德育展厅作为特定教学空间,层高高于普通教室,同时设置天窗。音乐教室为两个五边形教室组合,德育展厅则为五边形教室+五边形庭院组合。


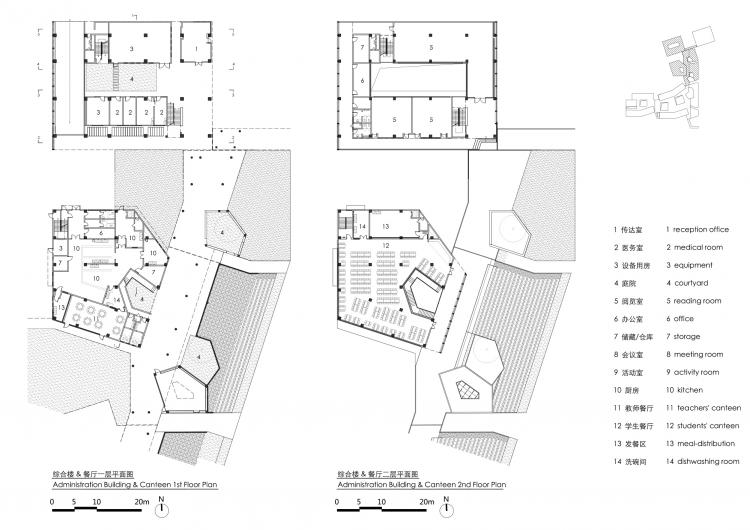
餐厅
餐厅同样以五边形平面作为原型,一层是厨房与教师餐厅,二层的学生餐厅南面和西面为连续的落地窗,视线开敞通透,分别面向生态游园和中学操场。餐厅与北侧行政楼、南侧教学楼通过连廊在一二层均相连,连廊二层东侧的混凝土花格墙形成半围合空间,增加了一些内敛气质。餐厅围合出的五边形天井引入天光,并与连廊中其他五边形庭院形成序列。不同的是,这里采用了与教学楼相同的宝蓝色釉面马赛克,并设有折线楼梯通往二层。室内吊顶利用梁板空间向上形成折线坡顶,顺应建筑轴线方向形成了独特的吊顶形式,应充分利用了室内净高。


行政楼
行政楼南北两排体量与走廊围合形成长方形庭院,南北立面白色实墙和东西立面混凝土花格墙形成整体性的虚实对比。东立面的花格墙与体育馆白墙一虚一实围合成主入口广场。西立面花格墙在解决遮阳的同时也面向中学形成了完整的建筑界面。内部庭院立面材料采用宝蓝色釉面马赛克,首层西侧以玻璃砖正对庭院入口。

风雨操场
风雨操场是一个功能相对单纯的大进深运动空间。设计通过详细的日照分析和方案推敲,在立面三米以下的高度设置了三面采光和通风的大面积落地玻璃,在层高10米之上的屋面设置了挑高3米的大尺度天窗,并在天窗侧边安置可开启通气扇。


天窗下面的穿孔金属遮阳板,低技但有效整合了结构、管线、灯具和幕墙构造。为校园里这个最大的空间,提供了自然采光、自然拔风的被动节能方式,使它成为整个校园里最好用、最舒适、和最受欢迎的场所之一。

何谓双重实验
由于教育建筑的普遍性和规范性,教育建筑的侧重-特别是为公办学校设计的建筑-在一定程度上有别于许多其他类别的文化建筑或地标建筑。在本案的前期规划设计、建造、和投入使用以来的后评估过程中,设计团队关心的不仅是建筑本身,更多的是如何通过校园空间,更大程度的塑造和启发学生的日常学习、行为活动、身体感知和心灵触动。教育不仅关乎知识,更关乎人的身心发展,在这个意义上,同济实验小学是一次教育空间与教育理念的双重实验。










模型



图纸

△ 一层平面图

△ 教学区一层平面图

△ 教学区二层平面图

△ 教学楼标准平面图

△ 教学楼立、剖面图

△ 教室轴测

△ 教室轴测

△ 普通教室立、剖面

△ 综合楼、餐厅平面图

△ 标准教室、音乐教室、多功能厅轴测图

△ 图书馆、学生餐厅、风雨操场轴测图

△ 餐厅、行政楼剖面

△ 风雨操场平面、剖面图

△ 剖面:平台连接草坡和操场

△ 新政楼墙身大样

△ 总体景观策略
项目信息
项目类型:小学及初中
项目地点:ANTINGZHEN,中国
设计方:刘宇扬建筑事务所
面积:26200m²
项目年份:2016
摄影师:CreatAR Images,陈颢
委托/建设单位:上海国际汽车城(集团)有限公司
合作设计院:上海江南建筑设计院有限公司
施工单位:上海博蓝建设发展有限公司
主持建筑师:刘宇扬
项目建筑师:吴从宝
驻场建筑师:林益洪
设计团队:李宁、杨凯、曹飞乐、王珏、王珂一、杨明喜、丁晨、吴佶、曹晓宇、李丰言、郭丁凡、马腾、王军

BIM建筑网





评论前必须登录!
注册