
△ 客厅
人生的本质是诗意的,人应该诗意地栖息在大地上。—— 荷尔德林
理念阐述
河流的精神是大地的寓言,我们通过对于“地景原型”的提取,希望创造一种新的生态住宅。「观境」是一次对住宅景观空间的全新建构,它预示着生命繁衍不息,也暗示着无尽的自然。

△概念图
场地分析
项目地点位于北京市昌平区天通苑地区板式结构居民楼,原始户型为常规的三室一厅,位于六楼顶层。委托人为三口之家,男女主人是电视工作者,但他们日常对电视使用需求却非常低;还有一个正在上幼儿园的小男孩,活泼童真。所以在这座老旧住宅之中看似涣乱的同时,也承载着一家人对美好生活的向往。

△场地分析
原始户型三面环窗,中间客厅的四个立面紧邻各方入口,可利用墙面极其短缺,导致使用效率低下。我们试图打破原始的户型格局,将空间进行重构。将阳台作为主要设计节点,通过串联,形成一个开放的流线型公共空间。同时在流线周围设置功能,满足日常生活居住需求,阳台作为一个灰空间连接着室内与室外,也通向了无尽的天边。

△改造前平面

△分析图
概念梳理
为了打造一个多视角场景,我们将客厅座位视点引向斜向角度区域,此视点可同时贯通至两侧阳台。同时考虑到女主人喜欢种植,“景观阳台”的概念得以出现。如同一个室内后花园,居住在六层享受阳光的同时依然可以享受到绿色生态带来的欢愉,就像荷尔德林那首诗歌:“人,诗意地栖居在大地上。“

△模型图
玄关
入口玄关处设计了通顶的鞋柜与换鞋凳,入户后所有的光口全部打开。有趣的流线型空间动线提供了强大的活动区域,亦感受到空间的尽头通向天边。


△玄关
餐厅/厨房
流线转过来是餐厅,富有流线结构感的桌子与空间遥相呼应。餐厅相连接着厨房,沐浴日光和绿荫的同时进行着烹饪和涮洗,也成为了一种别样的乐趣。

△餐厅


△厨房
客厅
客厅通过两个弧形沙发并列组成,同时也构成了卫生间、卧室等私密区的结构边界。
沙发两侧设置书柜提供日常阅读,电视背景柜体为一个杂物收纳柜,可用于收纳日常用品,台面也可作为水吧台使用。
在观影与欣赏阳台两侧绿色的同时,我们突破原始户型局限性,创造出一条如河流般的动态活动区域,可承载孩子与父母日常的活动与娱乐空间。


△客厅
阳台
两侧的阳台以“景观阳台”为概念,设计了三层阶梯状休息区,与人相对应尺度设计了踏步和坐台,满足女主人高层种植爱好的同时,也可在绿植下享受阅读与休闲时光。

△阳台
卫生间
在卫生间中可以享受到“雨中漫步”的体验,透过卫生间的弧形玻璃,可以看到一个双层重叠的弧形环绕形态,形成天然的林中沐浴取景框;通长的洗手台面,为日常家务提供便利;小花砖与绿色柜体也与景观相呼应。



△卫生间
卧室/儿童房
木质材料延伸进卧室,整体自然温馨。主卧室的后方设计了衣帽间,承载了强大的收纳功能。儿童房木色墙板通体,为孩子创造独立舒适睡眠区域,在安静中入眠。



△卧室
书房
半开放式的书房可容纳两人同时办公学习,为一家人提供了一个非常完善的工作环境。

△ 书房
写在最后
「观境」是一次对住宅景观空间的全新建构,通过梳理“地景原型”,引入流线动线置入场地,连接与户外相邻阳台作为生态景观建构,彻底打破传统住宅户型。同时最大限度引入光线,设计全新观看视点,为“人,诗意地栖居”提供了一种具体化、形象化的居住范例。

△ 轴测分析图

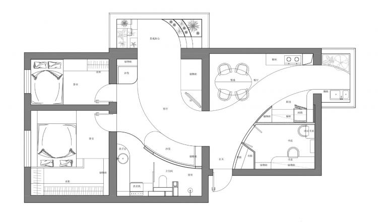
△ 改造后平面
项目信息
项目名称:观境
项目地址:北京市昌平区天通苑地区
项目类型:老旧改造
建筑面积:103㎡
设计公司:戏构建筑设计工作室XIGO STUDIO
主创设计:刘阳
深化设计:张艺馨王丹
助理团队:罗爽杨富达
图学表现:蔡晴
主要材料:特可耐树脂、立邦漆、科定木饰面
家具定制:大信橱柜、半朴堂家具定制
设计时间:2019年6月-2019年8月
施工工长:朱新贵
施工完成:2020年11月
撰文排版:刘阳、李娅楠
空间摄影:立明
学术顾问:朱力
联系微信:xigo-studio
公司邮箱:[email protected]

BIM建筑网





评论前必须登录!
注册