
十二都MAGIC BAR是GB SPACE(高白空间设计事务所)设计的一家具有近景魔术表演独特体验的酒吧,位于北京市朝阳区金汇路中骏世界城E座E158,项目面积约103平米。
在此项目中,设计师受沉浸式戏剧为启发,融入场景化设计将空间划分成几处室内生活场景,打造复古的中世纪“魔法师之家”,在空间中使人可以完全参与到这位中世纪魔法师的生活,沉浸在与外界完全不同的氛围里。

空间中的场景主要分为外立面的走廊场景;玄关处的餐厅场景;吧台处的客厅场景和表演区的书房场景。设计师在每个场景处设计了反射装置,利用镜面与单反镜面打造了具有无限延伸效果的餐厅、书房、走廊场景,这些反射装置中的场景强化了每个空间的功能,也增强了魔法世界主题的氛围。

此空间有两处入口,一处为底商的外立面主入口,另一处为通往商场内部的次入口;外立面入口将室内的走廊场景反转到室外,让人有直接抵达魔法师家门口的感受,主入口设计了双门形式,一扇门打开是真实的主入口,另一扇门打开则看到无穷尽的走廊场景,走廊场景中一侧是门,另一侧是窗,可以通过室内打开这扇门使人进入到装置中,双门的设计增强了人与空间的互动和空间的神秘感;另一处入口也较为隐蔽,是由一扇假门和一个可移动柜子组成,柜子中呈现的是魔术师近些年在表演代表魔术’变形叉子’中所使用的叉子道具组成的装置。
主入口进门之后看到无穷尽的餐厅场景的反射装置,餐桌的布置可以通过开敞的窗口来随时更换,结合不同的节日或故事内容,可更替内容的装置使空间更加的真实。

△ 分析图

餐厅旁连接着客厅场景,这里融合了吧台功能,设计师将吧台后部墙面设计为客厅的挂画墙面,利用画框的元素将酒架和画作融合在一面墙中,画作的选用来自于《History of magic》一书中对于各阶段历史的代表魔术表演与场景;由于酒吧具有近景魔术表演的性质,有别于传统酒吧需要吧台更像是一个表演的平台,设计师加宽了太太的宽度,满足魔术师表演的空间,吧台连着的反射装置为图书馆场景,反射出的一排排书架效果中塞满了这位中世纪魔法师的收藏书籍以及魔术道具;进一步反应了主人公的生活状态。



吧台对面设计了一处有台阶的书房场景,此处台阶满足了魔术师中景魔术表演的需求,此区域由壁炉、存酒区和一处通往这个书房的走廊反射装置组成。

空间的天花与地面跟随不同的场景做了界限的切分,使场景本身可以独立作为一个完整的空间;室内灯光极为昏暗,只有反射装置及吧台的魔术表演区域设计了局部重点照明,魔术表演区域的照明均为遥控控制可根据需求随时调整光线强弱;为了使家庭的环境更真实,设计师在没有任何采光的室内墙面设计了窗户造型,利用灯带投射出黄昏的光线,营造空间氛围。

室内施工中大量的家具和造型由现场施工及成品石膏实现,大大缩短了施工时间,墙面利用木纹漆涂刷出作旧肌理,家具以皮质和丝绒材质为主,体现魔法师人设的生活品质和家环境的舒适性,颜色以暗红色和橘色为主,搭配空间的深色胡桃木,为空间增加复古色彩;空间中的门框四周设计了扑克牌花色的细节,做为符号性元素,让人在进入门的时候可以读懂魔法师之家的属性。



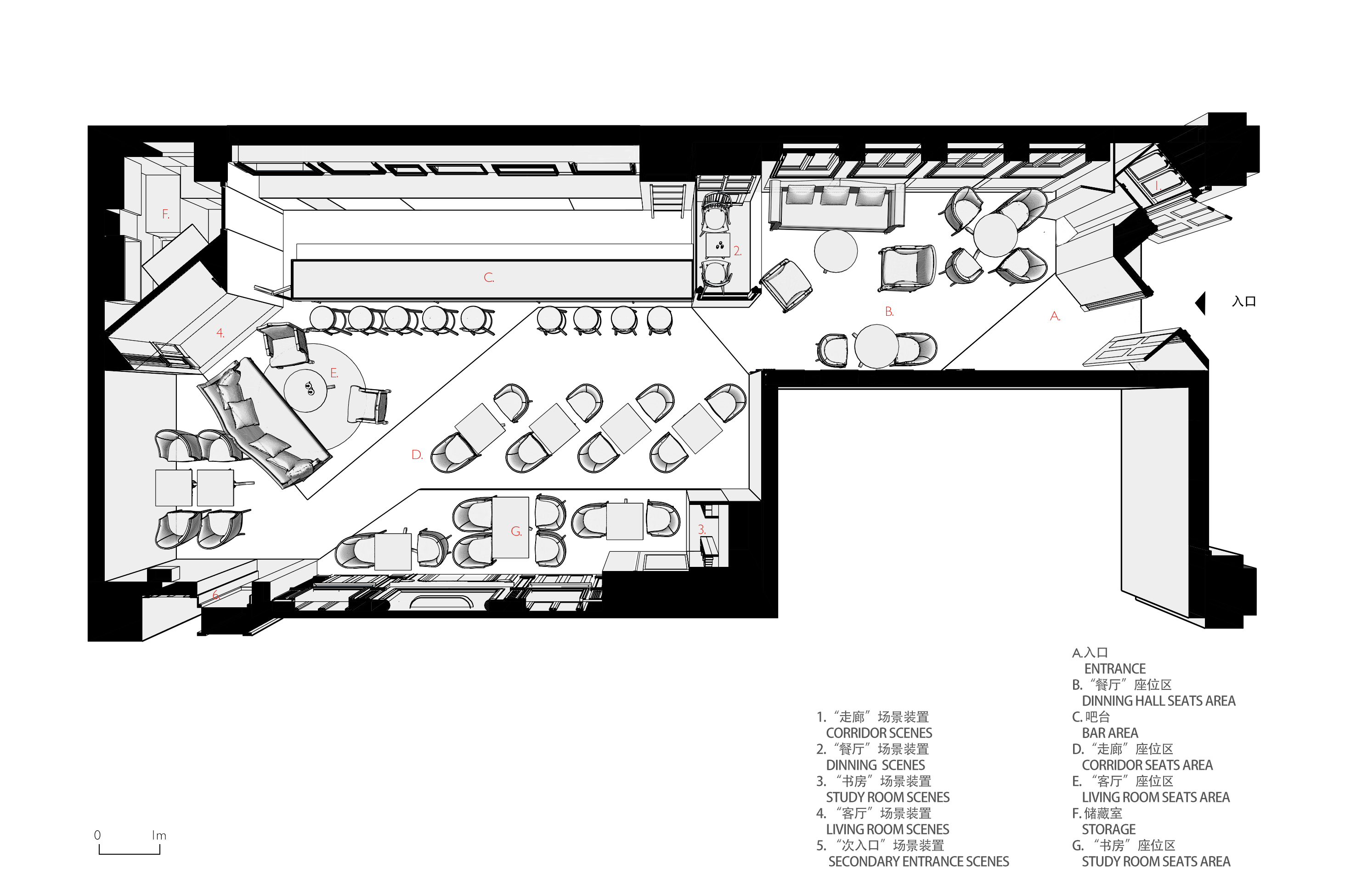
△ 总平面图
项目信息
项目名称:十二都MAGIC BAR
地点:北京市朝阳区金汇路中骏世界城E座E158
竣工时间:2020年10月
项目面积:103m²
设计公司:GB SPACE⾼白空间设计事务所设计师:高文毓、白杨、高元
使用材料:胡桃木,木纹漆,木纹砖,镜面,单向反射镜面
摄影师:王宁

BIM建筑网





评论前必须登录!
注册