
考虑到满足三个运动场的功能需要很大的建筑体量,和现场有限的场地条件以及当地高城市密度之间有所矛盾,建筑师决定将大部分体育综合体设计为半地下。为确保半地下空间良好的采光、自然通风、进出方便和安全疏散等舒适性问题,设计师对建筑进行了精心的设计。

将大部分建筑体量置入地下的决定不仅减少了地面上的视觉遮挡力,还产生了一个额外的城市开放空间。这个空间可以作为公共门厅,容纳偶尔涌入的大量游客和居民。人们穿行于这个广场,也是宽阔一些的城市街道的一部分。

建筑系统主要以砖为基础,与当地众多的旧工厂、仓库和车间风格相符。建筑的结构和材料构成了它的形式与空间,建筑师没有添加额外的元素。因此,砖成为建筑的主要元素。

裸露的红砖以不同的角度叠放、穿插着透明空隙作为建筑立面。透光处理的目的是为建筑内部提供光照,而红砖的精心摆放则是为建筑提供一个别样的立面纹理。


我们可以看到裸露立面上的砖格墙保护庭院免受阳光直射和可能的眩光,相反,北侧立面下部的大面积玻璃区域向入口大厅开放。

建筑的地面体量由一个柔和弯曲的屋顶完成,倒置的拱顶融入环境中,在某种程度上呼应了邻近仓库屋顶的秩序和存在。这种曲线的完成有助于减轻建筑大体量的沉重感,并构成其氛围的一部分。


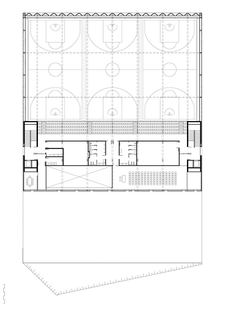
内部的布局是非常清楚的。其功能不仅仅有位于不同楼层的体育场,还有一些规模较小的更衣室、存储功能和服务空间、通信安装场所(垂直和水平)。这是很大,但功能紧凑的建筑内部。



半地下结构的额外好处是,由于减少建筑暴露在外的空间,使得建筑的隔热效果更加良好。建筑的能源效率得到很好的优化。随后,再通过一系列不同规模的措施(太阳能保护、交叉通风、自然采光和可再生能源的使用),更加减少了建筑运转所需的能源。该建筑获得了LEED金牌认证。


项目图纸









项目信息
建筑师:AIA Activitats Arquitectoniques、Barcelo-Balanzo Arquitectes、Gustau Gili Galfetti
结构:BAC 能源效率:AIA 站点管理:SGS 项目管理:Qestudi LEED管理:Develop Index Ambiental.
业主:District of Sant Andreu / Barcelona City Council managed by BIMSA.
工程:UTE OHL /Calaf.
面积:7237平方米。
日期:2016 – 2020
位置:西班牙巴塞罗那。
摄影:José Hevia,Simón García (arqa).

BIM建筑网





评论前必须登录!
注册