
©邵峰(榫卯建筑摄影)
苏州湾文化中心
苏州湾文化中心位于苏州吴江太湖东岸,是苏州湾启动总体规划的标志性项目。2013年,当普利兹克奖得主、建筑设计师克里斯蒂安·德·包赞巴克(Christian de Portzamparc)初次来到东太湖看到这一片空地的时候,开阔的平原、无垠的水天一色令他印象深刻,吴江太湖新城的规划更是充满雄心,如曼哈顿一般繁荣的景象跃然纸上。


△效果图
蓝图上的城市以一条垂直湖岸的宽阔步道为中轴线,人们可以在那里相遇,文化中心处在轴线尽端湖岸之上的重要位置,包赞巴克意识到须要有一种纽带将场地中的要素(城市、天空、湖水、人)联系起来,“飘带”的灵感正源于此。


△ 效果图
项目开始后,建筑师每次造访工地时均感到惊讶,工程效率如此之高,这片区域逐渐鲜活起来,类似摩天大楼林立的纽约曼哈顿半岛,各个建筑延通中央大道轴线两边呈网格排列。中央大道与太湖的交汇处是这一带的核心域,围绕核心区两侧,苏州湾文化中心拔地而起,在周围诸多优秀建筑中独放异彩。

©邵峰(榫卯建筑摄影)
苏州湾文化中心项目分为南北两个片区:北区是已经竣工的苏州湾大剧院,南区是未来逐步开放的博览中心,包括博物馆、展览中心及会议中心。从湖上的行人轴线处展望就像两片“翅翼”。方案伊始,包赞巴克希望聚合基地中分散的建筑物,使大剧院、博物馆、展览中心和会议中心,以及周边的商业空间凝聚为有机的整体,人们置身其中享受空间的活力。因此,包赞巴克决定将这两个“翅翼”在建筑顶端连接起来,在核心地带创建一个朝向天空的巨大拱门,从远处便清晰可见。
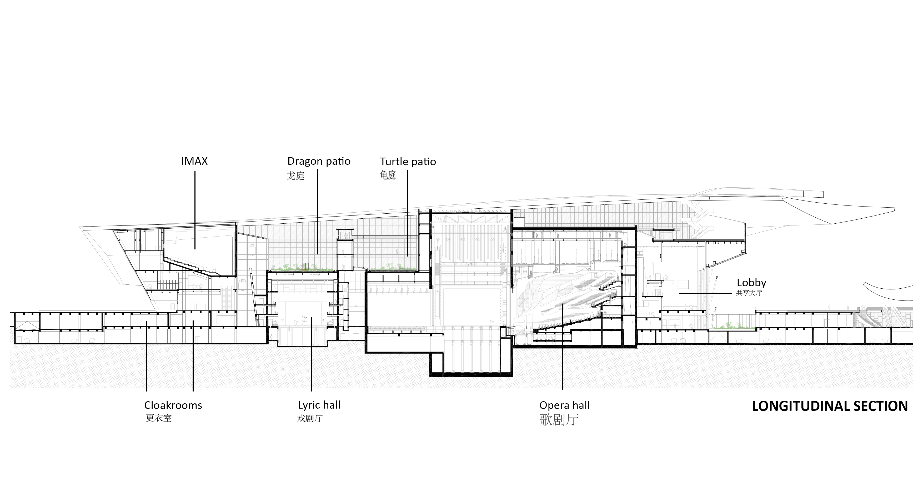
苏州湾文化中心总面积为215,000平方米,沿着城市轴线在其南北两侧分布,北侧包括一个可容纳1600座的歌剧院、一个可容纳600座的戏剧厅,10余间排练厅、一个圆形艺文空间、影城、咖啡厅和餐厅;南侧包括一个博物馆,一个展览中心,一个会议中心;两者通过地下一层的车库和一层的购物中心及后勤服务连成一个整体。整个项目由法国包赞巴克建筑事务所与中衡设计集团股份有限公司作为联合体完成全程的一体化设计。

△ 轴测图

△ 西立面图


©邵峰(榫卯建筑摄影)
“飘带”
有别于现代主义的方盒子,建筑师设计了一根长条状的“飘带”,形如“∞”,从建筑顶端的一片翅翼绕至另一片,接着越过立面,在距地面高达40米处与行人轴线交叉,以构筑通往湖水的视觉开口,高低两条钢结构飘带交织成极具标志性的建筑特征,既是大剧院的屋顶,也是博览中心的侧壁。看似柔软的“飘带”,充当了桥梁和沿太湖观景台:“飘带”的两个环圈覆盖了行人轴线与湖泊交汇处的中央大道,这一中心位置便于游客自由访问分布在轴线南北两侧的众多文化设施,“飘带”将人从湖畔带到空中再到地面,与伸入太湖的“8”字型阅湖回廊垂直汇合,实现建筑与城市之间的循环融通。

©邵峰(榫卯建筑摄影)
“飘带”的表面材质由阳极氧化铝板制成,通过反射集城市和湖光于一身,形成一种新的景观,跨度超过500米的虹彩反射。从城市轴线看,“飘带”如苏州的飞桥,亦如昆曲中的水袖舞动,以曲线和反曲线的形式存在于整体城市景观中。飘带的起舞带动线条上升,时而遮挡、时而显露天空,构成了别样的景观。建筑师还巧妙地在飘带上设置了人行通路:飘带上有一条40米高的小路,从那里可以俯瞰整个城市和苏州太湖水天一色的独特景致。这种移步换景的建筑体验恰好与体验苏州园林的美感相似。






©邵峰(榫卯建筑摄影)
出生于1944年的包赞巴克是法国首位普利兹克奖获得者,包赞巴克主张建筑应更多地与城市对话,倡导“开放街区”以更新城市结构。在过去的十几年间,包赞巴克曾数次造访中国,从中国传统哲学经典获得启迪。在包赞巴克看来,《道德经》中的“凿户牖以为室,当其无,有室之用,故有之以为利,无之以为用”,以及《易经》“阴阳互动”的思想体现了中国哲人独特的空间观。
在文化中心的设计中,包赞巴克意识到,以“∞”字形飘带相连的翅翼似又反应出了中国传统哲学中的阴阳交替之意,其“流动”的象征意义与苏州古典建筑的屋顶曲线、音乐的主题不谋而合。包赞巴克在日本奈良国际会议中心曾以莫比斯环为主题,并在罗安达乌干达文化中心和南京中国江苏大剧院设计了以飘带拱门覆盖的公共空间,苏州项目是建筑师在该领域的进一步实践。包赞巴克把文化中心比作一个巨大的城市露台,人们可以随意抵达亲近湖水和天空,包赞巴克认为“天人之际”正是中国哲学和诗意的所在。


©邵峰(榫卯建筑摄影)
剧院大厅
步入剧院大厅,挑高22米的长廊给人以宫殿般的空旷之感,穿透玻璃幕墙的斑驳光影铺满大堂,极具音符的律动感。一系列色彩的变化组成的节奏,如同畅游在音乐中,包赞巴克认为,人们是在运动中探索建筑,这和欣赏音乐是类似的。剧院的西侧玻璃幕墙外,布满了钢结构的“竹林”,正是它制造出大厅光线斑驳的变化,但更为重要的是减少大部分的西晒,使建筑更加节能。










©邵峰(榫卯建筑摄影)
歌剧厅
与传统剧院工整排列的观众席不同,整个歌剧厅采用了非对称设计,观众席仿佛层层叠叠、盘旋而上的花瓣,被剧院内壁片片绿叶状声学装饰与机械反声天花重重包裹,诗意的设计带给观众天然的沉浸式体验——每一片“花瓣”上的座位都是独一无二的。声学设计大师徐亚英对剧场每一个角落听感的细致调校,利用国内剧院最大升降幅度的机械反声天花、可拆裝的舞台反射罩改变体积和混响,在同一个空间中实现所有演出类型所需的声学环境,包括满足交响乐声音浑厚的效果追求,和人声表演对声音清晰度的要求。值得一提的是,在舞台乐池的两侧,特别设置了灵活可变的中国戏曲乐队席,为京剧、昆曲等戏曲演出提供特别的乐队伴奏场地。



©邵峰(榫卯建筑摄影)
戏剧厅
600座的戏剧厅采用了当今最流行的“黑匣子多功能剧场”的设计,可根据演出类型调整舞台和坐席空间比例。戏剧厅外另有圆形的艺文空间则为各类小型的展演活动提供了一片天地,高自由度的舞台呈现表演的无限可能。


©邵峰(榫卯建筑摄影)
科技
苏州湾大剧院为中国观众带来领先全球的剧院科技——亚洲首家、全球最大的沉浸式科技演艺剧场——“8K未来剧场”,“8K未来剧场”将采用国际最先进的8K超高清技术、激光跟踪、3D动画等尖端技术,呈现观赏性极强的巨幅高清立体影像和前所未有的沉浸式体验感。苏州湾大剧院将广泛与国际知名机构和艺术家合作,为中国市场带来包括“文化遗产”、“天文奇观”、“多媒体演艺”等主题在内的丰富内容。


©蒋飞
建筑结构
助力实现建筑标志性的“飘带”结构,是由ARUP奥雅纳特别设计、中衡设计完成深化及施工图的“脊桁架”串联三角形的“空间弯扭管桁架体系”支撑。创新的结构和幕墙一体设计赢得两项全国第一:高位飘带最大跨度达100米、低位飘带长度达370米,分别为目前中国钢结构飘带的跨度与长度之最。



©邵峰(榫卯建筑摄影)
剧场运营
苏州湾大剧院由苏州湾文化中心与CMC Inc.华人文化集团公司旗下公司华人梦想共同运营。华人梦想是专注于舞台戏剧内容制作和剧院开发及管理运营的行业顶尖公司,制作的音乐剧《妈妈咪呀》中文版、《谋杀歌谣》中文版、互动式戏剧《金钱世界Lies》等都是爆款线下文娱产品,由华人梦想运营的上海九棵树未来艺术中心也以“森林剧院”的美誉成为南上海文化地标。


©邵峰(榫卯建筑摄影)
结语
从江南曲巷的城市肌理一路延伸,苏州湾向太湖打开怀抱,作为城市演化的前沿要地,苏州湾文化中心将以一种新的尺度回应人文传统与现代性之间的关系,展现古老而富有活力的城市性格。苏州湾大剧院的落成将开启一段新的城市历史,期待不久的将来,集大剧院、博览中心、IMAX影院及商业等功能于一体的苏州湾文化中心全面开幕。



©邵峰(榫卯建筑摄影)
【提要1】
从江南曲巷的城市肌理一路延伸,苏州湾向太湖打开怀抱,作为城市演化的前沿要地,苏州湾文化中心将以一种新的尺度回应人文传统与现代性之间的关系,展现古老而富有活力的城市性格。
【提要2】
包赞巴克把文化中心比作一个巨大的城市露台,人们可以随意抵达亲近湖水和天空,同时被“飘带”环绕。苏州湾文化中心的建成将开启一段新的城市历史,演绎“天人之际”的中国哲学与诗意。

©邵峰(榫卯建筑摄影)
设计图纸

△ 二层平面图

△四层平面图

△北立面图

△短剖面

△长剖面
项目信息
项目名称:苏州湾大剧院
客户:苏州市吴江城市投资发展集团有限公司
苏州湾文化中心规模:
苏州湾大剧院(北):1600座歌剧院、600座戏剧厅、圆形艺文空间,IMAX影院。
博览中心(南):博物馆、展览中心、会议中心、电影院、咖啡馆、餐饮、购物中心。
苏州湾文化中心总建筑面积:215,000平方米
苏州湾大剧院建筑面积(北):110,000平方米
博览中心建筑面积(南):博物馆28,000平方米、展览馆15,000平方米、会议中心20,000平方米
商业配套:14,000平方米。
历时:2013年至2020年12月竣工
建筑及室内设计:Christian de Portzamparc 克里斯蒂安·德·包赞巴克
合作设计方:中衡设计
声学顾问:徐氏声学艺术顾问事务所
舞台工艺顾问:英国剧院项目咨询公司TPC
结构与立面顾问:奥雅纳Arup
灯光概念顾问:Artill
景观顾问:Régis Guignard
现场建筑师:AND Studio安棣建筑设计
导视设计顾问:法国Production Type字库公司
摄影:邵峰(榫卯建筑摄影)、蒋飞

BIM建筑网





评论前必须登录!
注册