项目位于天津市蓟州区,原本是一栋独立的农家小院。业主崇尚陶渊明的精神境界,尤其喜爱《归园田居》这首名作,在小院改造之初,从“少无适俗韵,性本爱丘山”中为小院取名,是为丘山居。
丘山居所处的村庄位于著名的盘山风景区南侧,村庄四面环山,风景优美。津蓟高速公路由东向西通过把这个村庄切分为南北两片,丘山居位于北片区,南侧院墙距离高速公路不足30米。基地东侧是一片高大的杨树林,西侧是一小片竹林,北侧是菜地,建筑的墙体和院墙都为白色,远远望去,像一片白云漂浮在山坡之上。

△ 总平面图

△ 夜景鸟瞰
改造与生长
这是业主自家的宅基地,从上世纪60年代第一次修建住宅至今,其祖辈已经重建或改造过三次,逐步形成了一个被矩形院落包围的L型住宅。之前的房屋年久失修,面貌破败,受到高速公路的噪声干扰,居住品质较差。业主自幼在这里长大,虽然目前在城市里工作和生活,但一直没有忘记曾经养育自己的老家,计划为父母和孩子打造一个“世外桃源”。
虽然是在乡村,政府的法规控制亦相当严格,只能在原有的建筑轮廓范围内建设,且高度限制为一层。这是限制也是挑战,它促使我们思考,虽外部边界不可突破,外部环境亦不可改变,建筑能否在内部生长,并采用智慧的方式与现有环境相处?

△ 改造前
阳光房:空间的主角
建筑的布局与改造前一样,但我们对功能进行了重新布局。建筑的东西向体量上布置了三间卧室和一间书房,南北向体量上布置了厨房、餐厅及配套用房。两个体量用一个带状的阳光房来连接。这个布局重新组织了建筑和院落的关系,更回应了当地气候、隔声减噪的需求。我们在阳光房局部放大形成一个茶室,创造了一个趣味空间。
改造前的房屋中,堂屋是空间的主角,这也是中国传统住宅的典型组织方式。而改造后,阳光房是空间的真正主角,它不仅是交通空间,更是家庭的公共活动空间。大人在茶室里品茗,孩子在长廊里奔跑,阳光从天窗泻入,美丽的景色从大片的落地窗映入室内。在阳光房里,建筑和风景进行了紧密的融合。

△ 路径活动分析

△ 建造分析

△ 建造过程

△ 改造后
庭院:建筑的延展
建筑和庭院是一个统一的整体,方形的前院里,我们增加了景观水系,水从南院墙的喷泉口流出,依次经过三个水池,到达茶室下方,暗含了“曲水流觞”之意。后院为带状,从每个房间均可进入后院。前后院的地面均以碎石子满铺,并用青石板铺设小径,原有的树木都予以保留,这是小院的历史记忆所在。

△ 庭院水池

△ 阳光房立面

△ 借景
阳光房的东侧尽端有楼梯通往屋顶露台,露台被杨树林所包围,形成了一个感受大自然的绝佳场所。在露台上,既能眺望北侧的山脉,亦能观赏庭院的景观,感受阳光和风。庭院因露台而立体化,风景也变得更加立体。

△ 院景
关联的建造
在建筑的改造中,我们采取了与历史对话的形式,称之为“关联的建造”。出于就地取材和成本控制的考虑,建筑主体延用了砖木混合的结构形式。东西体量中,砖墙和抬梁式木架混合承重。业主请来村里70多岁的老木匠重新制作了榫卯形式的木架,坡屋顶也复原了当地住宅的样式,并增加了天窗。阳光房则采用了钢结构形式,茶室下部悬挑,突出了钢结构的轻盈,与主体的厚重形成了对比。

△ 阳光房长廊

△ 书房室内

△ 餐厅室内
对于材料,我们采取了“循环使用”的策略。老房子的石头基础、东西山墙、院墙都得以保存,拆除的红砖重新砌筑成墙体,原有的玻璃用作阳光房的天窗,瓦片、木料等则作为景观和家具使用。老的物料保存着主人的情感和记忆,在新的住宅中延续。

△ 餐厅立面

△ 餐厅檐廊

△ 光影斑驳

△ 仰望露台

△ 院墙

△ 登高
闹中取静
高速公路的噪音是本项目中无法回避的问题,为了提升居住的品质,必须要让噪声减弱。这是本项目的另一个挑战,我们采用了如下的措施。第一个途径是将噪声阻挡,采用三重屏障来减弱噪声。这三重屏障依次为:树木和院墙、阳光房、卧室和书房的墙体,所有的玻璃都采用双层中空玻璃,具有较好的隔音性能。项目建成后,多层屏障起到了较好的隔声效果,日间和夜间均可基本满足居住标准。

△ 树木参差
第二个途径则是用声音来掩盖噪声。安藤忠雄在京都陶板名画庭的设计中,用瀑布声来隔离城市道路的喧嚣,给我们以启发。我们在南院墙设置了小型喷泉,用流水声来掩盖高速公路的噪音,它让丘山居闹中取静,也表露出业主面对外部环境的旷达人生态度。

△ 茶室
设计图纸

△ 平面图

△ 剖透视

△ 噪音处理

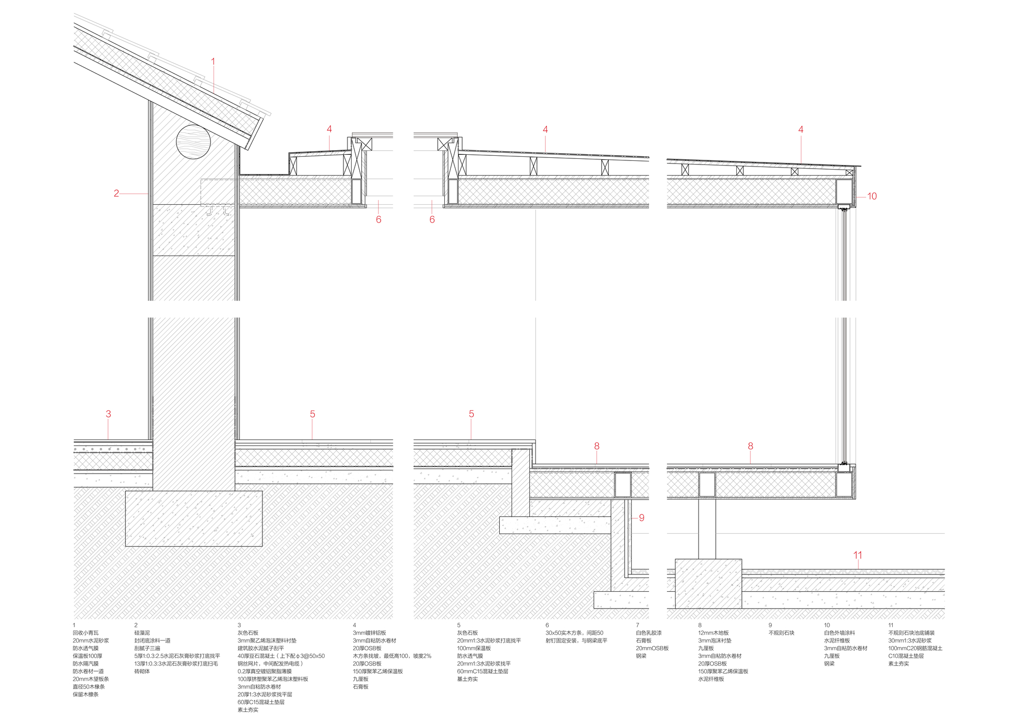
△ 墙身详图
项目信息
项目类型:独立住宅,更新项目
项目地点:天津,中国
设计方:原榀建筑
面积:320m²
项目年份:2020
主创建筑师:周超
设计团队:邓可超、岑梓鑫、梅炜(实习生)
结构设计:杨鹏
摄影师:何炼

BIM建筑网





评论前必须登录!
注册