
中国在过去十年间经历了史无前例的都市发展速度,也因此面临了急剧增加的污染、洪水和各类环境生态问题。南京生态科技岛新纬壹科技园区的建设,就是为了提供一个可能的智慧可持续都市主义方案,来强调人和地球生态系统共生的重要性。

该生态科技岛距南京市中心6.5公里,并与新中央商业中心仅有一桥之隔。因此,该生态岛的建设为南京的经济和可持续发展提供了一座良好的沟通桥梁。该园区以高科技创新为基础,试图给市民和游客提供一处全新的生态胜地。该项目包含了一个文化场所,公共长廊,以及用于科技和环境公司孵化所需的办公大楼空间。

该项目关注于人体尺度空间的营造,以更好地吸引市民和游客的到访。展览馆凭借其戏剧化的屋面线条给初入园区的来访者留下了直观且深刻的印象。屋面的八座山峰还象征着场地附近的中山陵。每座山峰体积中空且在顶端设有圆孔,以更好地将自然光引入大平层,扮演采光井的空间功能。建筑师将其名为“光炮”,并在办公研发楼的设计中进一步强化了这一元素。“光炮”散布于八个五角形办公研发楼中,搭配广阔的室内庭院,彰显了该项目建筑的独特风格。研发大楼从小到大的体块尺度受到了中国传统建筑的灵感启发,突出外挑的屋檐将建筑空间固定在地面上,并给人以悬浮之感。而一旁起伏的景观屋则用于咖啡厅和商业零售空间所需,其有机的形态造型源于树木的枝杈结构。




该项目关注于中国可持续设计的建筑实践。为更好地应对中国目前的碳排放问题,该项目关注于自然材料的保留和再利用、水资源回收和过滤技术的落实、以及对自然光照的充分利用。
节能屋顶:展厅采用的双层屋顶避免了额外能量的散失。而造型突出的大型屋顶延伸悬挑则对整个建筑立面产生积极的遮阳效果。八个“光炮”更是将自然光照完全引入空间内部。该项目基于精密的光学研究,针对一天中的不同时段和一年中的不同时日都定制了最佳的采光和遮阳策略,加上地热热泵系统的配合,整个展厅的能量消耗比同类型的建筑要低30%左右。

△ 展厅可持续性策略

△ 展厅遮阳策略
独特的工作空间:办公研发楼同样也具备了不少专属的设计策略。建筑师将一二层空间进行了适当的抬高,以促进内部空间的自然通风。而办公研发楼所采用的五角大楼形状楼板则实现了出租空间的优化及最大化自然光线的渗透。大楼立面采用的定制垂直百叶,实现了高效遮阳、提供开阔视野并便于清洗维护的设计目标。每项策略的实践都是为了较少额外热量的散失,以最大程度地降低每栋办公楼的能源负载。

△ 办公研发楼可持续性策略




水资源零流失:展厅和办公研发大楼的屋顶花园和台阶在减少水资源流失的同时,还给当地的野生动植物提供了一处休憩之所。这些绿洲空间也给市民和游客提供了“逃离空间“,使得他们可以于此欣赏到南京市中心的全部风貌。水资源的收集和再利用,使得日常所需的浇灌用水,较传统技术而言减少了近50%。地面层超过30%覆盖率的原生植被,既减少了水资源的流失,还给市民、游客及办公人员提供了一个舒适的休闲空间。

设计图纸

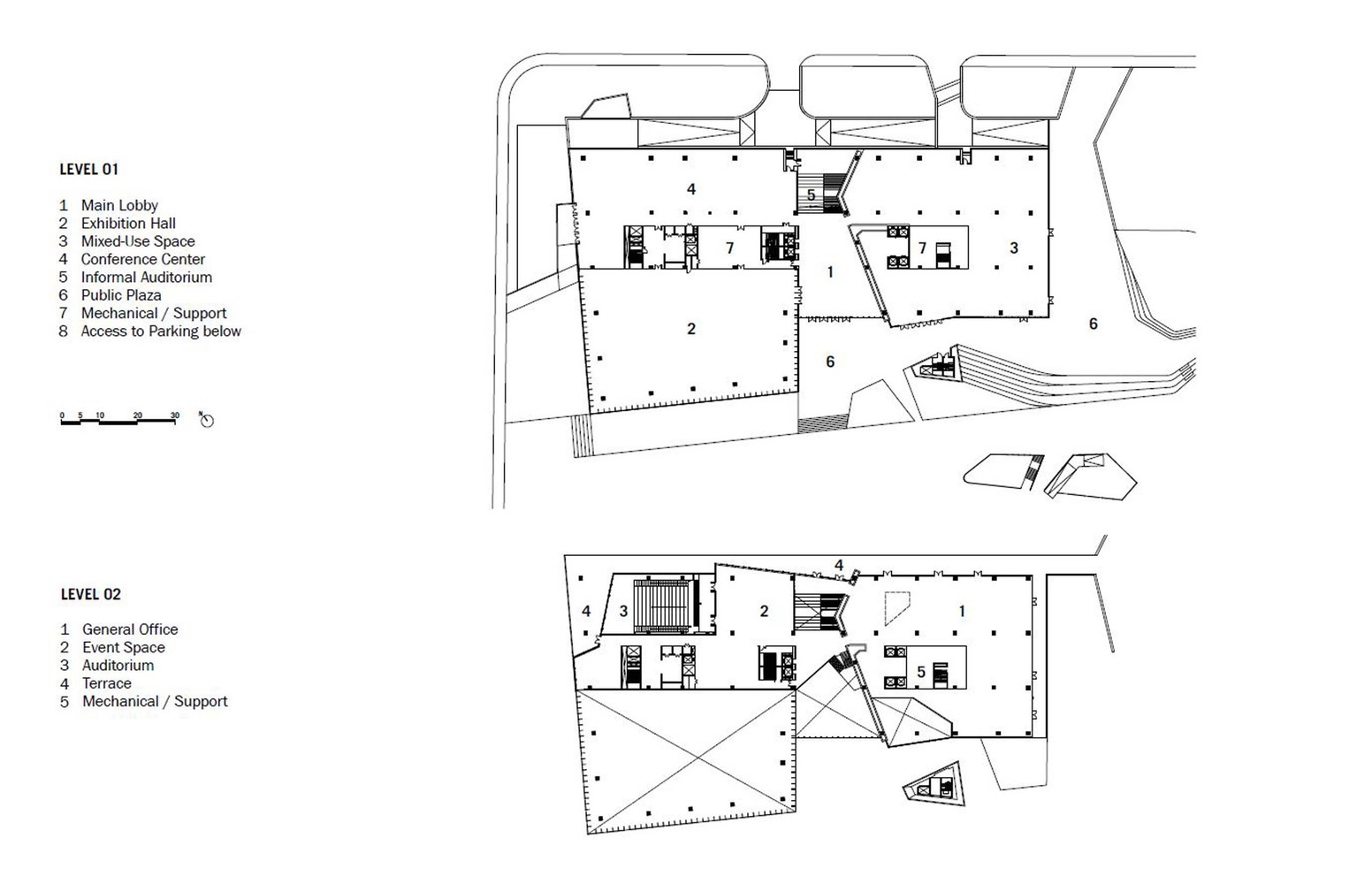
△ 展厅一、二层平面图

△ 展厅三、四层平面图

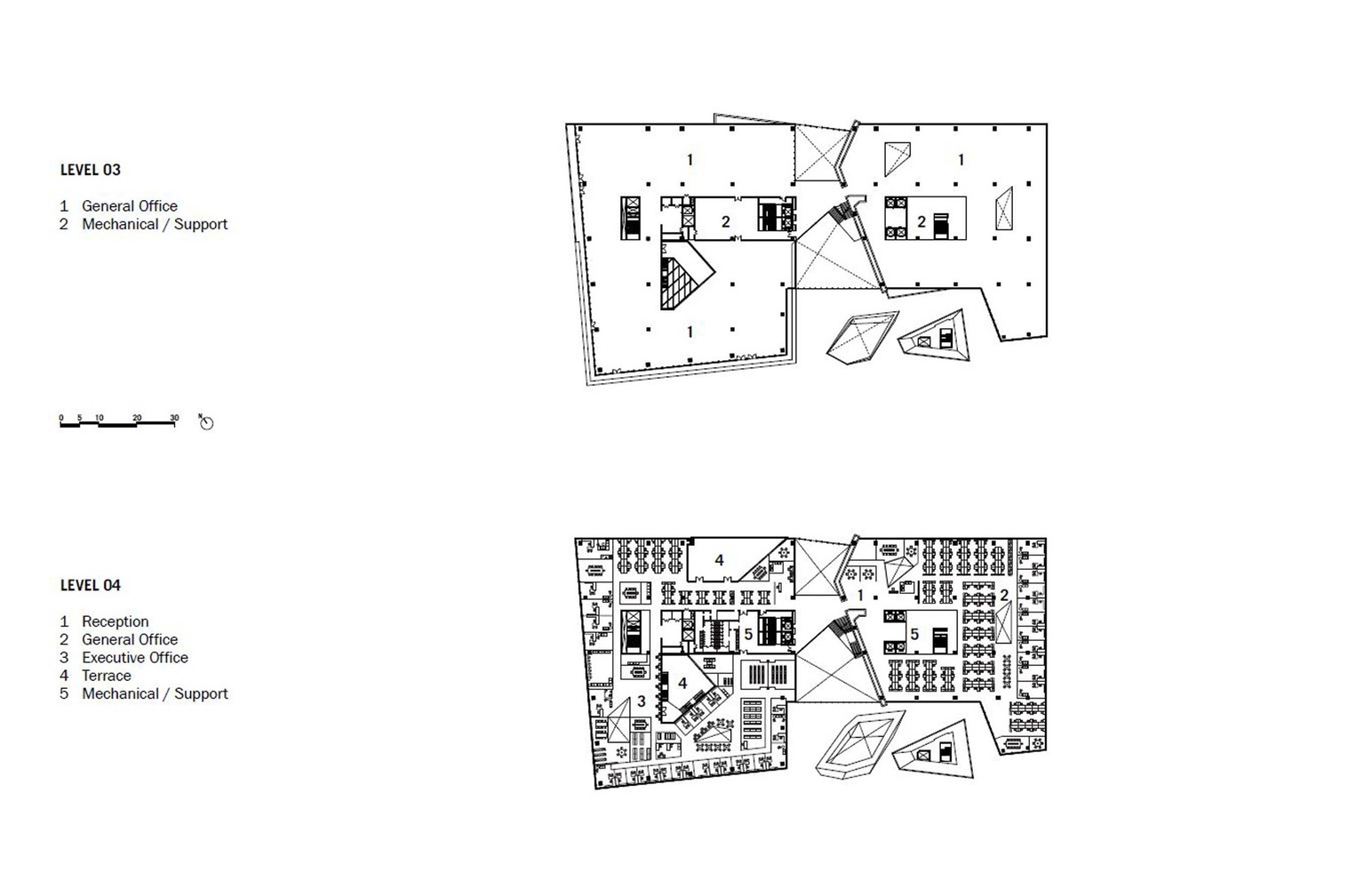
△ 展厅五层平面图
项目信息
项目类型:办公设施,可持续发展
项目地点:南京,中国
建筑设计:NBBJ
面积:134000m²
项目年份:2020
摄影师:张虔希,Paul Dingman

BIM建筑网





评论前必须登录!
注册