
业主是一位健身博主,希望将自己私宅的地下室改造为健身工作室,主要用于日常训练、视频照片拍摄,偶尔对外接待健身学员。
改造前的地下室,地面、梁柱高低不平,在低矮的空间中恣意生长,没有任何的秩序,仅有的两个采光井被抛掷在角落。
这样的空间如何能与健身运动建立联系?
身体边界——女博主主要的训练内容包括基础的器械健身以及普拉提。这些运动让身体的呈现与日常的家居活动不同,我们叠合了这些运动,形成了一个近似圆拱形的柔和边界,这个动态的边界将在空间中伸展运动。


△ 中庭轴测
空间边界——空间中引入自由的拱形边界,隐匿原有混乱无序的结构元素,整合成连续的新边界,将身体柔和包裹。自由拱不同于明确的圆拱,它柔和混沌、难以界定。从顶到地,它的轨迹时缓时急,动态变化,模糊自然,承托身体的柔软边界。




流通渗透——不同的自由拱彼此连续,纵横交错,层层叠叠,在每一个点上观测,它都呈现不同的姿态,交错的曲线切分出的实体与虚空,创造了难以捉摸的流通与渗透。



镜像延伸——镜子除了运动本身的需求,而在空间中,它将连续的自由曲线不断扩大延续,身体所在的真实空间,在虚像世界中进一步加强。原本狭小的地下室,因为镜像变成了一个宏大空间背景。

内外之间——地下室仅有的两个采光井和楼梯是与外部联系的通道,设计强化了这三个内外联系的区域,赋予它们三种颜色,形成“内嵌的庭院”空间,在封闭中创造更多的“内”“外”层次。

△ 轴测图







光影力量——两个采光井将自然光引入室内。远离采光井的区域,顶部沿边置入光带,剥离拱与顶面的联系,而自我呈现,在有限的高度最大可能让顶面上浮。为满足均匀照度的需求,顶面中部引入四条斜向灯带,充满“力量”似的侵入柔和的边界中。拱与斜线犹如柔美与力量的并置,亦犹如女性的身体与冰冷的器械的冲突呈现,他们都是健身工作室最自然的状态。


设计图纸

△ 设计概念

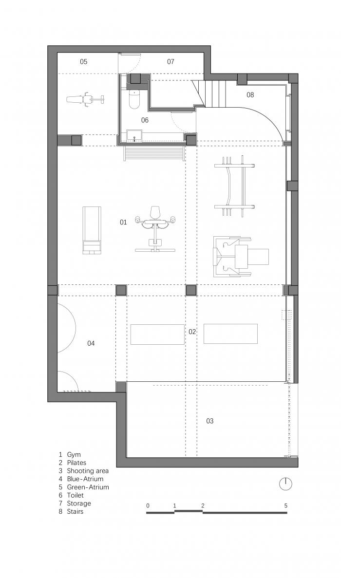
△ 平面图

△ 立面图1

△ 立面图2

△ 立面图3

△ 节点详图
项目信息
项目名称:身体、空间、边界——健身女博主的私人工作室
设计方:大海小燕设计工作室
公司网站:www.atelier-dy.com
联系邮箱:[email protected]
官方公众号:大海小燕设计
项目设计 & 完成年份:2020年
主创及设计团队:郭东海,燕泠霖
项目地址:上海市浦东新区三林路1300弄
建筑面积:110m2
摄影版权:恩万

BIM建筑网





评论前必须登录!
注册