△ 项目视频
广西壮族自治区直属机关第二幼儿园,位于南宁市民主路与建政路之间的一条巷子内,周围分布着住宅楼和一所小学,幼儿园之前的基地,由多幢陈旧的建筑构成,无论是办学规模和建筑的耐久性,已经不符合发展要求,在详细研究之后,项目采用了整体拆除、原址重建的方式。
建筑基地为长方形,东西长,南北短,不利的朝向,加上需要在有限的场地上,容纳18个班级的规模,并满足幼儿园日照的要求,都给设计带来了挑战。

△ 总平面
设计从儿童日常行为出发,希望为儿童创造丰富多样的交流空间,并营造在内部可以奔跑、玩耍的场所。此外,塑造一座和周边环境友好,内部一些公共空间,可以为周边社区居民使用的建筑,也成为设计的一个目标。
通过对场地特征、日照、通风的充分研究,设计因地制宜采用了围合的布局。东西朝向的班级活动室,可以满足班级数量、日照的要求。考虑到亚热带气候的炎热,建筑外立面设置了水平的遮阳板、固定的遮阳格栅,以及遮阳的推拉百叶窗。

△ 鸟瞰效果图

△ 东南面次入口透视效果图
幼儿园主入口原来位于东面,设计最终调整到了西面,一方面是为了和西侧的小学产生呼应与对话,另一方面,也是为了让幼儿园的主入口,更靠近人流量大的民主路。原东侧的主入口,将作为幼儿园的次要入口。后勤运输入口也设置在东侧巷子的尽端。
为避免人流对巷子交通的影响,幼儿园的主入口,从用地边界向内部后退,形成一个供家长接送、等候的小型入口广场。入口广场上空,覆盖着巨大的屋顶平台,为这个等候空间,提供了遮风挡雨的功能。

△ 主入口局部透视效果图

△ 内院局部鸟瞰效果图
穿过开放的主入口,进入两层高的大厅,可以看到内部的庭院。这里有着极好的视野和空气流通。大厅天棚上的三个锥形天窗,为大厅带了柔和的光线。这里也是幼儿园集会、表演的场所。大厅一侧的老师餐厅,连接着户外的庭院,这里也是老师和家长日常交流的空间。

△ 西立面主入口

△ 内庭院与东侧单元

△ 内庭院坡道

△ 内庭院坡道局部

△ 大厅的锥形采光天窗(摄影:童庆华)
为了给儿童营造交流、对话的机会,每两个班级活动单元组合在一起,相互之间的入口,形成共享的小空间。紧靠在一起的卫生间,设置相互连通的通道,可以让不同班级、年龄的孩子,相互进入各班级的活动空间,有助于孩子的交流与成长。
东侧单元的外走廊,镶嵌了彩色的盒子型空间,孩子们可以在这里停留、交流。盒子外侧的推拉百叶窗,在遮阳的同时,也给建筑的立面和外走廊,带来生动的光影。

△ 东立面局部

△ 东立面

△ 东立面

△ 东立面局部

△ 东立面局部

△ 庭院西南角的外走廊

△ 庭院南侧的连廊
为了给孩子提供了奔跑、穿越的空间,内庭院上空,设置了两座交叉的钢结构天桥,它们和坡道一起,形成空间的变化。每当阳光从天空照射下来,天桥在外墙和地面,留下生动的光影。

△ 内庭院:坡道与天桥

△ 屋顶天桥

△ 天桥局部
由于场地有限,为了营造更多的活动空间,屋顶平台被充分利用起来。大厅上方的屋面,塑造成孩子游玩的露台,三个如同雕塑的梯形天窗,为孩子带来嬉戏的乐趣。露台两侧的外墙,大小不同、自由组合的方形窗口,给室内外带来活跃的视觉因素。

△ 三层屋面露台鸟瞰

△ 三层屋面露台

△ 几何体天窗作为雕塑的三层露台

△ 三层屋面露台外墙局部

△ 几何体天窗作为雕塑的三层露台

△ 在三层屋面露台玩耍的孩子

△ 三层屋面露台局部

△ 三层屋面露台局部
西侧单元的屋顶,为室外运动场,提供给孩子奔跑、游玩的空间。覆盖在运动场上方、交错布置的有机玻璃,也延续到了建筑立面,它们带来光影的变化,遮挡、过滤了强烈的阳光。

△ 屋顶跑道、阳光板与天桥

△ 屋顶运动场

△ 屋顶运动场

△ 屋顶阳光板

△ 东南立面局部

△ 东南立面局部

△ 南面外走廊
西北侧多功能室的屋面,塑造成了户外表演、集会、玩耍的空间,可以提供给每个班级和周边居民聚会使用。东侧单元的屋顶,主要作为绿化种植屋面,设置有蔬菜种植的场地,以及一块可以踢球的草地。
建筑以简洁、明快、现代、富有亚热带特征的设计手法,塑造幼儿园的形象。在满足功能的前提下,力求具有独特的个性。场地边界的围墙,采用白色铝合金格栅,在满足空气流动的同时,形成了简洁完整的界面。场地内部的竹子,穿过格栅之间的空隙,形成了生动的色彩和光影对比。

△ 西立面局部

△ 西立面局部

△ 西立面局部

△ 西立面局部

△ 西北立面

△ 西立面局部

△ 西立面局部

△ 西立面的铝合金围栏与竹子
这座建筑希望营造出一种纯净的氛围,在周边杂乱的环境中,形成一种新的秩序。白色墙面上自由布置的方形窗口,外走廊固定的遮阳百叶,活泼的色彩和交叉穿越的天桥,内部多样的活动空间,都给这座隐藏在巷子里的幼儿园,带来与众不同的空间体验。

△ 幼儿园鸟瞰(摄影:黄波)

△ 夜景透视图
模型和图纸




△ 模型

△ 一层平面图

△ 二层平面图

△ 三层平面图

△ 四层平面图

△ 屋顶平面图

△ 东西立面图

△ 南立面图

△ 北立面图

△ 剖面图

△ 剖面图

△ 剖面图

△ 剖面图

△ 剖面图

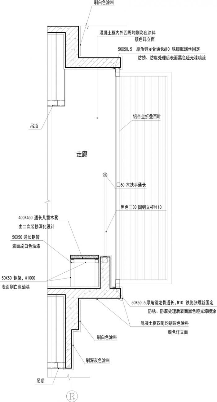
△ 节点图

△ 节点图

△ 天窗节点
项目信息
项目名称:广西壮族自治区直属机关第二幼儿园
项目地址:中国广西南宁市建政路30号
建筑面积:8770.06平米
设计方:广西中盛建筑设计有限公司
公司网站:http://www.gxzsjzsj.com/
联系邮箱:[email protected]
设计时间:2016~2017
竣工时间:2019
项目负责人:谢建华
主创建筑师:谢建华,吴胜飞,马晗宁,梁艺馨
建筑设计:谢建华,吴胜飞,马晗宁
结构设计:陈超高,龚海鸥,马凯
给排水设计:欧盛初,江莹,甘敏通,唐道明
电气设计:李宏伟,卢先哲,经新辉,钟欢
暖通设计:邓端敏,冯贤明,覃建书
景观设计:周子翠、王晓光、李文雯、路飞影、谢琦玮、孙宙
客户:广西壮族自治区直属机关第二幼儿园
摄影版权:黄荣川,一旧飞行队,黄波,谢建华

BIM建筑网





评论前必须登录!
注册