光投射在物体上,
就会产生出明、暗两面,
这就是造型的“原点”。
空间、光线和秩序,
人们需要这些正如对面包和落脚而眠之处的需求。
——(法)勒·柯布西耶(Le Corbusier)

原研哉曾提出“感件”的概念,由“感知”出发赋予物体某种特质而彰显存在性。
人的五感有视、听、嗅、味、触,空间的界面通过色彩、材质强调点、线、面造型的风格印象。我们关注设计中的每个局部,力求透过严苛细节突显卓越品质。此外,还有一个至关重要的“表现性”元素值得在设计时反复推敲。它没有实体却又无处不在,灵动的存在形式为空间注入生命。它就是——“光”,自然的光。

△原始建筑外观

△原始建筑室内
项目基地原本是苏州德合小商品市场,是柱式的框架结构,于建筑主体的四周提供充足通风条件;三角形屋顶的倾角满足室内空间的开敞,但因屋顶对阳光的遮挡而造成了采光不足的问题。
由自然“光”入射的角度作为指引,“Lobby(大堂)”及“Entrance(入口)”的倾斜夹角均为使阳光“无阻碍”地投射进室内。以之作为室内的“主轴”,与其它空间彼此构建的过程突破了纵横规划的定式,倡导灵动的变革。






△手绘概念草图


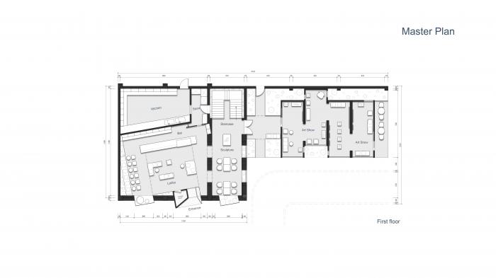
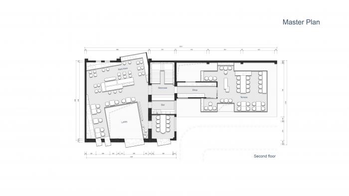
△平面布置图
光³
视觉感知得以发生,是因为“光”的存在。没有光,我们将身处一片黑暗与孤寂中,所有色彩将失去意义。光,在材质表面发生反射或折射,最终投射进人的眼中。界面的色彩因此呈现,材质的肌理效果得以强调、突显。自然光的热度,刺激皮肤的感觉神经,让人获得温暖的触觉体验。
“光³”将室内空间看作一个“盒子”,以之收纳自然界的光并使它在空间内长久停留。“盒子”的臆想存在,摒弃界面“围合”构建的思维,削减实体“墙”而将光引入室内。“³(立方)”概念,由空间视角审视光的“三维”存在,激发色彩、材质肌理的深层意义。


△建筑外观
模糊室内与室外的界限,开放的设计形式强调内、外空间的“贯通性”。


△一楼花园休憩区

△二楼集装箱露台
几何界面
秉持“内放”的克制,用概括、简练的线条衬托充满张力的细节。转折硬朗的线、面结构,因秩序排列诠释形式美感。


△建筑立面细节
把自然“光”不同时段的变化因素考虑其中,推敲尺度和比例。构建动态的光、影对比效果,塑造结构的同时演绎肌理的微妙细节。



△建筑立面细节
室内主轴
上、下两层的规划,兼顾空间利用率及视线的开敞感。楼梯顶部设置天窗,补偿自然采光,增添空间的通透性。


△一楼大厅

△楼梯·走道·天窗
色彩印象
“白”是一种令所有色彩从中“逃离”的颜色,它所蕴含的意义是多元无限的。由于“白”所具有的“容纳性”,它会使置于其中的别的颜色得以突显。橙的明艳,热情活跃;绿植的“绿”,散发着生命气息。在“白”的基调下,橙和绿穿插、点缀,调和出别开生面的艺术氛围感。

△一楼大厅

△二楼散座区

△二楼中庭区装置艺术
材质肌理
由“光”的契机作为驱动,设计追求材质的回归,激发空间的生命力。水泥砂浆、石材、金属、玻璃,材质表面由“光”塑造变化的肌理,随机的细节表达创意理念,艺术感强烈。



△室内细节
后记
“光³”关注设计与自然相互“生成”的过程,反映生活的哲学与精神追求。引入“光”,在白色的空间内游走;因材质肌理与界面形态的相互作用,创造别开生面的效果。空间为“基”,天光作“引”,融而有序,意蕴深远……
△ 项目视频
项目信息
项目名称:苏州茯花ARTLIFE
建筑设计:苏州飞界灵感设计有限公司
室内设计:苏州飞界灵感设计有限公司
联系邮箱:[email protected]
项目设计年份:2020.05
业主方:茯花 FUHUA LIFE
主创及设计团队:胡彦昕,徐广全
摄影工作室:YUNSIN STUDIO
摄影师:蔡清
项目地址:苏州市姑苏区盘胥路188号蓝园.SPORT丨17号楼
建筑面积:480m²
材料:水磨石,肌理漆,木饰面,金属,地坪漆,亚克力,超白玻

BIM建筑网





评论前必须登录!
注册