
该项目为公寓楼中房改造,其主体散落在地面层、两层主楼层以及阁楼层。项目将原有空间改造为租赁式公寓。它所遇到的经济挑战为如何在有限面积中打造最大的空间和使用区域。并且,改造部分需要可以轻松建造,因此它们有着块状的形态,硬实但又独特,以此来吸引年轻的租客。同时业主要求改造的部分需要将绿色空间面积最大化。


为此,建筑师提出的设计方案则是利用轻质结构改造内部空间,并重新排布入口及楼梯区域的使用。轻质结构可以减少材料和建设所需的人工成本。该项目共改造了9间公寓套房以供出租,其排布如下:
一层:车库、接待处、一间套房
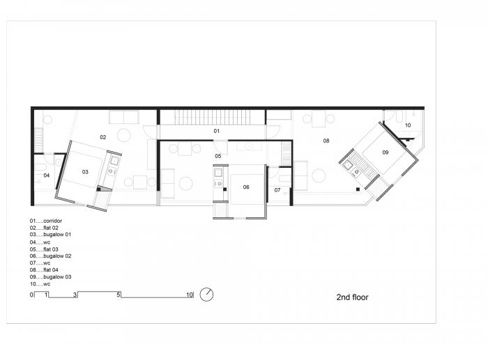
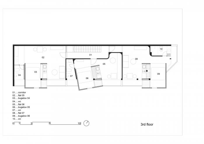
二层及三层:每层皆有三间带有私人卫生间及宽敞开放空间的公寓套房
阁楼层:该层有两间超大并带有干洗区域的vip公寓

△ 分析图
该项目的主要材料为铁制框架、水泥板、铁墙以及玻璃,这些都是便于打造灵活空间以及可以轻松建造的材料。色彩缤纷的楼中房沿不同方向旋转以产生强烈的动律,并且有助于覆盖房屋的旧混凝土柱和结构。二层和三层共有6间公寓套房,每个房间为一个包含卧室、衣橱以及厨房的楼中房,这样的设计巧妙利落地将功能集中融入至一个体块中。







改造的公寓房间则拥有两个正立面,因此房间有两面拥有阳台。如果说低层的公寓展示了年轻的活力,那么两间阁楼公寓则更为原始和简约。阁楼有着传统的倾斜屋顶,以此展示了桁架结构。这层的房间面向横跨整栋楼的空中悬挂花园,以此将迷你顶层公寓的空间感带入其中。在这两间阁楼公寓中,人们可以欣赏到头顿市的山景。



公寓设计由木制家具最后装点完成,以此打造温暖的感觉。墙面被漆成灰色,立面底部则被铁片强化,并被涂上铁锈色以打造强烈的视觉效果。这些色彩都是为了衬托强调色彩斑斓的楼中房。







设计图纸

△地面层平面图

△一层平面图

△二层平面图

△三层平面图

△四层平面图

△屋顶平面图
项目信息
项目类型:公寓
项目地点:头顿市,越南
建筑设计:H.2
面积:112m²
项目年份:2020
摄影师:Quang Dam
厂家:Toto,AutoDesk,Kelvin&Lux,Moc Gia Phat,TOA,Trimble Navigation,Xinfa
设计团队:Trần Văn Huynh, Nguyễn Thị Xuân Hải, Đỗ Trọng Nhân Kiệt, Shreevardhan Joshi, Châu Minh Tiến, Nguyễn Văn Hóa, Trần Văn Hà
客户:Mr Dinh
铁制品:Mr. An
文字编辑:Nguyen Thi Xuan Hai

BIM建筑网





评论前必须登录!
注册