
该项目是位于东京丰岛区的住宅和画廊综合建筑。一棵树是由树干,树枝和叶子等不同特征的部分有机结合在一起的,我们想要创造一种类似树一样的有机建筑,由植物褶皱和混凝土盒子的不同层次的部分组合而成。

混凝土盒子是三维对方的,主结构有着复杂的间隙。打开朝向植物的窗户,将室内和室外联动起来,同时创造适合人身体感受的空间。另外,我们把褶皱处布满植物,创造一个有机的整体,在周围的环境中像树一样呼吸。









混凝土盒子内是安静的空间,有卧室和画廊。另一方面,盒子外是露台、花园和周围有玻璃围合的客厅和餐厅。我们不仅关注建筑内部的空间,包括花园和街道在内的整个外部空间都是三维化的。我门的目的是创造一个未来主义和野生的建筑,在内部和外部不断转换中,唤醒人类的动物本能。









建筑夜景





设计图纸

△ 草图

△ 设计概念1:盒子

△ 设计概念2:褶皱

△ 设计概念3:植物

△ 褶皱演进

△ 褶皱演进

△ 褶皱演进

△ 褶皱演进

△ 褶皱形式列表

△ 褶皱细部

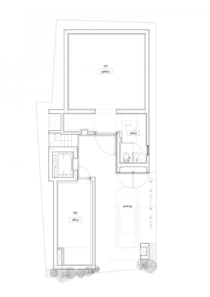
△ 一层平面图

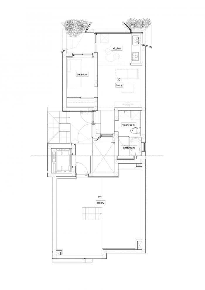
△ 二层、三层平面图

△ 四层、五层平面图

△ 五层、屋顶平面图

△ 屋顶平面图

△ 南立面图

△ 北立面图

△ 剖面图

△ 剖面图

△ 剖面细节
项目信息
项目类型:独立住宅
项目地点:丰岛,日本
建筑设计:平田晃久建筑设计事务所
面积:331m²
项目年份:2017
摄影师:Vincent Hecht
厂家:ADVAN,IKEGAMI,IOC Flooring,TUSCANIA Biscotto,Tokuyama,Yoko Ando
项目建筑师:Yuko Tonogi
设计团队:Kohei Oba, Masatoshi Sugiyama
结构工程师:Masato Araya (OAK), Takashi Manda (tmsd), Taijiro Kato (tmsd)
设备工程师:Kazuhiro Endo, Sho Takahashi (EOS plus)
灯光设计:Yuichi Tsukada (Onshitsu)
软装设计:Yoko Ando, Kasumi Yamaguchi (Yoko Ando Design)
建造商:Akira Ohara, Satoshi Kikuchi (Oharakomusho)
植物建造:Yasuyuki Ikegami (Ikegami)

BIM建筑网





评论前必须登录!
注册