
该项目位于港口区域,是一条沿着码头的狭长地块。该区域的规划是由OMA建筑事务所设计的,建筑师通过绿色开放口袋公园的置入,将其与密集的都市集群并置在一起。建筑师还通过一条公共道路的设计,将整个规划地区串联在了一起。

△ 场地平面图

学校所处地块的南面就是一块绿色区域,而码头则位于其西侧,北面是广场和住宅区域,东侧则是港口道路。业主希望能在该学校建筑内包含一所小学,放课留守关爱中心,幼儿园,以及面向学校和邻里社区的运动基建设施。

建筑师在大楼的顶部设计了大量的户外游乐空间,并通过内外空间的调配,以应对该地区用地紧张的问题。建筑师在大楼的内部设计了高度整合的室内功能,并将运动区域全盘移至室外,使得该大楼的利用值达到最大。同时,建筑师在一层的运动场设计中,还运用了玻璃砖等材料,并保证区域内的主道路可以穿过其中。


建筑师通过镀锌钢骨架的搭建,将室内室外这两部分串联在了一起。在室内界面的设计上,建筑师主要使用了不透明和半透明的聚碳酸酯,玻璃和铝百叶窗等材料;而在外部的基础结构上,建筑师还通过爬藤植物的种植,使得该大楼能更好地融入其所处的街区环境。











设计图纸

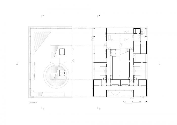
△ 一层平面图

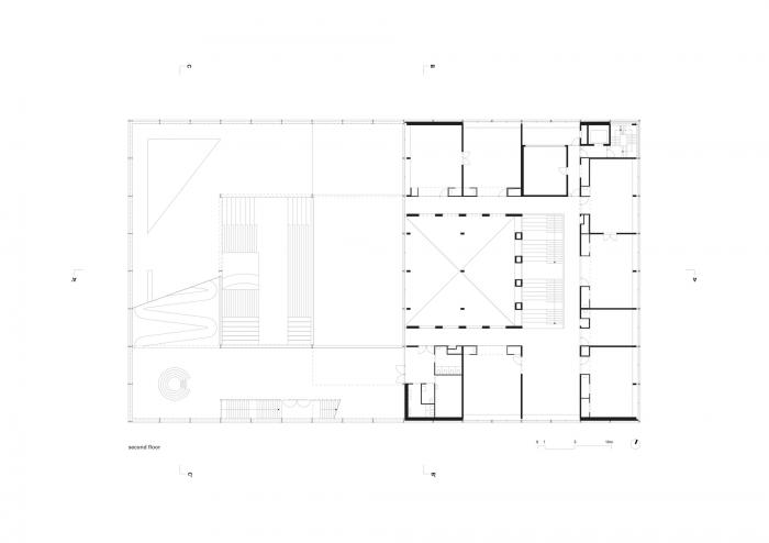
△ 三层平面图

△ 五层平面图

△ 南立面图

△ 剖面图AA

△ 剖面图BB

△ 剖面图CC

△ 细部剖面

△ 分析图
项目信息
项目类型:中小学校
项目地点:根特,比利时
建筑事务所:XDGA – Xaveer De Geyter Architects
面积:4630m²
项目年份:2020
摄影师:Maxime Delvaux
厂家:Aluprof,AutoDesk,CDM,Dott.Gallina,Flexidal,Fosfari lighting,Heinen,Herculan,Jakob,MERCOR,Multiwal,OWAplan,Philips,Schuco,Sika,St-Joris,Terradec,Wavin
竞赛团队:Xaveer De Geyter, Doug Allard, Thérese Fritzell, Ingrid Huyghe, Willem Van Besien, Stéphanie Willocx
项目团队:Xaveer De Geyter, Karel Bruyland, Thérese Fritzell, Arie Gruijters, Ingrid Huyghe, Willem Van Besien, Stéphanie Willocx
项目执行:Xaveer De Geyter, Ingrid Huyghe, Willem Van Besien
业主:SO Gent
结构设计:Ney & Partners
机械设计:Studiebureau Boydens
声学设计:Daidalos Peutz

BIM建筑网





评论前必须登录!
注册