如同混沌与秀丽,厚重与直率的混合体,大山大江在重庆交汇,编写独特的地域基因。不过只有居住在重庆,才能感受到这种自然生长与城市秩序糅合的生动性,然而当城市化进入下半场,重庆也面临着全新居住理念与原有城市格局的矛盾与碰撞,蘭园作为gad在重庆的一次住宅设计实践,我们则尝试从差异化的角度去实现住宅与城市的共融。
城|无序杂糅的周边环境
长期生活在重庆就会了解,重庆夏季炎热无风、日照强烈,位列“三大火炉”之一。冬季却阴冷多雨、日照不足,“天无三日晴、地无三尺平”是重庆的写照,在当地做住宅设计因更加强调与空间地形的关系,也因此被当作少数不强调住宅日照和朝向的城市,成为建筑设计圈的一个非典型性案例和话题。
项目位于重庆市冉家坝,一个成熟的城市片区,场地南侧为妇幼保健院,西、东、北三侧均与现状老居住小区隔路相邻,周边年代、高度、功能均各不同的建筑呈现鳞次栉比的无序状态。

区位
蘭园基地形状虽然方正、规整,但如何闹中取静,与无序杂糅的建筑状态共存,这成为建筑师思考的原点。作为“城市更新”的住宅板块植入城市片区,我们希望蘭园在带动城市街区风貌和品质提升的同时,与周边浓厚的“烟火气息”融合,相得益彰。

△ 总平面
院|大隐于市的院落秩序
庭院是从喧嚣到静谧的缓冲界面,蘭园沿袭当地“景观优先”的地域居住特点,以大尺度庭院为中心进行四面围合,格局上采用大开大合的庭院聚落,实现居住的通透感与连续的城市界面的平衡。7栋高层围合场地的布局形式,南北5栋住宅,东西方2栋住宅,呈现南低北高的整体态势,有效的遮蔽嘈杂的城市界面,围合出1.5万方超大尺度中心庭院。

©黄金荣
蘭园中心庭院讲究轴线对称的秩序,铺垫入户过程的仪式感,中央水景则弱化了对称空间的凝重,调节局部气候环境。借鉴度假酒店公区,首层架空高度达5.5米,采用500米风雨连廊连接入户雨棚,增加与庭院互动的多重场所,从公共逐渐抵达私密。内部静谧空阔的庭院与外部烟火气浓郁的市井风貌形成界定与层叠,“大隐于市”的生活愿景在这里得以诠释。

©黄金荣

©黄金荣

©绿城中国

©黄金荣
户|商业、居住与城市的平衡
为找到居住、市场与城市价值观的平衡,建筑师谈到:“我们始终认为设计和创新是最大的价值源泉。通过高品质的设计去推动住宅产品的更新迭代,创造和挖掘新的价值,是我们面对居住价值与商业价值平衡的解决策略。”
经过多轮方案和数据的对比论证,我们对蘭园确定了大面宽、浅进深的七栋高层大平层产品,七栋住宅楼的主景观面均朝向中心庭院,对外构成简洁连续的城市界面,每间户型均能获得最大化均衡的景观视野, 户型功能空间采取精细化设计,将超大开间景观阳台、私家电梯入户、LDK系统等亮点整合到户型设计中,动静合理分区,充分满足现代居住空间的审美和需求,沿街底层则作为商业功能使用。




©黄金荣
质|内外界面的协调统一
褪去过于赘述的装饰语言,住宅立面呈现愈加简化的趋势,重庆蘭园运用“少即是多”的设计理念,呈现扁平化的立面表情,将现代秩序与经典气质在立面上进行融合式的微创新。立面以珍珠蓝涂料、石材、银灰色的金属型、蓝灰色Low-E玻璃作为主要材料,去除复杂的装饰构建与线脚,在飘窗外立面节点处理上,飘窗上下两部分均采用窗系统,通过简洁的变截面铝型材,实现上下窗扇的平顺交接,结合户型的优化设计,让建筑外轮廓尽可能平整。

△ 立面

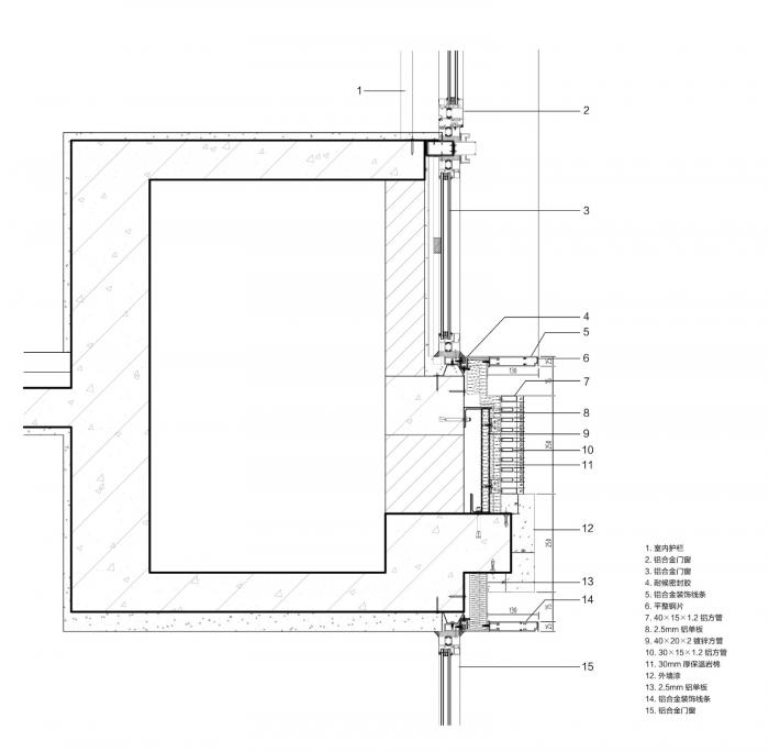
△ 节点

©黄金荣

©绿城中国

©黄金荣
对城市界面的精细化设计是外立面设计更深度的考量。蘭园住宅楼栋都是“背”立面朝向城市界面,而“背”立面因为平面功能性和成本控制的制约,往往是住宅外立面中效果相对逊色一些的存在,而在蘭园的设计中是将朝外的“背“立面作为主立面来反复推敲设计,通过平面和功能的整体协调,精细化处理楼梯间、设备平台、生活阳台等功能性元素,使“背”立面呈现出不亚于“主”立面、浑然一体的外观效果。


©绿城中国
结语
在房产市场进入微利时代、竞争白热化的当下,标准化住宅体系已不是解决现状的最优途径,差异化的创新思考才是为居住、商业与城市价值赋能的来源,然而最终都是为了促进人与城市、自然及自我的关系的进一步和解与对话。

©绿城中国
项目信息
项目名称:重庆绿城蘭园
项目地点:重庆
详细地址:渝北区冉家坝旗龙路77号
项目类型:高层住宅
设计时间:2017年
建成时间:2019年
项目规模:10.2万平米
设计单位:gad(方案),天华(施工图)
项目总监:朱秋龙、吴瀚
项目主创:朱秋龙、吴瀚、李栋
完整团队成员:
建筑:吴瀚、李栋、蒋栋、向治鸿、曾思源
结构:黄嘉、郭俊杰
给排水:周逢源、赵丹
暖通:夏继东
电气:周兴悦
其他参与者
室内设计:CCD、陈涛工作室
景观设计:佳联景观
业主:绿城中国
摄影师:黄金荣、部分照片由绿城中国提供
结构手法:剪力墙结构
建筑材料:石材、铝板、真石漆、玻璃

BIM建筑网





评论前必须登录!
注册