
过去十年是通信网络技术极速发展的十年,龙华通信枢纽大厦的落成顺应了时代的发展,促进了龙华乃至深圳的通信现代化,它连接着千家万户通向世界的全智能电信网。

这栋专为电信设备与电信运营而设计的大楼,大部分功能为电信机房,部分功能为营业厅与办公。接到设计任务时,设计团队内心是惆怅的。一栋供机器设备使用的建筑,如何同时很好地为人所用?此类建筑总是无可避免地被带上许多标签,廉价的、冰冷的、粗糙的……如何才能颠覆这些印象,让人与机器在这栋建筑中和谐共生?

△ 人们心中的机房印象
设计策略
项目位于深圳市龙华新区观澜街道,与龙华、布吉、光明三个街道相接,北邻东莞市,是深圳通往东莞、汕头、惠州的重要交通枢纽。基地原用途为停车场,北侧是多层电信大楼,周边绿化环境好。项目规划建设成一座具有时代特色、符合企业形象的信息枢纽大厦,解决龙华新区核心机房、外包呼叫座席及龙华电信分公司生产管理用房资源短缺的状况,满足未来深圳电信综合业务发展的需求。

△ 地理位置
由于功能的特殊性,使其在建筑设计上存在着诸多限制。如何在有限的条件下很好的体现中国电信的企业文化和企业特征的同时,达到经济实用、美观大方效果;如何协调场地与城市之间的关系;如何充分利用现有技术与条件,尽可能的降低能耗,减少后期维护成本等问题成为设计团队需要着重解决的问题。

△ 功能分析
项目规划功能包括机房、办公、营业厅、设备用房等,当这些功能面积堆砌在这么小的一个用地上,自然而然的带来了高密度建筑的一个共性问题:
水平交通+垂直交通的梳理
设计团队先从公共性着手,从下自上安排了所有功能,再根据功能的特性进行了高度分布上的调整。这有一些与常规建筑不一样的逻辑:放置设备的机房层需要大量的设备管井,虽然机房的私密性高,但更适合放置在底层。

△ 功能需求
基于以上的分析与调整,公私分区有了一定的交织,要解决这个问题,设计团队将“统一管理”的核心筒一分为二,创造出两条垂直通道,可同时满足紧急疏散与平时使用的多套管理系统的需求。同样,首层也呈现了双入口:一个对内,一个对外,且不影响沿街营业厅的对外使用功能。

△ 垂直流线

△ 生成分析
至此,建筑的形体已经形成雏形。接下来则是理性与感性在抗争的永恒话题:表皮肌理的表达。

由于这并非一栋纯粹给“人”使用的建筑,这给设计带来微妙的对立:人希望更大的景观面,更好的通风和采光;而机器则希望更封闭,更安全,不希望日照影响恒温,但由于有大量的空调设备,亦需要必要的通风和换气。
我们根据人性化的节能需求,交叉对比了机房所需要的通风开启面,得到了一个数据:30%,这是人性化节能最低与机房所需最优的一个比例。



△ 立面生成
我们根据形体优化表皮设计,在人使用的楼层增加观景的玻璃面积,打造人性化的办公环境。在机器使用的楼层,根据比例安排开启面,利用窗墙划分的仿幕墙设计,让“人”的楼层与“机器”的楼层完美地融合在一套表皮语言中,而土建成本也控制在2500元/㎡以内(不含设备与室内装修),大大降低了建筑整体造价与后期维护成本。


△ 墙身节点大样
设计总承包
我们尝试着摆脱“机房”带来的负面印象,用一种更正能量的形式让建筑屹立在城市中央,为周边的市民带来一道美丽的风景。同时,使楼内不同功能的使用者,无论人还是机器,都能在不交叉流线的情况下到达其应到达的楼层,各得其所,和谐共生。




△ 室内实景图

△ 效果图
值得一提的是,在国家推行EPC的形势下,该项目是森磊国际中标的首个设计总承包项目,项目的景观、公共区域、室内、幕墙等均由森磊国际负责统筹,通过资源的整合与管理,在整个项目设计周期,为客户提供全方位完善的设计服务。而总负责制的实施,让设计得到更好的贯彻实施,并进一步提升落地后的效果,为以后的项目高效开展奠定了基础。
设计图纸

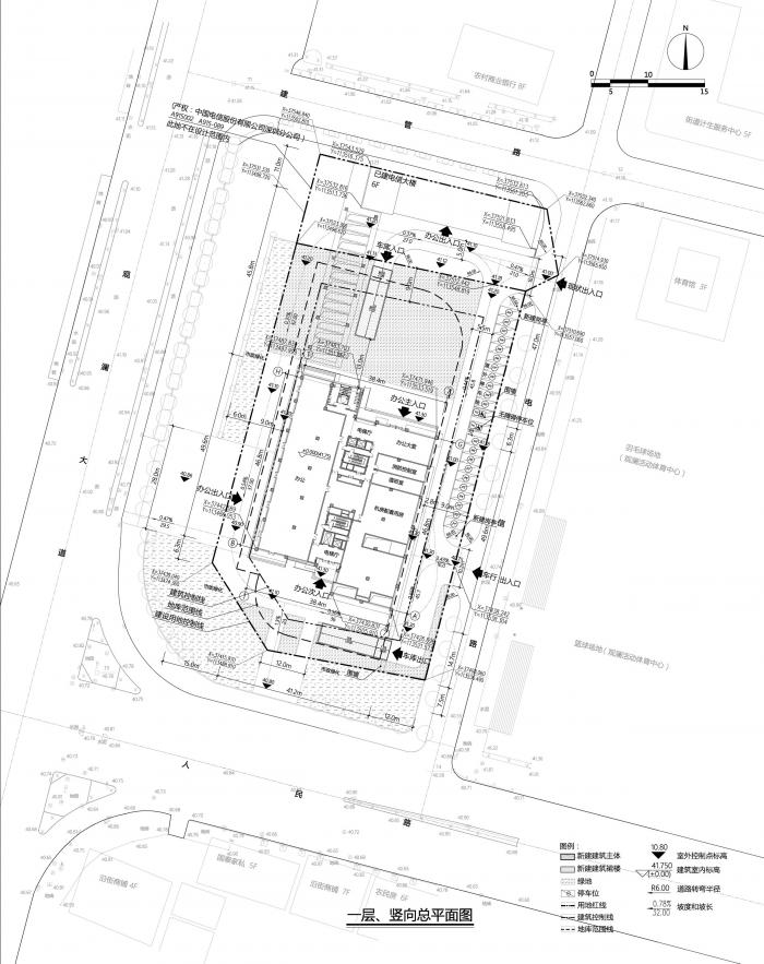
△ 一层竖向总平面

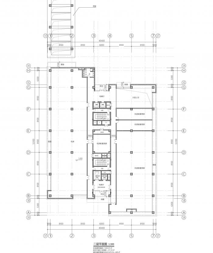
△ 二层平面

△ 屋顶总平面图

△ 立面图

△ 剖面图
项目信息
项目:深圳龙华电信枢纽大厦
地址:广东省深圳市龙华新区观澜路与人民路交界处
用地面积:6403㎡
建筑面积:30400㎡
设计时间:2014年
竣工时间:2018年
设计单位:森磊国际
设计团队:
方案设计:吴卫、魏婷、付聪、李迈、蒋胜
施工图建筑设计:钟复潭、颜海清、杨龙、赵牧之、魏婷、付聪、李迈、蒋胜
结构:柯一兵、魏巍、叶桂成、黎翠玲
给排水:林林旭、胡柳、班颖萍、兰增
电气:姜荣、余建、罗艳华
暖通:李波,周文涛、陈兵兵、林男旭
景观:徐天乐、樊玲、张圳、朱丽冰
业主:中国电信股份有限公司深圳分公司
施工总包单位:汕头市建筑工程总公司

BIM建筑网





评论前必须登录!
注册