

基地坐落在日本名古屋市的北部,那里是一个有着大量人口的良佳住宅区。我们将硕大的木屋檐从建筑内延伸,像是市镇中熙攘街道间的切线。这片大木板将患者引向室内,同时因木材是这市镇的名片,木屋檐形成了一个让患者在建筑外便能产生安全感的空间。



诊所内,患者在我们的等候区可以感受到阳光的温暖,沿着‘切线’而置的L形开放式天花板也带着舒朗的情绪。硕大的木屋檐和L形开放式天花板过渡了街区与诊所之间的边界。它们建立一个舒适的中间地带,同时也作建筑空间而用。




L形开放式天花板将一楼的等候区与二楼的康复室与诊所室内外相连,这样一来就算是在大厅的病患也能在这里度过一段安适悠然的时间。大量的木料应用在了在人们可触及的地方以减少他们的紧张感;这座建筑为这片市镇带来了“温暖的透明度”。

为了安装庞大的屋檐和L形开放式天花板,我们采用了带支撑的钢结构。开放式天花板上部的空间桁架起到了重要的作用。虽然空间桁架组成的Y形钢柱插在了木料间,这些钢构件为了展示其用途依然是刻意的显见。



为了隐藏开放式天花板的水平构件,空间桁架由一半大小的H形钢和扁钢条组成。屋顶和空间桁架的表面硬度支撑住了庞大的屋檐,并取得了水平方向的力传递。我们还在入口处的地面使用了手工制的铺砖,在停车区放了混凝土块与青草来营造类似公园的气氛。

设计图纸

△ 总平面图

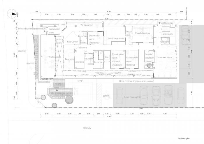
△ 一层平面图

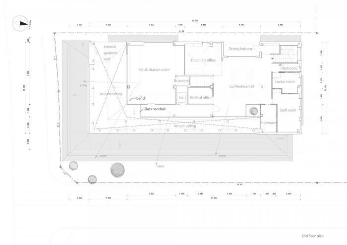
△ 二层平面图

△ 南立面图&东立面图

△ 北立面图&西立面图

△ 剖面图

△ 剖面图
项目信息
项目类型:诊所
项目地点:名古屋,日本
建筑师:TSC Architects
面积:543m²
项目年份:2019
摄影师:Hiroshi Tanigawa
厂家:Jw-CAD,SHOWA FRONT,Tanita,VASE,Yodogawa Steel Works,channel original
主创建筑师:Yoshiaki Tanaka
客户:TAKENAKA Surgery Internalmedicine Padiatrics Clinic

BIM建筑网





评论前必须登录!
注册