
项目要从一位客户的商业故事说起。该办公楼曾经位于一栋老房子里,场地前有一个院子。由于与众多客户进行在线交易,办公室的性质引起了员工之间不断紧张的关系。通过与客户的会面,建筑师发现那里是一个集会交流的地方,就像一个小型股票市场或Bazar。

因此,建筑师决定在新办公室的概念设计中考虑交流和工作的自由流动,增设一个额外的楼梯作为连接。该楼梯连接了2层的管理区和销售区,3层的会计区以及屋顶的休息区和绿地。受亚兹德当地建筑的影响,建筑师采用了纯几何和明确的形式,与大规模的转折交通流线相结合,使得建筑师成为这座乌托邦城市中新的现代办公建筑的平台。

△ 分析图

△ 分析图


该项目具有宏观和微观两方面的背景。在这种情况下,设计师必须处理诸如太阳辐射、自然对流等最小的问题。然而,诸如邻里效应、与邻里的联系以及相似性或完整性等问题都是具有挑战性的。更何况相邻的古典建筑在完成该项目后增加了,因此,与周边环境的鲜明对比会更加明显。






建筑的天际线呈现出弯曲的形状,该形状一直延伸至内部天窗。整个立面的材料采用白色石灰华石材切割而成的。建筑主要采用钢筋混凝土和钢框架丰富立面细节。



设计图纸

△ 分解轴测图

△ 总平面图

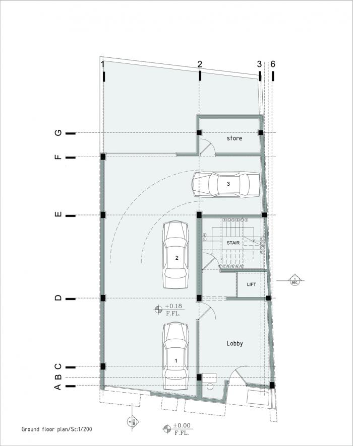
△ 一层平面图

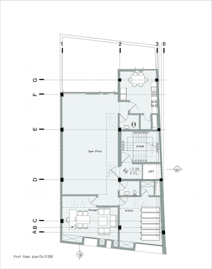
△ 二层平面图

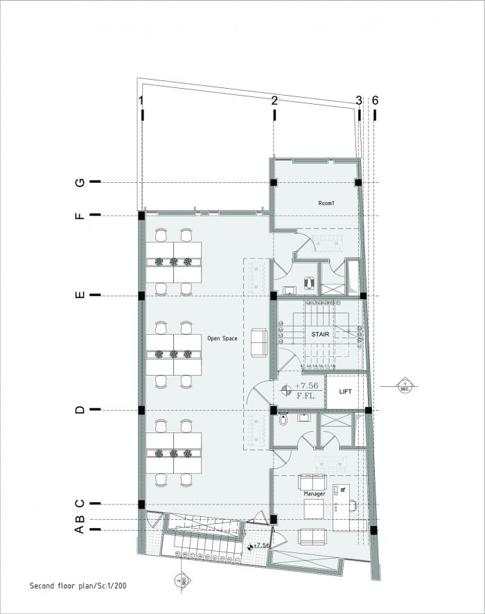
△ 三层平面图

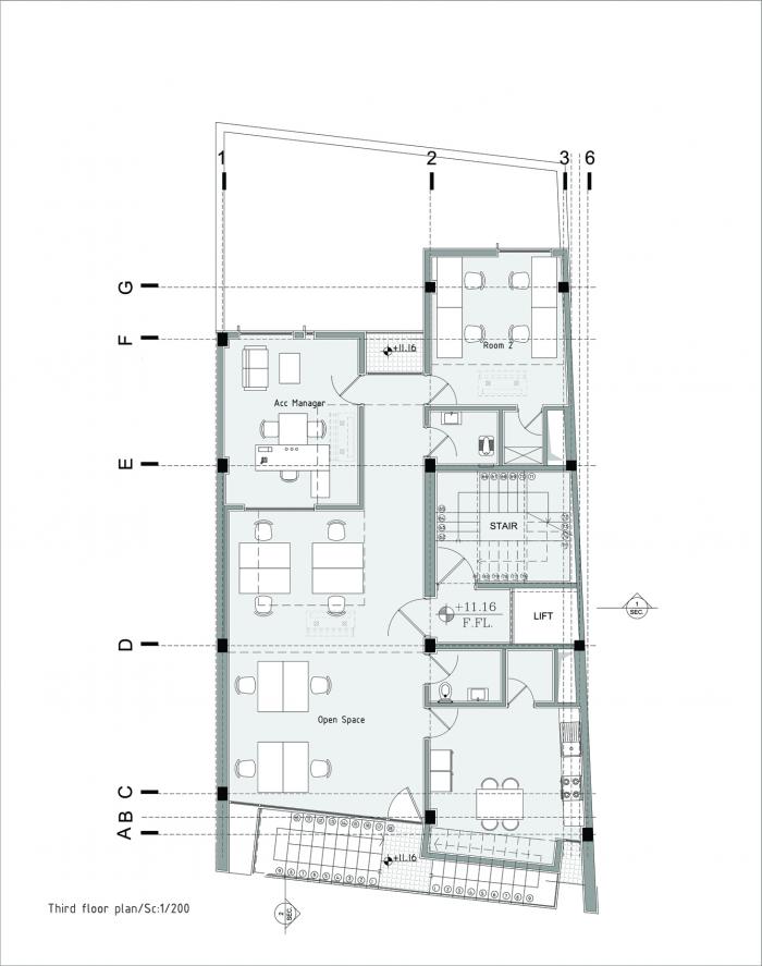
△ 四层平面图

△ 屋顶平面图

△ 立面图
项目信息
项目类型:办公设施
项目地点:亚兹德,伊朗
建筑师:Amir Shahrad,Awe Office
面积:700m²
项目年份:2019
摄影师:Hossein Farahani
厂家:AutoDesk,Diba,Geberit
主持建筑师:Amir Shahrad
设计团队:Azin Fadaei, Sadaf Ghanavizbaf, Soheil Shahdi
客户:Iranzamin Tile Company
结构工程:Mohamad Panahi

BIM建筑网





评论前必须登录!
注册